查看完整案例


收藏

下载
01
项目概况PROJECT OVERVIEW__
常州市第三中学易地新建工程项目位于江苏省常州市新堂路以北,故园路以南,规划路以东。现状地坪标高为3.40米(黄海高程)左右,一期建设用地面积约5.28公顷,二期用地面积约为0.29公顷,用地性质为教育用地。规划学生人数1800人。
02
设计理念DESIGN CONCEPT__
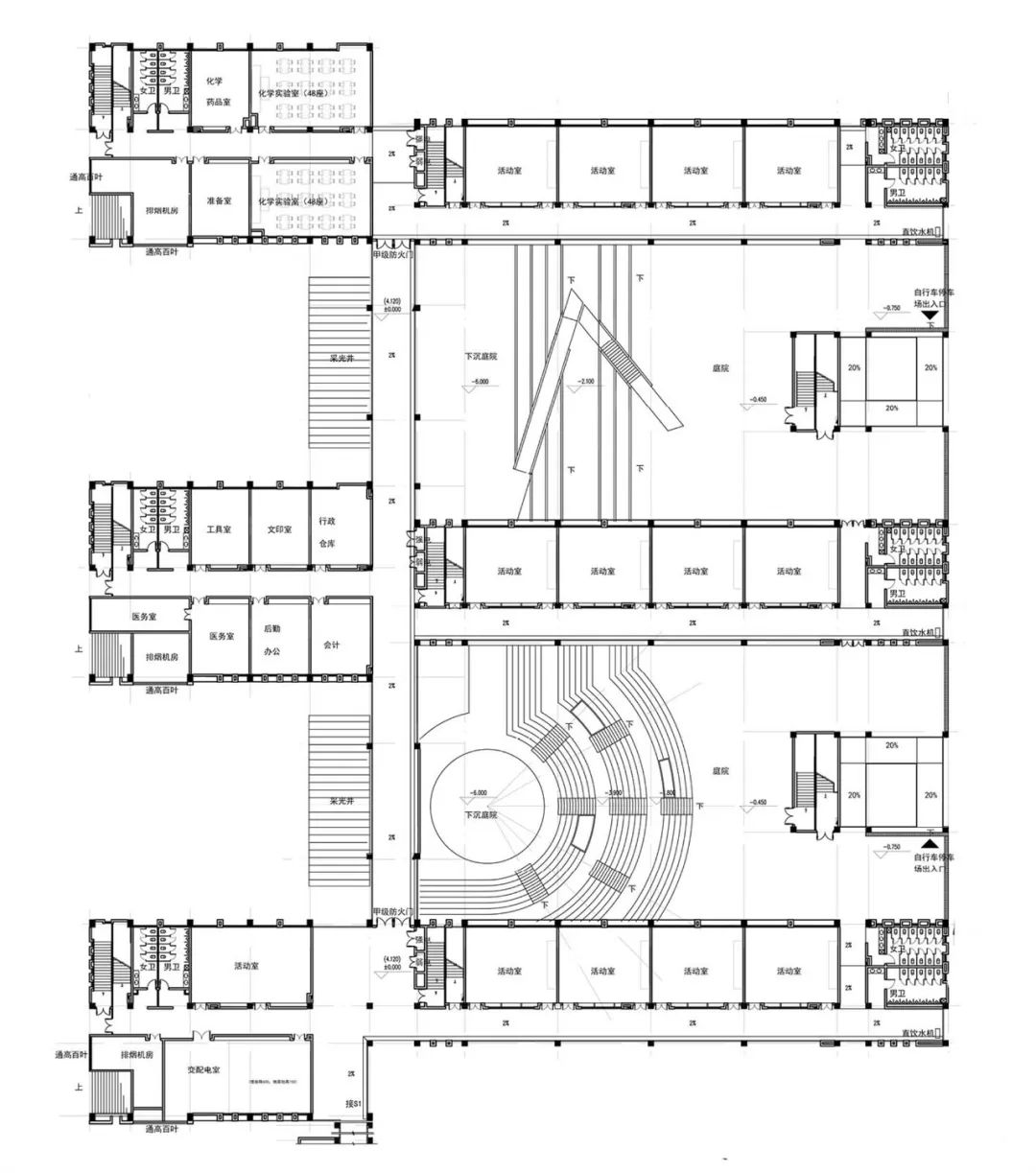
本方案以清晰明确的功能布局为基础,设计将校园按照秩序、兴趣、释放三种行为分为三个区域,分别是普通教室、音乐美术等多功能教室群和室外运动场,通过“一纽带、一绿轴”来组织整个校区的规划设计。
▎一纽带:普通教室与多功能教室群联系的纽带
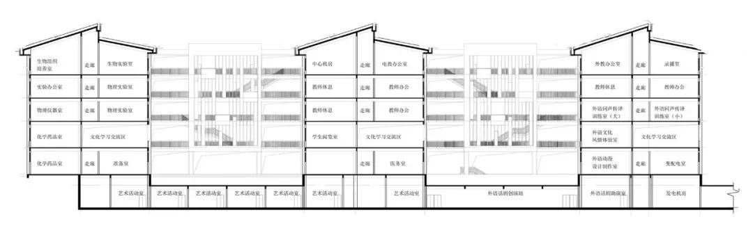
一条横贯南北的连廊将所有功能区联系起来,我们称之为“脊椎”。脊椎既是教学区内部核心交通、交流的空间,又起到导风和遮阳的作用,创造丰富的光影效果和视觉层次。三部直跑楼梯联系上下楼层,几个“连桥”穿越高空间将各层的走廊和美术教室、自然实验室、普通教室相连。
▎一绿轴:多功能教室群与室外运动场联系的景观绿轴
以主入口广场为起始点,将诚毅广场、中心升旗广场、陶艺景观水体串联起来,在公共空间得到最大限度的集约和共享的同时,也形成具有丰富有致的空间序列和绿意盎然的校园景观大道。
03
技术特点
TECHNOLOGY FEATURES __
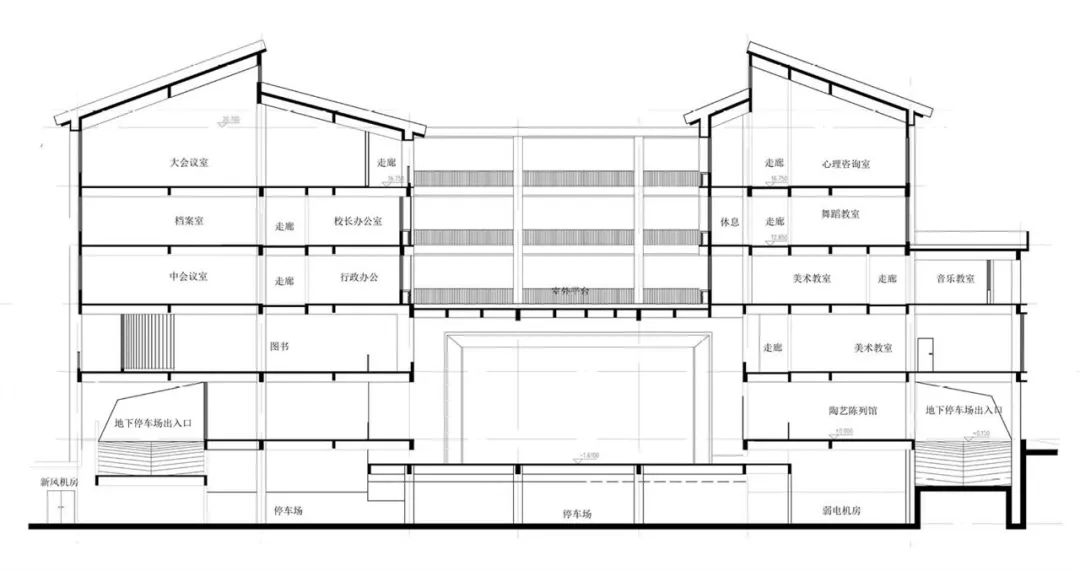
项目用地形状不规则且面积紧凑,设计处理时顺应地形现状,通过“一纽带、一绿轴”来组织整个校区的规划设计,松紧结合的手法,把教学与休闲空间有机地连接起来,平衡了用地自身的不规则感,同时使松散的用地紧紧联系在一起。建筑自身的设计采用了江南传统建筑坡屋顶的造型,和周边建筑环境达到和谐状态,现代的立面造型,又同时让建筑保持了与时俱进的活力。
04
综合效益
COMPREHENSIVE BENEFITS
__
本项目通过一条横贯南北的二层连廊和平台将校园的教学功能区都联系起来,有效增加师生的共享交流空间。设计利用校园“半地下”空间,是项目的一个重要特点。将艺术活动室、创演坊、报告厅等校园共享空间置于校园负一层,并通过架空廊道和下沉庭院串联起来,使学生的学习、生活和实践活动等功能重组,形成一个有序、高效、连续、整体的校园空间环境。学校立面设计上融合了现代建筑和江南传统建筑坡屋顶的造型,使学校的建筑与周边环境形成较好的融合关系。
05
设计图纸DRAWINGS__
总平面图 MASTER PLAN
平面图 PLAN
立面图 ELEVATION
剖面图 SECTION
▎项目档案项目名称:常州市第三中学易地新建工程项目位置:江苏省常州市新堂路以北总用地面积:52795.82 ㎡总建筑面积:63636.61 ㎡设计时间:2015-2016年竣工时间:2018年8月设计单位:华南理工大学建筑设计研究院有限公司项目负责人:汤朝晖、杨晓川建筑:李彬彬、王钰、黄钊鸿、江朔、李冠豪、杨帆、马源、卢哲、杨鑫、陈颖、旋凯、徐娅结构:韦宏、周越洲、秦柏源、蒋凡机电:陈祖铭、俞洋、高飞、王学峰、胡文斌、岑洪金、冯文生、范细妹、陆晓红、关宝玲、舒力帆、谌杰摄影:吴永雄合作设计单位:常州市规划设计院▎项目获奖· 2021年度广东省优秀工程勘察设计奖公共建筑二等奖
客服
消息
收藏
下载
最近



















