查看完整案例

收藏

下载

翻译
Architects:Atelier Tom Vanhee
Area:503 m²
Year:2021
Photographs:Filip Dujardin
Manufacturers: RENSON, BWT, De Coene, Promat, Pyrobel, Recticel, Resitrix, Reynaers, Schluter, TopCer, VMZINC, Velux, ViessmannRENSON
Lead Architects:Tom Vanhee
Engineering:Engelen Ingenieurs, Ir Wouter Engelen- Engelen Ingenieurs
City: Bruselas
Country: Belgium
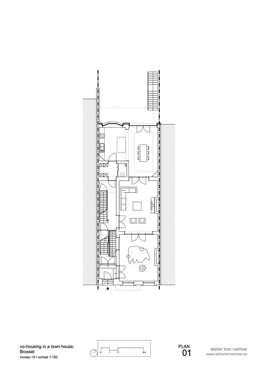
The staircase between the first and second floors in a large townhouse has made way for a new staircase that leads directly to the second floor. The wood-covered staircase is a readable sculptural addition that makes it possible to divide up the large house while preserving the typically large spaces of the townhouse.
An additional staircase added later leads to the communal underground spaces. The existing staircase between floors 0 and 1 is part of residence 1, and that between floors 2 and 3 is part of residence 2.
We chose plywood interventions because it’s readable as newly added material, and is a regrow able material. Also, the stairs are made of wood, a challenge, because as an evacuation circulation, it had to be fire resistant.
The score of the materials on life cycle analysis (Nibe-scale) was important in the decision of which materials we took. Small tiles open up small spaces like bathrooms.
客服
消息
收藏
下载
最近













