查看完整案例

收藏

下载
项目紧邻上海市黄浦世博滨江板块,具有独一无二的江景资源。地块北侧为内环高架路,地铁近在咫尺,西北角为地铁4号线和8号线西藏南路站,居住氛围比较成熟,规划目标是打造一个“年轻态、多功能、开放型超级社区”。
璟湾社区依托上海地产集团肩负租赁式住房建设的企业责任,发挥国有企业压舱石和主力军的作用,结合万科优质的产品打造能力,优势互补、资源共享,最终呈现一个满足高品质安居需求、充满活力的开放式租赁社区。
✦
# PART
01.
城市空间的融合
项目用地面积2
0038平方米,地块周边文化教育和医疗资源好,商业配套缺失。西侧为西藏南路,南北侧和东侧都是已建高层住宅,城市空间较为拥挤。
地块周边环境的多样性以及租赁式住宅的特殊属性决定了项目面临问题的复杂性:如何重塑城市界面、与周边环境互动、融合,创造向城市开放的外向型、功能完善的高端租赁住房及配套的复合型功能体,是在设计中需要考虑的重要因素。
规划设计透彻研究,用细致、严密的规划和消防手段,解决用地局促、建筑间距紧张给项目带来的难度。同时充分利用江景资源,景观作为视线通廊将建筑与城市空间相连接,在局促的用地和现代化的建筑群像之间寻找平衡,打造鲜明的城市形象。
# PART
02.
社区边界的探索
租赁式住宅与普通住宅相比,在规划层面更加注重社区对城市边界的开放度。在考量居民生活场景时,我们希望打造一个与城市融合、共享的开放社区,为社区居民提供更多公共活动的可能性。
项目周边环境比较成熟,但现状住宅复杂,城市界面相对比较凌乱无序。设计在保证安全的基础上尽可能地把住区打开,将社区与城市空间相连接,在街区形成不同的社区交流空间。
小区主出入口设于地块西侧西藏南路上,以丰富多元的景观引导,打造情景交融的入户流线。结合小区开放层级,形成从城市主界面-城市次级界面-住宅私有空间的多种活力热点。而社区中的步行道灵活便捷,连接各个单元和中心绿地,开放与私密兼容。
# PART
03.
公共空间的营造
项目公共配套的面积占总建筑建筑约10%,丰富而多元化的居住空间结合商业空间、社交空间多种业态相互交织、租赁公寓、快闪店、书店+咖啡的城市复合空间、景观台阶等营造出多层次的公共空间,也满足了租客对商业配套、生活品质的需求。
社区商业不仅是单纯的商业体,更是社区生活和商业之间的一种维系纽带。项目结合建筑形式、步行交通和视线的组织,将社区中心位置的二层商业汇成焦点,成为活力社区的点睛之笔,激发了社区活力,创造一个良好的街道建筑界面。
底层架空与商业结合形成的灰空间、大挑檐与台阶的组合将商业界面延伸到社区内部,延伸了开放、共享的理念,提供了更自由、非正式的、蕴含生活气息的场所交流空间。夜晚,建筑内部的灯光透过构架形成独特的视觉效果。
在公共空间的营造中,我们一直思考如何将商业与配套公建进行合理化布局。通过不同楼层连接的公共空间,住户在有限的居住空间之外也可享受大空间带来的活动互动体验感。我们希望人们在风雨连廊、景观和建筑打造的社区空间里,可以悠闲散步、也可以眺望远处享受难得的宁静、在烟火气中感受生机与活力。
# PART
04.
建筑形象的塑造
整个项目建筑风貌与周边整体区域的建筑风格相得益彰、和谐共存
,强调在大实大虚的基础上,增加细节的尺度感,外部完整丰富,内部情景宜人。主楼采用玻璃和浅黄色材料相结合的方式,稳重典雅, 形体丰富、线条简洁。下部为配套功能,近人尺度强调细腻的细部处理,展现宜人、精致的气质。
良好的建筑形象对外管综排布难度非常高,项目严格控制地下车库层高与覆土深度,解决风道转换、上翻梁与室外管综之间的重重碰撞;精心组织和隐藏屋顶设备管线,尤其是风管,力保建筑造型干净利落,避免管线对建筑造型的干扰;燃气管线常规对建筑立面干扰极大,项目设备与幕墙、结构紧密配合,妥善隐藏处理好燃气管线的站桩、爬升和入户。
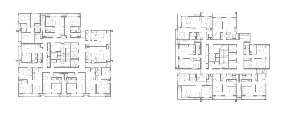
针对青年人才的居住需求,平面设计控制户型面积及户型比例,充分研究各种户型使用者的家庭结构和生活需要,对户型功能做精细化设计,争取做到面积不大功能齐全。并结合结构设计,对户内功能预留可变性空间的可能。宽敞的南侧大阳台,既是观景之地,又是景观之处。
设计图纸
△ 总平面
△ 标准层平面
△ 立面
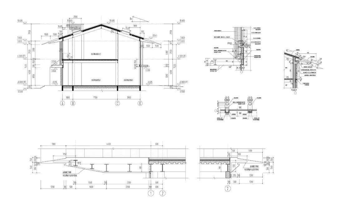
△ 节点详图
项目概况
—
项目地址:上海市黄浦区西藏南路
用地面积:20038平方米
建筑面积:74929平方米
建设单位:上海地产住房发展有限公司
施工图设计:上海中房建筑设计有限公司
设计团队:濮慧娟、丁晓医、徐武、杨永葆、罗伟、杨光、胡伟、姚健、张凌赫、马腾、赵建兰、王斌、姜源、孙海龙、王卉、张雨桐
方案设计:上海致逸建筑设计有限公司
景观设计:上海朗道景观规划设计有限公司
建筑摄影:黎伟
相关阅读
招聘热线:021-63775779
客服
消息
收藏
下载
最近

































