查看完整案例

收藏

下载
// Reality Images
项目小区 | 凤凰林溪郡
项目面积 | 240㎡
项目户型 | 别墅
项目设计 | 黄旭
装修风格 | 侘寂风
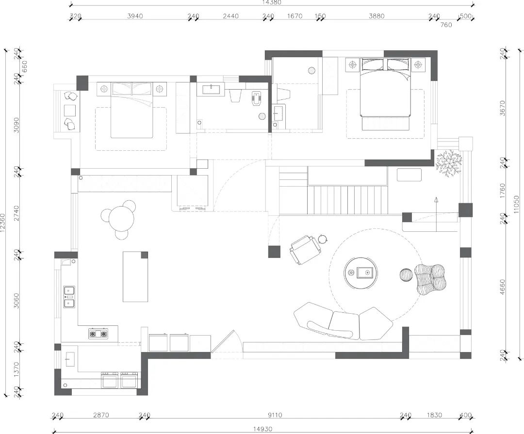
(一楼布局图)
(二楼布局图)
0
3
设计说明:
1. 布局上以大开大合为中心思想,将空间整体集成规划。
2. 效果现代侘寂风格,以温暖沉静为基调,加以复古元素进行点缀综合,达到温馨、简约、有内涵的设计宗旨。
3. 细节处理上以简单,细腻为宗旨,营造轻松简洁的居住环境。
4. 建筑多采用拱形造型,结合外观的同时,与室内设计相辅相成,赋予设计的灵魂。
案例效果:客厅
客厅原本就该是一个包含的地方,空间开阔而通透,但本案利用大面积的无主灯设计,加大量原生态的自然原材料,营造出一种朴素而宁静的氛围。
餐厅
餐厅采用仿制藤编椅,搭配自然纹理的圆形餐桌、圆形吊灯和弧形的格子窗,复古而又相得益彰,充足的光线让整个用餐格调明朗舒适。
厨房
厨房我们取消原始的墙面,做开放式厨房,让整个公共区域的光线尽情交织,真正做到以自然光为主,照明灯光为辅,橱柜和冰箱电器的色彩也多是深木色,侘寂的中心贯彻“首尾”。
卧室
卧室同样以浅色、深灰色为主,见光不见灯,虚无而原生,透彻的彰显出整个空间粗犷、干枯破败的空明感。
大面积的白搭配些绿植,仿佛从一片破败凋零中顽强生长的杂草,看看冒了个头便足够吸精,窗户皆采用弧形,浑然天成的弧度完全地缓解了空间的刚硬,整体反倒愈显柔和。
盥洗室 书房
屋顶花园搭建起来作为书房空间,各式各样的不规则凳子椅子,甚至是不规则的栅栏,一整个侧面的阳光破窗而入,真正是自然光完全的占了主导,舒适而实用。
更多案例欣赏:
现代极简 180㎡
意式风格 165㎡
现代轻奢 167㎡
奶油混搭 126㎡
现代轻奢 110㎡
END
家庭装修,更多人选择业之峰
专注环保装修 24 年 服务中国 102 城
欢迎添加客服 24 小时线上为您服务。装修咨询|免费设计|最新案例|最新优惠。咨询更多家装资讯。
扫码添加装修咨询
客服
消息
收藏
下载
最近


























