查看完整案例

收藏

下载
朗德上寨
项目位置:貴州省黔東南苗族侗族自治州
设计时间:2018年
施工周期:10天
窗外庭院景观与室内流光石影,隐隐凝散宁静致远的力量;
我们追求人与自然之间的和谐,立足人性、尊重自然,
按照自然所启示的经验来生活,把自然山水之情和地域文脉之根融入空间之中。
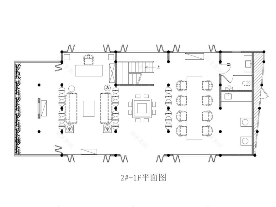
平面图
平面图
平面图
手绘
平面布局
现场执行
现场执行
现场执行
现场执行
设计师驻场 协作现场执行
现场照片
现场照片
现场照片
现场照片
现场照片
现场照片
现场照片
现场照片
现场照片
现场照片
一簑一笠一扁舟,一丈丝纶一雨钩。
一曲高歌一樽酒,一人独钓一江秋。
客服
消息
收藏
下载
最近


















