查看完整案例


收藏

下载
01 项目概况 PROJECT OVERVIEW
△主入口实景©THAD
本项目用地位于广州市天河区原氮肥厂用地。现状地块周边有环状道路,北侧为天坤三路、南侧为天坤二路、西侧为健明六路、东侧为健明五路,交通便利。
项目结合天河区实际情况,清华附中湾区中学的办学规模和服务范围为:高中部,30 个班,按照广州市教育局规定进行招生,实行全寄宿制。初中部,18 个班,面向天河区招收地段学生。小学部,24 个班,面向天河区招收地段学生。
02 设计理念 DESIGN CONCEPT
△体育馆及艺术楼夜景©THAD
统筹兼顾原则
项目要同时满足示范性高中需求和广氮周边地区日益增长的义务教育学位需求。尽可能高效利用土地,统筹规划,疏密有致地进行整体布局,活动区尽量开敞,学习区高效集中,使校园空间富于节奏和韵律。
△体育馆东南实景©THAD
文化传承、突出人文原则
依托广州市东圃中学的文化,实现体育、艺术、科技、心理教育特色和生态校园的融合。将艺术楼、图书馆、体育馆设置在校园中心区,共同围合出代表校园核心氛围的入口礼仪广场,活泼有序的建筑单体、沉稳大方的色彩、简洁适宜的景观都给人以精神层面的积极感受。
△步行走廊©THAD
△6 米标高标准操场与体育馆©THAD
△演艺厅舞台看观众席©THAD
△演艺厅观众席看舞台©THAD
△高中部阶梯教室©THAD
以人为本原则
根据年龄特征、中小学作息时间不同,在规划布局上,将小学生、中学生的运动和生活空间相对独立设置,中学与小学出入口分开,各分区相互联通又相对独立。园区整体风格统一,具体的建筑则根据功能不同,呈现出多样的变化。体育馆动感十足,富于韵律;艺术楼端庄沉静,突出清华校的标志和氛围;图书馆则尺度舒适宜人,让人心生亲近。
△操场西南角看综合楼、艺术楼、体育馆©THAD
△体育馆内地下游泳池©THAD
△架空操场下的篮球场©THAD
△体育馆内的篮球馆©THAD
适度超前原则
符合国家级示范性高中的建设要求和区域人口发展教育需求,充分利用空间,实现场室规划创新、功能齐备,为未来发展预留空间。
△图书馆©THAD
△图书馆©THAD
建筑架空
园区建筑底部局部架空,有利于校园整体环境的通风和建筑底部的防潮,符合岭南地区潮湿多雨的气候特征;同时架空层将校园的各个书院空间联系成为一个整体,为学生提供课外学习、活动、交流的场所,激发出学生们更多的互动交流,创造出校园积极向上的活力氛围。
△连接食堂与教室的连廊©THAD
共享空间
本校园设计中,营造了丰富的活动空间场所。首先,在中、小学的主入口处布置了校园入口广场,形成校园的主要形象空间。在教学楼、实验楼、艺术楼之间围合出了多个不同形态的庭园空间。同时,通过教学楼与实验楼的架空层,将各个庭园空间连通到一起,既相互独立,又相互渗透,空间流动通畅。另外,在校园中设置有游廊空间,可将各个教学单元和庭园空间连结成为一个整体,游廊的二层形象共享平台空间。广州奥林匹克中学的校园空间场所立体化,且多样丰富,为中学生提供了多种可能性的学习、生活、交往场所,成为师生多姿多彩校园生活的载体。
△食堂和宿舍©THAD
建筑立面
设计根据岭南气候特点,在立面上采用横向与竖向遮阳构架,同时结合功能需求,在教学楼、实验、宿舍楼的立面上预留有分体式空调外机的位置,通过整体设计,形成富于现代感的立面活跃元素。建筑立面的设计,既考虑了岭南气候遮阳节能的特点,又现代简约,整体立面设计一气呵成,美观大气,文化气息浓厚,与校园的庭园空间环境互相映衬,相得益彰。
建筑立面材料以红色仿石砖为主,搭配以白色的面砖,局部细节用穿孔板和玻璃幕墙呈现。由于外墙以深色为主,其外墙的太阳辐射吸收系数略大,考虑其节能需求外墙采用透明反射隔热材料降低其太阳辐射吸收系数。
△教学楼间的小庭院©THAD
遮荫游廊
考虑到岭南地区天气炎热、雨水充沛,因此通过风雨连廊将校园各个教学、宿舍单元联系成为一整体,方便师生的日常校园学习生活。连廊的顶部形成立体的共享平台。
△操场、艺术楼和西侧连廊©THAD
03 图纸 Drawings
△总平面图©THAD
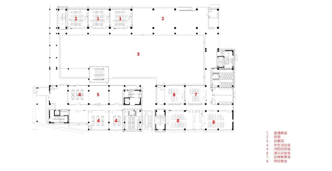
△一层平面图(中学教学楼)©THAD
△一层平面图(小学教学楼)©THAD
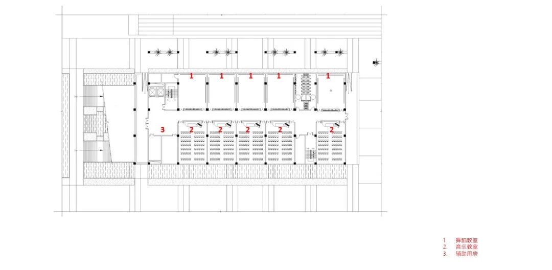
△一层平面图(艺术楼)©THAD
△一层平面图(食堂)©THAD
△剖面图©THAD
△立面图©THAD
05 项目信息 Project Information
项目名称丨清华附中湾区学校
项目地点丨广东省广州市
建筑类型丨教育类建筑
用地面积丨59,592㎡
建筑面积丨93,073㎡
设计时间丨2017-2019
竣工时间丨2021
设计单位丨清华大学建筑设计研究院有限公司
施工单位丨中建三局第一建设工程有限责任公司
项目负责人丨李成磊 鲍雪梅
建筑设计丨何帆 欧丽超 刘蔓靓 郭相宇 陆兴军 栾松 李浩轩 张郁
结构设计丨汤涵 邓晓 唐宏 陈子星 苏平安 孟山远
给排水专业丨王素敏 杨国伟
暖通专业丨吴晓燕 刘雅丽 姜贺鹏
强电专业丨徐丹 王晓辉
弱电专业丨徐丹 王晓辉
景观设计丨李飞(北京林业大学园林学院)
室内设计丨曹军 解璞 张子行 张智勇 伍化 李红伟
建筑摄影丨是然建筑摄影
客服
消息
收藏
下载
最近




























