查看完整案例

收藏

下载

翻译
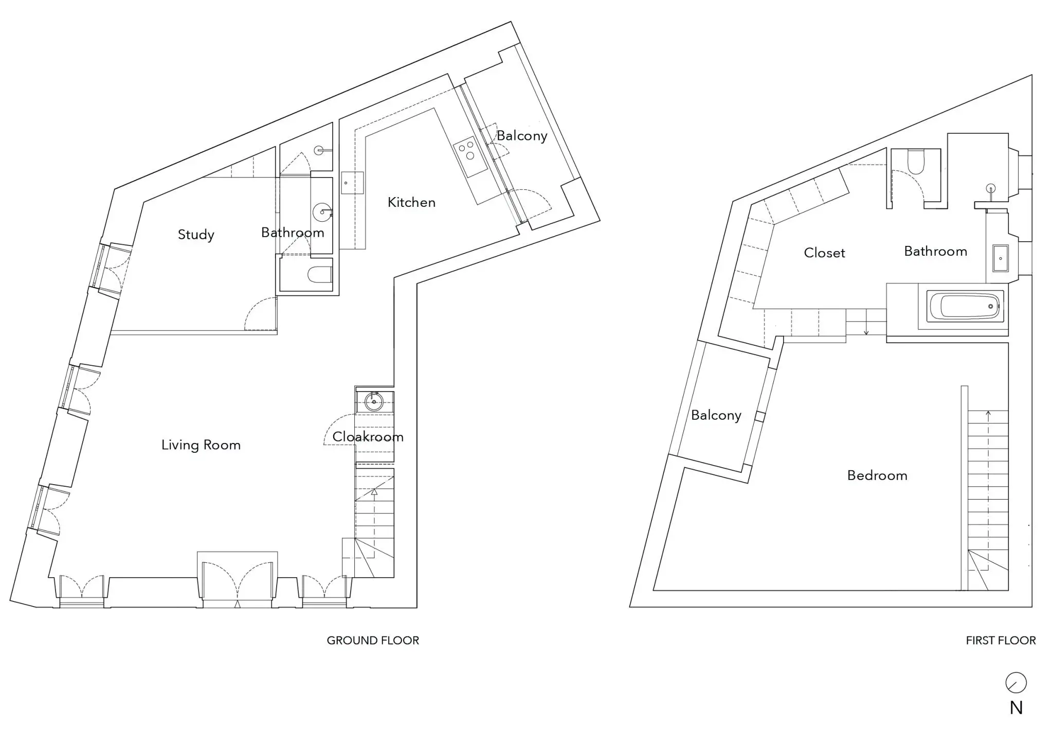
Cet appartement en duplex en monochrome est situé à Lisbonne au Portugal dans un immeuble ancien et a bénéficié d’une rénovation contemporaine. Il occupe les deux étages supérieurs d’une petitemaisonsituée à côté du couvent de Beato, un monument du XVIe siècle. Il a été rénové dans unstyle minimalistequi alterne le blanc et le noir, et emprunte les codes industriels des lofts.Verrière en acier, parquet laqué en noir, meubles blancs, toute la réussite de cette décoration design est dans l’équilibre entre ces deux tons neutres. Les espaces de vie sont généreux, avec une belle hauteur sous plafond, des poutres apparentes peintes en blanc pour plus de légèreté mais qui rappellent que le bâtiment est ancien. Et bien qu’il soit d’une surface confortable, il ne possède que deux chambres dont une suite parentale à l’étage, afin de conserver aux lieux, une intéressante impression de volume. Le quartier de Beato est connu pour son mélange de styles architecturaux, d’époques et de développements, où l’ancien et le nouveau se côtoient, et ce duplex en est la parfaite illustration.Monochrome duplex flat in LisbonThis duplex flat in monochrome is located in Lisbon, Portugal, in an old building and has benefited from a contemporary renovation. It occupies the two upper floors of a small house located next to the Beato Convent, a 16th century monument. It has been renovated in a minimalist style that alternates white and black, and borrows the industrial codes of the lofts.With a steel glazed partition, black lacquered parquet and white furniture, the success of this design decor lies in the balance between these two neutral tones. The living spaces are generous, with high ceilings and exposed beams painted white for a lighter feel, but which remind us that the building is old. And although it has a comfortable surface area, it has only two bedrooms, including a master suite on the first floor, in order to preserve an interesting impression of volume. The Beato district is known for its mix of architectural styles, periods and developments, where old and new meet, and this duplex is a perfect example.136m2Cet appartement en duplex monochrome est en vente chezFantastic FrankThis monochrome duplex flat is for sale at Fantastic FrankShop the look !Livres
客服
消息
收藏
下载
最近






















