查看完整案例

收藏

下载

翻译
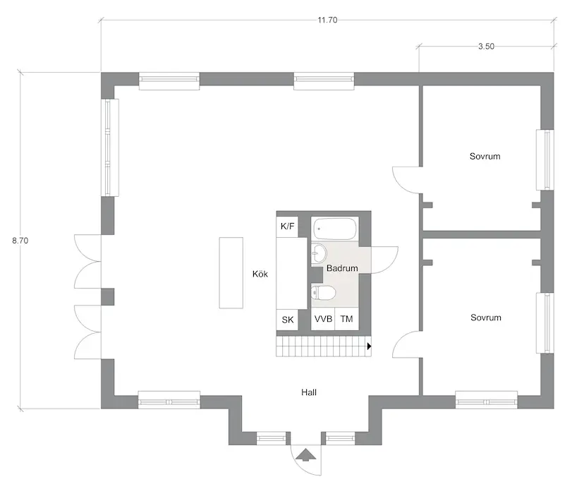
Si cette maison classique de 90m2 ne surprend pas de l’extérieur, avec son toit à deux pentes et sa façade crépie, lorsqu’on pénètre à l’intérieur, ladécorationn’est pas forcément celle que l’on attend lorsqu’on visite ce type d’endroit. Située dans la région du Gotland en Suède, elle offre un intérieur à l’allure urbaine, basée sur des murs gris bruts, avec une décoration épurée. A l’intérieur, c’est plutôt le styleloftavec l’escalier en acier menant à une mezzanine qui surprend le visiteur.C’est une maison de campagne à la simplicité recherchée, où on a mis l’accent sur le confort et la facilité d’entretien. On y passe sa vie à l’extérieur dès les premiers beaux jours, puisque dans le jardin, on trouve également une piscine en béton, avec à l’arrière-plan des pins. Lorsqu’on se trouve sur la terrasse de cette maison classique de 90m2 et qu’il fait beau, on a plus l’impression de se trouver dans un pays du sud qu’en Suède, n’est-ce pas?Classic 90m2 house with unexpected decorWhile this classic 90m2 house may not look surprising from the outside, with its gable roof and plastered facade, when you step inside, the decor is not necessarily what you would expect when visiting such a place. Located in the Gotland region in Sweden, it offers an urban look interior, based on rough grey walls, with a pure decor. Inside, it is more of a loft style with the steel staircase leading to a mezzanine that surprises the visitor.It is a country house with a sought-after simplicity, where the emphasis has been placed on comfort and ease of maintenance. The house is an outdoor living space from the very first sunny days, as the garden also has a concrete swimming pool with pine trees in the background. Standing on the terrace of this 90m2 house on a sunny day, you feel more like you are in a southern country than in Sweden, don’t you?Source :HemnetShop the look !Livres
客服
消息
收藏
下载
最近
































