查看完整案例

收藏

下载

翻译
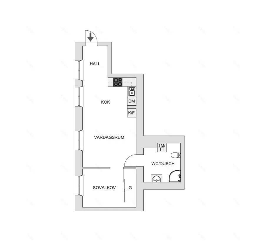
Les portes sont souvent synonymes de perte de place dans les pièces, sauf si bien entendu, on en installe un modèle à galandage (mais ce n’est pas toujours facile à mettre en oeuvre, et assez coûteux). Aussi ce n’est pas le choix qui a été fait dans cedeux-piècessuédois de 39m2. Pour séparer la chambre du salon, on a juste laissé une simple ouverture de la largeur d’une porte, et la cloison suffit à cacher ce lieu intime. Il donne à cet appartement une allure moderne puisque cette ouverture est faite sur toute la hauteur, sans imposte inesthétique, alors que ce logement se trouve dans un immeuble centenaire en briques.Larénovationa été menée avec soin, transformant cet espace ancien en un appartement moderne qui bénéficie d’une hauteur sous plafond qu’on ne trouve pas dans les immeubles contemporains. Car il n’y a pas moins de 3,5 mètres de hauteur, ce qui permet d’avoir de très hautes fenêtres qui éclairent cet appartement largement. Quant à séparer la chambre sans porte, c’est une bonne idée à retenir pour conserver au maximum la place disponible dans cet espace, qui n’est pas forcément très vaste dans un deux-pièces de moins de 40m2.Separating the bedroom without a door in a 39m2 one-bedroomDoors are often synonymous with a loss of space in rooms, unless of course you install a sliding door (but this is not always easy to install, and quite expensive). So this is not the choice that was made in this Swedish one-bedroom of 39m2. To separate the bedroom from the living room, we just left a simple opening the width of a door, and the partition is enough to hide this intimate place. It gives the flat a modern look as the opening is full height, without any unsightly transom, even though the flat is in a century old brick building.The renovation was carried out with care, transforming this old space into a modern flat with a ceiling height not found in contemporary buildings. For there are no less than 3.5 metres of height, which allows for very high windows that light up this flat widely. As for separating the bedroom without a door, this is a good idea to keep as much space as possible in this space, which is not necessarily very large in a one-bedroom apartment of less than 40m2.39m2Source :HemnetShop the look !Livres
客服
消息
收藏
下载
最近























