查看完整案例

收藏

下载

翻译
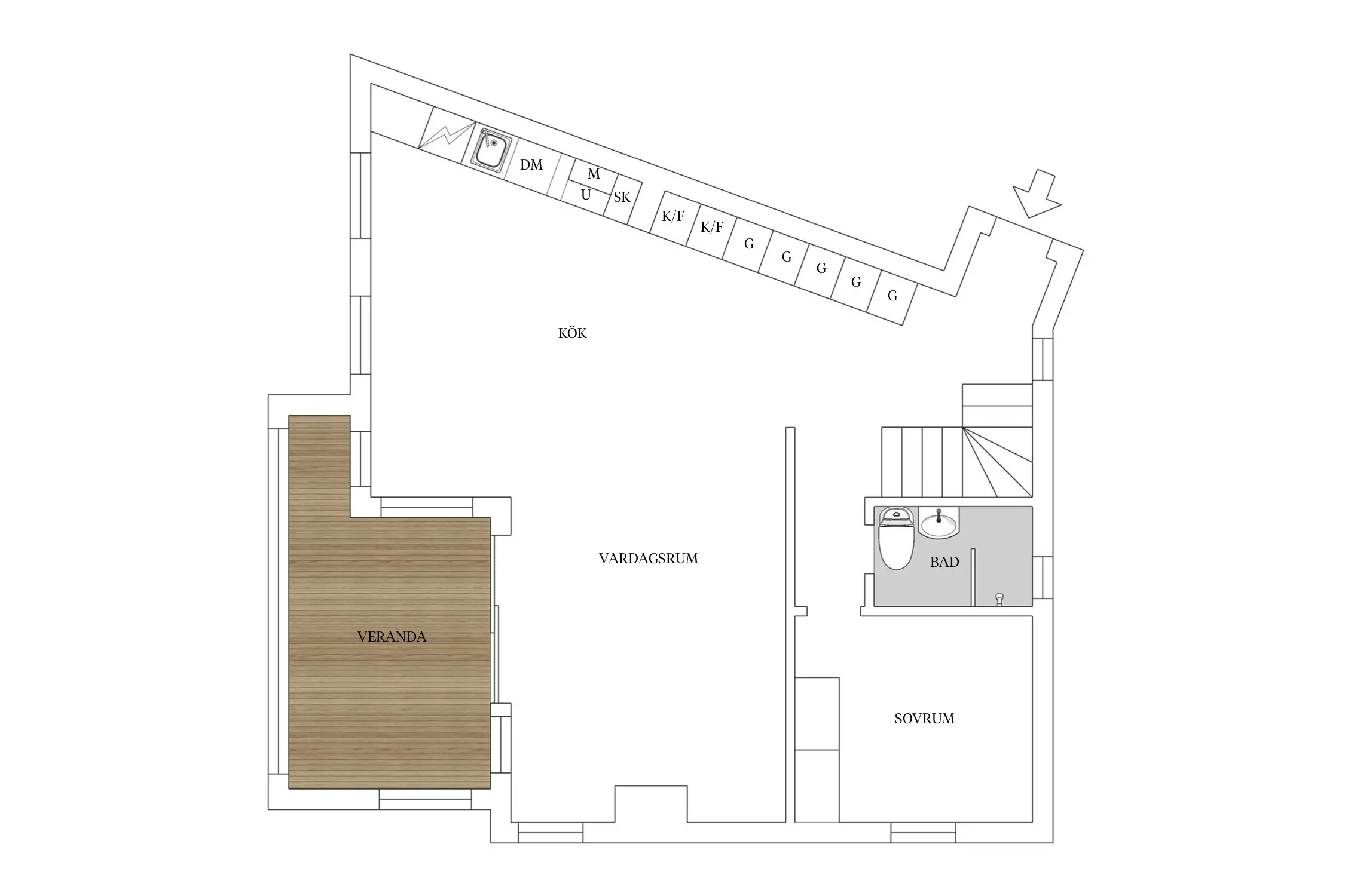
Le parti-pris d’un design sombre qu’il s’agisse de le faire dans un appartement ou une maison, en ville ou à la campagne, peut en effrayer plus d’un d’entre nous. C’est pourtant ce qui a été fait ici, dans cette maison située dans les massifs suédois. La maison de style lodge offre des belles vues sur le Renfjället au sud-ouest à travers ses généreuses fenêtres. Lorsque le temps est clément, le ciel bleu même en hiver vous incite à sortir sur le balcon pour profiter au mieux de l’environnement.Unecheminéeest bien entendue présente à l’intérieur de la maison, qui pourrait s’en passer à la montagne? La grande luminosité rend possible cette décoration en tons gris et noirs, cedesignsombre si particulier. L’ensemble de la maison est bien conçu, avec des chambres à l’étage dont la situation sous les toits offre une atmosphère chaleureuse. On imagine assez bien, après une journée dans la neige, se reposer ici, dans cette atmosphère contemporaine où la vue sur la montagne et le feu crépitant dans le foyer sauront vous réconforter.Dark design for a contemporary house in the mountainsThe choice of a dark design, whether in a flat or a house, in the city or in the country, can be frightening for many of us. But that is what has been done here in this house in the Swedish highlands. The lodge-style house offers beautiful views of Renfjället to the southwest through its generous windows. When the weather is good, the blue sky even in winter encourages you to go out on the balcony to enjoy the surroundings.A fireplace is of course present inside the house, who could do without it in the mountains? The great luminosity makes possible this decoration in grey and black tones, this so particular dark design. The whole house is well designed, with bedrooms on the first floor whose location under the roof offers a warm atmosphere. It is easy to imagine resting here after a day in the snow, in this contemporary atmosphere where the view of the mountain and the crackling fire in the fireplace will comfort you.155m2Source :HemnetShop the look !Livres
客服
消息
收藏
下载
最近



































