查看完整案例

收藏

下载

翻译
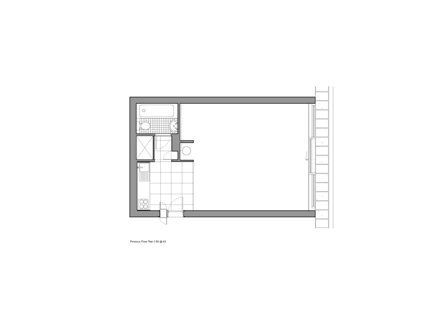
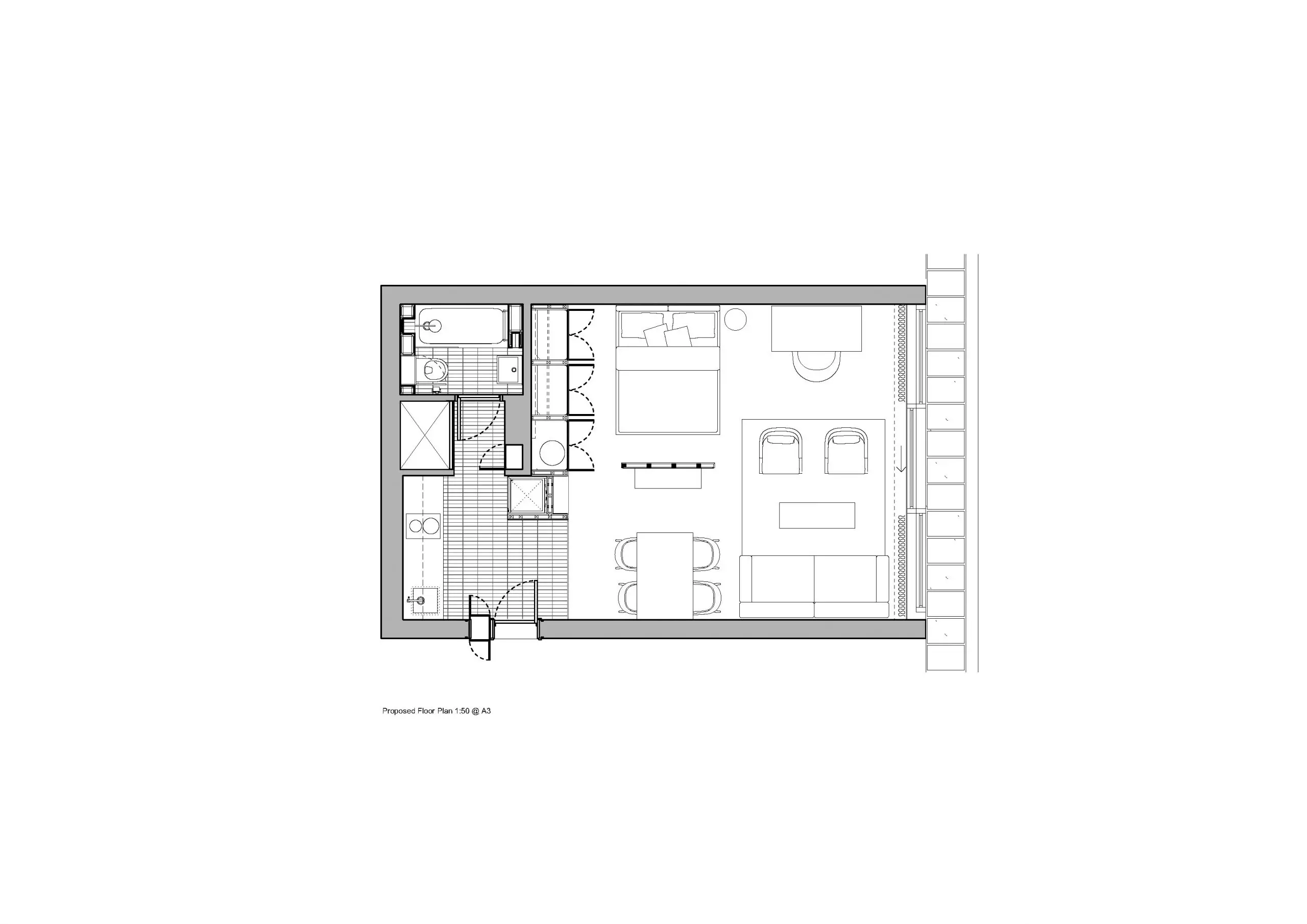
Le studio d’architectureProject Orangea rénové un grand studio de 42m2 dans le mythique ensembleBarbicanà Londres pour un faire un deux-pièces grâce à une cloison partielle qui sépare la chambre du salon et de lacuisine(voir plan avant / après en bas de l’article). Les architectes ont introduit de la couleur pour donner une véritable personnalité à ce lieu tout en respectant le design original de l’appartement. Le plafond a été légèrement abaissé pour intégrer l’éclairage, et un miroir a été installé pour démultiplier l’impression d’espace.Ce grand studio de 42m2 avait été dépouillé de tous ses éléments d’origine et a donc été rénové en essayant de lui rendre son âme historique et brutaliste présent à la construction. Afin de conserver l’impression d’espace dans l’appartement qui a la chance de posséder de grandes fenêtres sur toute la façade, la chambre n’a été que partiellement fermée, tout en devenant totalement intime grâce à la cloison toute hauteur en pied de lit. Les couleurs comme le vert olive sont un hommage au style d’origine de l’appartement, une couleur largement utilisée dans les années 50 après la guerre, la période de construction de cet ensemble de style brutaliste.Architects turn a 42m2 studio into a one-bedroomThe architecture studio Project Orange has renovated a large 42m2 studio in London’s iconic Barbican complex into a one-bedroom apartment with a partial partition separating the bedroom from the living room and kitchen (see before/after floor plan at the bottom of the article). The architects introduced colour to give the space a real personality while respecting the original design of the flat. The ceiling was lowered slightly to incorporate lighting, and a mirror was installed to increase the sense of space.This large 42m2 studio had been stripped of all its original elements and was therefore renovated in an attempt to restore its historic and brutalist soul present at the time of construction. In order to maintain the feeling of space in the flat, which is privileged to have large windows all along the facade, the bedroom has been only partially closed, while becoming totally intimate thanks to the full height partition at the foot of the bed. Colours such as olive green are a tribute to the original style of the flat, a colour widely used in the post-war 1950s, the period of construction of this Brutalist-style apartment.Plan avant et aprèsShop the look !Livres
客服
消息
收藏
下载
最近




























