查看完整案例


收藏

下载
总体规划, 居住建筑, 阿姆斯特丹, 尼德兰
建筑师:TANGRAM architecture and urban landscape
面积:30000 m²
项目年份:2019
摄影师: John Lewis Marshall, meijeske fotografie
厂家:Alkondor, AutoDesk, Engels Baksteen, Geelen Beton, Scheuten Glass, Trimble, VPT Versteeg
主创建筑师:Bart Mispelblom Beyer and Charlotte ten Dijke
设计团队:Ton de Lange, Laura Rokaite, Abdessamed Azarfane, Pieter Doets
客户:SSB/De Nijs JvS VOF CBRE Global Investors Netherlands
工程师:Van Rossum (construction) Hiensch (installations) LBP|Sight (acoustics)
景观设计:TANGRAM architecture and urban landscape Schadenberg
顾问:New Cheese Development
合作方:Urban Sync Cascoland
City:阿姆斯特丹
Country:尼德兰
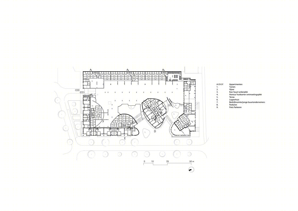
西部狂想曲住宅项目坐落在阿姆斯特丹的Kolenkit街区边缘,毗邻繁忙的外环高速,地形复杂。这块区域早在十年前被指定为荷兰最贫困的地区之一,而重建工作却时至今日才得以推进。
长久以来,这片未开发的区域一直是邻里间重要的绿地和聚会场所。经过设计师、建筑商、投资商、市政厅和当地居民之间可贵的沟通合作,终于排除万难,使这个项目得以实现。重建计划由 TANGRAM 建筑事务所、Urban Sync城市规划和社区代表Cascoland艺术团领头。设计团体针对降噪、污染、节能、节水、排热、社区建设和社会安全等难题给出了解决方案。项目在创造高密度住宅与大量绿化水景的同时,保留了原来社区集会的社交功能。
靠近马路的一边有两幢较高的建筑将车来车往的喧嚣隔断于社区内的宁静之外,渗漏进来的噪声则会被圆形建筑的弧面偏转,再由外墙和丰富的绿植景观吸收以达到降噪的效果。小区内没有设计平行的表面,以防止声波在墙面间产生回响。细致入微的降噪和绿化设计使整个小区在喧闹的城市里宛如一片静谧的绿洲。
相邻桥体的高度差被巧妙地用于隐藏停车场、储存室和雨水排水系统。可供公共租用的市民花园在建筑楼群之间增加了“透气感”,整个小区环境令人向往。
住宅项目要成功至关重要的一点便是建立良好的邻里关系。因此,除了保留之前的社区集会场所外,小区内还在院子中增加了温室阳光房作为活动和会议中心。这些公共设施包含了客房、咖啡店和起居室,可以供人们在此处或聚餐会友,或工作学习。此外,物业世邦魏理仕还向居民提供包括共享电车和共享单车等社区服务。
街区的布局为小区增添了开放性,使室内的住户拥有清晰的视野可以看向公共开放区域。五名社区经理中有四位住在小区内,以帮助和加强小区住户与周围社区之间的联系,同时负责管理小区整体生活质量和社区活动的举办。小区的设计灵活且多样,有50平方米至110平方米甚至更大的户型可以选择,街区的布局也为未来保留了按需改变的可能性,以此达到长期保值的目的。
以屋顶上大量的太阳能板为例,各种节能设施使得居民在除去自己的日常使用量之外还可以为城市电网供电。因此,整个住宅项目甚至可以作为一个能源厂,有着极好的节能表现。
译者:杨奕欣
项目完工照片 | Finished Photos
设计师:TANGRAM architecture and urban landscape
分类:总体规划
语言:简体中文
阅读原文
客服
消息
收藏
下载
最近




























