查看完整案例

收藏

下载

翻译
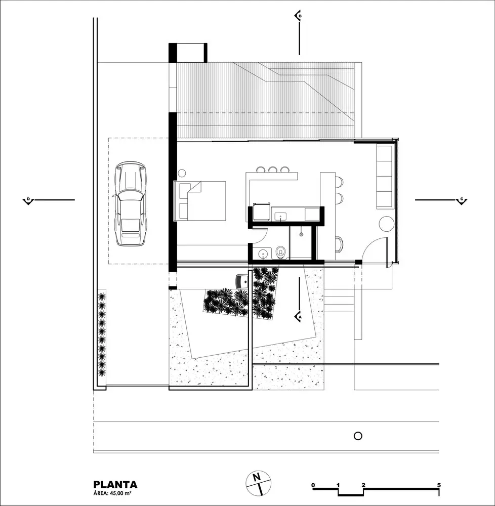
C’est la recherche de la simplicité, l’utilisation du béton du verre, et l’ouverture sur le jardin, qui ont dicté le design de cette mini maison de 45m2 conçue par l’architecteAlex Nogueiraau Brésil. La salle de bains est la seule pièce fermée, et la porte vitrée qui représente la quasi-totalité de la façade arrière donne accès à la terrasse où une sculpture jaune faite avec les restes de la structure métallique est posée pour animer le paysage. La façade avant est au contraire hermétique, ne laissant rien deviner de ce qui se passe de l’autre côté. Photo : André Barbosa45m2 architect’s mini design house in BrazilThe search for simplicity, the use of concrete and glass, and the opening onto the garden, dictated the design of this 45m2 mini house conceived by the architect Alex Nogueira in Brazil. The bathroom is the only closed room, and the glass door that represents almost the entire rear façade gives access to the terrace where a yellow sculpture made with the remains of the metal structure is placed to animate the landscape. The front façade, on the other hand, is airtight, leaving nothing to be guessed about what is happening on the other side. Photo: André BarbosaSource :ArchdailyLivres
客服
消息
收藏
下载
最近








