查看完整案例

收藏

下载

翻译
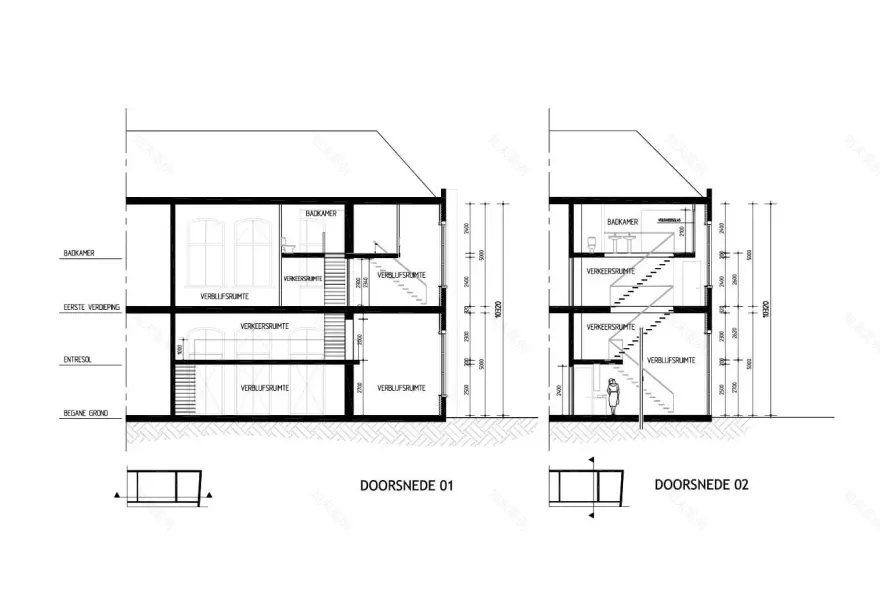
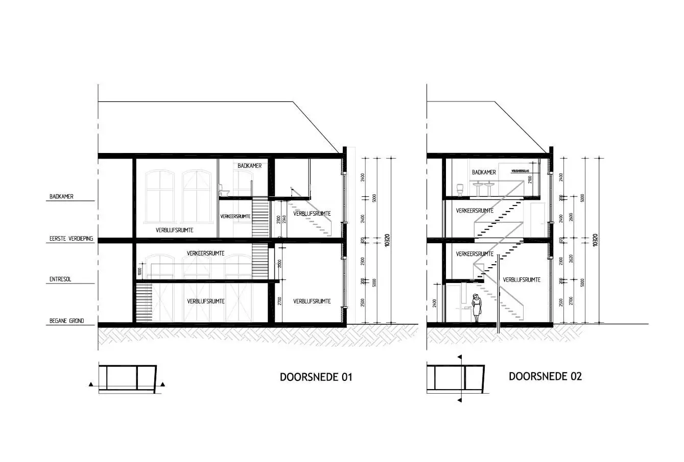
Derrière la belle façade de l’ancienne école de filles et au cœur du centre de Haarlem aux Pays-Bas, cettebelle maison spacieuseavec des plafonds à 5 mètres de haut a été aménagée pour accueillir une famille, de façon confortable et ludique. L’architecteThomas Durnera utilisé des matériaux naturels et anciens mais avec un design et des volumes contemporains. A l’arrière un petit jardin intime est un plus dans une maison en ville, a été réalisé par des paysagistes et propose une vue sur laHofje van Oirschotdatant du 17ème siècle.This 19th century house was the former girls’ schoolBehind the beautiful façade of the former girls’ school and in the heart of the centre of Haarlem in the Netherlands, this beautiful spacious house with 5 metre high ceilings has been designed to accommodate a family in a comfortable and playful way. The architect Thomas Durner used natural and old materials but with a contemporary design and volumes. At the back a small, intimate garden is a plus in a town house, has been created by landscape designers and offers a view of the Hofje van Oirschot dating from the 17th century.217m²Shop the look !Livres
客服
消息
收藏
下载
最近













































