查看完整案例

收藏

下载
用简约来缔造风格
用细节来点缀美丽
用场景来打动人心
在安静的氛围中寻找自在
在舒适的日子里享受时光
黑白灰色系是慵懒、随性且神秘莫测的
拥有谦虚和傲慢两种特质
它们更是有态度的颜色
能够创造出一种更现代的空间表现方式
黑白灰是时尚界永恒的经典,极简的风格让人感受到强烈的个性和品位。在家居装修中,极简黑白灰也能够带来独特的视觉效果,在塑造优雅的同时又极具现代设计感,让空间更加简洁、大气、时尚。
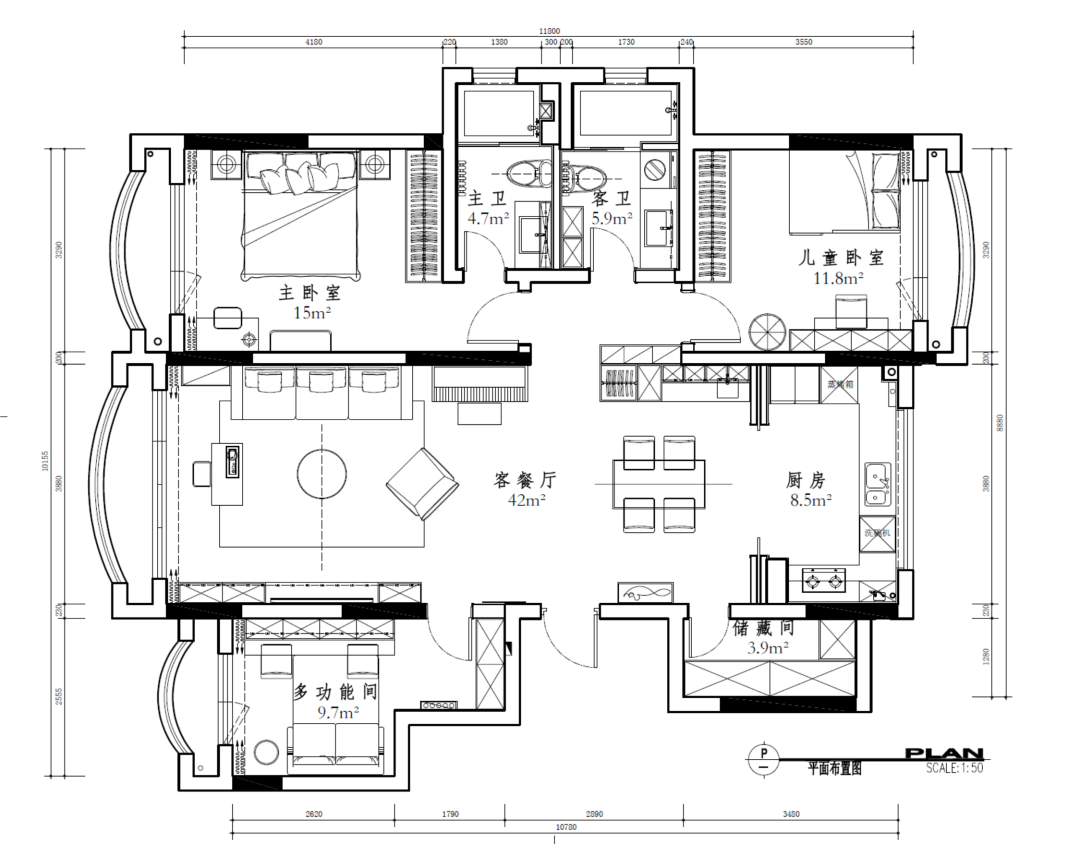
平面规划
设计说明
01
/Museums
黑白灰的色调,让客厅显得既沉稳而又不失时尚,白色的墙面、白色的家具和沙发,让客厅看上去格外简洁开阔。无需华丽的装饰,无需贵重的家具,简单的颜色搭配带来的明媚感便将整个客厅的拘谨一扫而空。
深卡其色沙发中和了空间的暗黑深寂,与咖色地毯相互呼应,柔和视觉的同时为空间增加点睛亮色。
内嵌式电视柜,暖色灯让空间更赋高级。没有复杂的颜色,化繁就简,依旧能以利落的线条描绘空间层次,描绘房屋主人的居住态度,能从中感受到黑白灰的神秘、坚毅、力量、独立和优雅。
02
/Museums
餐厅整体采用灰白与极简黑搭配,整体白色的墙面让空间显得更加简约纯粹,哑光灰色的地砖打底让空间的层次关系清晰,营造了整体轻松舒适的氛围感。
厨房科学的行走动线让布餐环节游刃有余,餐厅背景悬挂艺术挂画增加空间修饰,一眼望去赏心悦目。
03
/Museums
这种装修风格注重线条和形状的设计,通过对墙面、地面、柜子等元素的设计,可以让空间呈现出简洁、大方、高雅的感觉。
同时,极简黑白灰的装修风格还能够营造出一种现代感,让家居更加符合现代人的审美需求。
整个卫生间以极简现代风为主基调,没有其他过于复杂的装饰和多余的颜色,简单的用玻璃隔断做了干湿分离,好看又通透~
04
/Museums
地面铺贴木地板很符合宝贝们席地而坐玩耍的习惯,床尾一侧的墙面做满衣柜和开放式收纳空间,宝贝的衣服、玩具和书籍统统可放进去。上下床不仅节约空间,更有利于增进孩子之间的感情,孩子们的童年,是在彼此陪伴中开心度过的~
05
/Museums
卧室空间整体以暖色调为主,卧室背景墙采用护墙板造型,靠墙设计连体床头柜做连体设计,整个空间温馨舒适。通顶的大衣柜充分利用空间进行收纳,来存放换季物品。衣柜能和墙面结合看起来更加简洁,而且不用担心顶面上落灰难打扫。
06
/Museums
极简的硬装线条搭配干净简洁的软装,配合无主灯设计,使空间更具有通透感。
双人悬浮书桌+书柜一体,空间不浪费,利用率高,整体颜值也很在线。
书桌上方吊柜收纳空间充裕,利用率很高;开放柜后期可以摆放手办、摆件、图书。
客服
消息
收藏
下载
最近














