查看完整案例


收藏

下载
© 吴清山
嬗变中的现代性:赉安的淮海公寓
淮海公寓主体建成于 1935 年,是由万国储蓄会投资建造、由赉安洋行(Leonard,Veysseyre & Kruze Architects.)设计的著名高档公寓,当时名为盖司康公寓(Gascogne Apartments),上海市第二批优秀历史建筑和徐汇区登记不可移动文物。
研究淮海公寓的保护与更新是从考察赉安洋行当时的设计为起点的。赉安洋行是当时上海和邬达克齐名的最有代表性的建筑师,赉安在 1920 至 1946 年间的上海共完成了 123 项设计作品,淮海公寓(盖司康公寓)是其中最著名的代表。
历史照片与部分公共信息,资料来源:上海图书馆、申报等
赉安洋行的三位合伙人,资料来源:网络
© 吴清山
淮海公寓是赉安从 Art Deco 转向现代主义实践的产物,但仍带有明显 Art Deco 的流线型风格与竖向线条的印记。基于“形式与设计、材料与物质、用途与功能、传统与技术、地点与背景(奈良真实性文件,1994)”等多方面分析,结合历史文献资料的研究,我们总结出淮海公寓在平面、立面、材料等方面的总体特征与价值,进而甄别出公共外廊与住户阳台、入口雨棚与台阶、顶层挑板、白色竖向装饰带、半圆形楼梯间、立面钢窗等主要建筑构件的具体特征与历史价值。
建筑特征与部分现状问题 ©TJAIDC
主楼外立面修缮甄别 ©TJAIDC
© 吴清山
© 吴清山
相较于同样由赉安设计、稍晚建成的现代主义风格的麦琪公寓,淮海公寓不论从总体的空间与材料上,抑或是在局部构件上,都呈现出明显的从 Art Deco 向现代主义风格蜕变中的独特设计语言表达,这种两种语言之间的摇摆与融合则是淮海公寓最独特的魅力。而这种嬗变中的现代性也成为我们开展保护修缮以及更新设计工作的依据。
主楼总体特征分析 ©TJAIDC
主要建筑构件与材料特征分析 ©TJAIDC
层叠积淀的真实性:更全面的保护与更新
为了对重点保护部位严格按照原式样、原材料、原工艺进行保护修缮,我们以“尊重原始资料和确凿的文献,决不能有丝毫臆测(威尼斯宪章,1964)”的原则开展工作。尽可能多的查阅历史旧建筑文献资料和当时住户的相关照片,缺失相关影像资料的细部则通过对赉安在同时期设计的同风格建筑的史料研究来弥补。
© 吴清山
© 吴清山
© 吴清山
© 吴清山
然而,淮海公寓在历史上分别于 1991 年进行了副楼部分的改造加建、2006 年的主楼副楼的修缮、2007 年的副楼结构加固等多次改造、修缮,其他的小修小补更难胜数。因此,我们通过资料查阅分析、走访等方式,尽可能的从功能、规范、文化等多个维度理解当时的一些变化,并以此为据进行恰当的维持与删减。
© 顾叶赟
©顾叶赟
而此外更具体的建筑外立面的破损、污损情况的调研与修缮判断,更是以极度谨慎的态度进行甄别,以保护与还原历时的真实性、最小干预的方式进行保护与修缮设计工作。其中,最繁复的工作就是对陶土面砖部分进行残损统计,根据残损图,原则保留破损较小的面砖,针对现状面砖风化程度不均,设计制作多种相近色调整色差,使修缮后的整体立面浑然一体。
陶土面砖拼色比较过程 ©TJAIDC
©顾叶赟
更新前的淮海公寓庭院景观基本上是后期加建、改建的,除乔木长势较好外,外围的部分灌木与地被呈现严重退化的情况。此外,简化的古典风格的南庭院椭圆形绿化广场和周边铺装、公寓大门的材质与样式,都是与建筑风貌严重不符的,这些都是层叠积淀中需要被纠正的真实的错误,也是本次保护与更新设计的重要工作内容。
©顾叶赟
完整性的特定表达方式:淮海公寓的体验完型
淮海公寓建筑风貌特征鲜明、突出,但在整体风貌上却一直是不完整的。在这里,并不仅仅是后期加建的环境景观内容的错位表达,更重要的是整体景观体系的失位。历史建筑完整性的重要内涵包括“其特征的整体性与无缺憾性(北京文件,2007)”,而淮海公寓一直以来缺失的、与建筑风貌匹配的环境景观系统正是这里最大的“缺憾性”。
景观动图
© 吴清山
© 吴清山
本次保护更新,在尊重历史街区与历史建筑风貌的基础上,重构了“淮海路街道景观-巷弄-公寓大门-公寓庭院中心景观-公寓建筑”的风貌序列,尝试弥补现状在体验上的断裂与感受上的跳脱。
这里的第一个重点是公寓大门的更新,我们在平衡了车行、礼仪性空间、结构立柱、日常人行通道在平面尺度上的合理性的基础上,又基于淮海公寓主楼形体关系与竖向线条构成要素,重构融于建筑风貌的公寓大门。
淮海公寓景观空间现状主要问题 ©VIA 维亚景观
© 吴清山
© 吴清山
另一个重点是庭院中心景观更新。首先,我们在景观空间延续建筑立面的对称格局的基础上,以八角形门厅外化的雨蓬形态重构融合景观识别和休憩的中心景观基础空间,求得空间格局的一致性和连续性。而后期加建的喷泉雕塑作为“建筑物的重要历史积淀层(北京文件,2007)”在本次更新设计中被保留,并以抬高、放大基座的方式增加整体体量感知,形成与建筑主体有效对话,成为重构的风貌序列中关键的一环。
© 吴清山
© 吴清山
在中央景观的具体设计上,我们一方面借鉴建筑立面上简洁的线条感与现代风格的体积感,同时也刻意的使用较多的当代工艺(漂浮坐凳、重复的宽缝、侧石的底部悬挑)。在追求整体景观感受与建筑风貌匹配的同时,遵循“缺失部分的修补必须与整体保持和谐,但同时须区别于原作(威尼斯宪章,1964)”的原则,展开对庭院景观的更新设计。
© 吴清山
跨时代合唱:鲜活的摩登
淮海公寓作为 1930 年代上海公寓建筑的杰出代表,历史上有周谷城等多位文化名人曾在此居住,瑞士、印度尼西亚驻沪领事馆也曾在此办公,后又多年作为外国驻沪领事馆租用房屋及领馆人员住所。这是属于淮海公寓的文化魅力之一,也正因为居住人员更替较多,现状属于 1930 年代的原有内部装饰已鲜有存留。而修缮更新后用作高品质长租公寓的整体定位也对室内空间的更新提出了当代使用的需求。
© 顾叶赟
©顾叶赟
© 顾叶赟
我们围绕作为公寓内部空间核心八角形门厅展开设计,以简洁的发散式布置的 Art Deco 元素强化空间形态,并融合具有现代主义气息的石材线条以及更经典的透光花窗、古铜金属、地面拼花等手法元素,打造传承历史建筑气息的公寓内部中心。
© 顾叶赟
©顾叶赟
在公共走廊及公寓套房方面,则采用更简洁的现代主义手法来达成最大限度降低干预、形成明快的居住体验的目标。这种将 Art Deco 与现代主义风格互渗与融合的尝试,是向赉安在摩登时代的淮海公寓设计实践的致敬与呼应。
© 顾叶赟
©顾叶赟
在保护修缮的基础上、当代使用目标的引导下,通过本次保护更新设计,让 1935 年的历史建筑、历次修缮更新的恰当积淀、当代更新的庭院景观与室内功能形成一场跨时代的合唱,是融入历史建筑文化语境、响应时间演进的鲜活的摩登。
© 顾叶赟
区位图
© VIA 维亚景观
总平面图
©VIA 维亚景观
更新设计生成
©VIA 维亚景观
剖面图
©VIA 维亚景观
部分铺装大样
©VIA 维亚景观
大门更新立面图
©VIA 维亚景观
G 层平面图
©TJAIDC
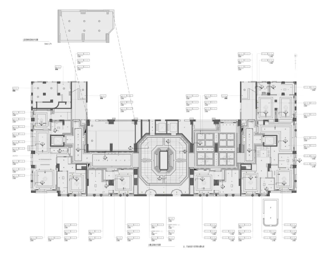
G 层综合天花布置图
©TJAIDC
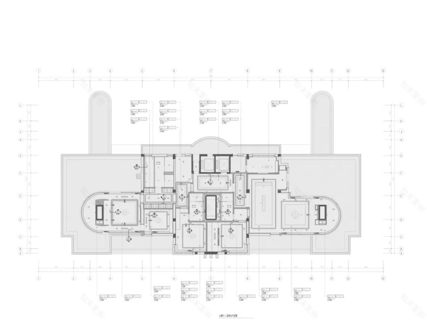
12 层平面图
©TJAIDC
12 层综合天花布置图©TJAIDC
项目信息
项目名称:上海淮海公寓保护与更新设计
设计单位:上海同济建筑室内设计工程有限公司、VIA 维亚景观
设计完成时间:2020 年 4 月
项目建成时间:2021 年 12 月
建筑修缮及室内设计面积:9198㎡
景观设计面积:1633㎡(其中南庭院景观 1215㎡、北庭院 418㎡)
项目地址:上海市淮海中路 1202 号
主持设计师:张栩、孙轶家
原设计师:赉安洋行(原设计于 1935 年建成)
修缮及室内更新设计团队:张栩、刘沛、黄宏斌、陈璐洁、孙晖、王越、陆轶凡(同济室内)
景观更新设计团队:孙轶家、马丽、周密、敬波、巩红蕾、施曼婷、纪慧敏、刘习文(VIA 维亚景观)
业主单位:中华企业股份有限公司
施工单位:上海静安建筑装饰实业股份有限公司(修缮及室内工程)、上海地产园林发展有限公司(景观工程)
室内软装设计:曼图设计
室外灯具设计:VIA 维亚景观
照明顾问:OUI light
导视设计:深圳市麦肯标识有限公司
景观施工图协作:上海市园林工程有限公司
摄影师:吴清山、顾叶赟
客服
消息
收藏
下载
最近














































