查看完整案例

收藏

下载
段旺旺
独立设计师
中央美术学院学士
MeisheRestaurant
❍
Dining space
Design By Duan Wangwang
项目位于北京冬奥村,是冬奥活动的遗存场地,在场地失去原本属性的基础上,让它重新获得“新”空间的意义是本案的重点。
The project is located in the Beijing Winter Olympics Village, which is a relic site of the Winter Olympics activities. On the basis of losing its original attributes, the significance of allowing it to regain a "new" space is the focus of this case.
眉舍做为首进京的传统川菜品牌,在设计过程中给予场地新面貌的同时,也需要遵循传统,结合中国传统园林的元素,运用现代材料来“搭建”空间。
Meishe is the first brand of traditional Sichuan cuisine to enter Beijing. While giving the site a new look in the design process, it also needs to follow the tradition, combine the elements of traditional Chinese gardens, and use modern materials to "build" the space.
▼餐厅预览,preview© 吴昂
在空间上,保留了原有建筑的顶面,通过喷涂的方式做到“消隐”,同时为整个“庭园”提供充足的高度。在地面升起不同高度的空间,通过抬高地面形成“上与下”的空间节奏。在“上”的区域设置就餐区,通过卡座、散台、半包、包间等不同的用餐空间,布置干景与水景,形成景观环绕“一步一景”的体验。在“下”的区域做为空间主要的交通动线,与就餐区互不打扰,形成“动”与“静”的分离,更好的保证就餐的舒适度。
In terms of space, the original top surface of the building has been preserved, and the "hidden" area has been achieved through spraying. At the same time, sufficient height has been provided for the entire "garden". Different heights of space have been raised on the ground, forming a "up and down" spatial rhythm by raising the ground. A dining area has been set up in the "up" area, and different dining spaces such as card seats, scattered tables, half packages, and private rooms have been arranged to provide dry and water features, forming a landscape that surrounds the "step by step scenery" experience, and use the "lower" area as the main transportation line of the space, without disturbing each other with the dining area, forming a separation of "dynamic" and "static", better ensuring the comfort of dining.
▼线性灯光指引进入内部空间以及水景局部 Linear lighting guides entry into internal spaces and water features© 吴昂
在材质上,大面积质朴的涂料,原木、原石做为点缀,与中庭极具现代感的玻璃盒子形成对比,突出传统与当代的对比,从视觉上突出中庭的观赏性。
在灯光上,做为建筑内部的场地,在自然光不充足的情况下,灯光的运用显现的尤为重要,在“动”的空间以线性光源为引导动线,而“静”的空间为点状光源起到功能性的作用。
In terms of material, a large area of rustic paint is adorned with logs and stones, forming a contrast with the modern glass box in the atrium, highlighting the contrast between tradition and modernity, and visually highlighting the ornamental value of the atrium. In terms of lighting, as an internal site of a building, the use of lighting is particularly important when natural light is insufficient. In "dynamic" spaces, linear light sources are used as guiding lines, while in "static" spaces, point light sources play a functional role.
▼入口,entrance© 吴昂
进入庭园,迎面设置“屏风”,保留内部空间的神秘,同时开小口,形成“窥视”,增添趣味以及空间的延伸感。驻足入口处,左右干景与水景,形成动静呼应,增添空间的游玩性。
Entering the garden, a "screen" is set up facing each other to preserve the mystery of the internal space, while small openings are opened to form a "peep", adding fun and an extension of the space. Stopping at the entrance, the left and right dry scenery and water scenery complement each other, creating a dynamic and static resonance, adding to the playfulness of the space.
▼入口左侧包间
Private room on the left side of the entrance© 吴昂
入口左侧穿过景观,通过抬高地面,与原石的台阶形成进入包间的“仪式感”,墙面局部开窗与顶部的放空,通过两个柱子搭建一个半封闭的“亭”,丰富用餐时空间的感受。
The left side of the entrance passes through the landscape, creating a "ritual" feeling of entering the private room by raising the ground and the original stone steps. The walls are partially windowed and the top is emptied, and a semi enclosed "pavilion" is built through two columns to enrich the dining experience.
▼走廊与抬高区域关系,
Corridor and elevating area relationship© 吴昂
▼入口右侧抬高半包区域,On the right side of the entrance© 吴昂
入口右侧半包区域,与水景结合抬高地面区域,在空间中置入一个“朦胧”盒子,通过砖块搭建形成一个“灰”隔断组成的空间,来营造一种被包围的同时,可与外部空间互动的用餐体验。另外,中间两个半包同样以纱帘做为“灰”隔断来丰富空间的功能。局部抬高区域与右侧外部幕墙之间形成下沉区域,形成了一个景观池,在保证内外观赏景观的同时,也起到从外部遮挡视线,使内部空间更加私密的作用。
The half package area on the right side of the entrance, combined with the water feature, elevates the ground area. Place a "hazy" box in the space and use bricks to create a space composed of "gray" partitions, creating a dining experience that can interact with the external space while being surrounded. In addition, the middle two and a half bags also use gauze curtains as "gray" partitioning, enriching the functionality of the space. A sunken area is formed between the partially elevated area and the right exterior curtain wall, forming a landscape pool. While ensuring the internal and external viewing of the landscape, it also serves to block the view from the outside, making the internal space more private.
▼纱帘来满足空间多功能使用,Gauze curtains to meet the multifunctional use of space© 吴昂
▼原木为台阶通向半包区域,The wooden steps lead to the half wrapped area© 吴昂
▼半包区域局部,Private room part© 吴昂
▼走廊看向中庭,Looking towards the atrium from the corridor© 吴昂
▼走廊与中庭水吧关系,
Corridor and atrium water bar relationship© 吴昂
▼中庭水吧,Atrium water bar© 吴昂
▼中庭水吧,Atrium water bar© 吴昂
由于场地的限制,后厨区域只能分配到最内部的位置,中庭就餐区域会得不到最快的服务响应。所以在设计时,考虑在中庭中心的位置置入一个“发光盒子”,在为空间提供照明需求以及观赏性的同时,也承载着水吧与服务台的功能,可以更好的为四周用餐区域提供服务。
Due to venue limitations, the kitchen area can only be allocated to the innermost position, and the dining area in the atrium may not receive the fastest service response. Therefore, in the design, a "illuminated box" is considered to be placed in the center of the atrium, which not only provides lighting requirements and ornamental value for the space, but also carries the functions of a water bar and service desk, which can better serve the surrounding dining areas.
▼水景与中庭关系,
Relationship between Water Features and Atrium© 吴昂
中庭抬高区域引入水景,在水景中放置极具传统美感的花艺,规划不同的座位区,二人、三人、四人、六人桌位来满足不同人次的用餐需求,营造“引水入,临水而食”的静谧意境。
The atrium area introduces water features and places traditional floral arrangements in the water features. Different seating areas are planned, with tables for two, three, four, and six people to meet the dining needs of different people, creating a serene atmosphere of "water intake and water facing dining".
▼中庭抬高卡座区域局部,Partial area of atrium card seat© 吴昂
▼中庭抬高区域看向走廊,Looking towards the corridor© 吴昂
在中庭区域对面为包间,在墙面局部运用砖块镂空开洞,形成一个“窗”,在相对封闭的空间中,与中庭景观形成呼应,使中庭的景观通过朦胧的形式进入包房。
On the opposite side of the atrium area, there is a private room. Brick hollows are used locally on the wall to create a "window" that echoes the atrium landscape in a relatively enclosed space, allowing the atrium landscape to enter the private room through a hazy form.
▼中庭抬高区域不同的桌位形式,Different table forms in the atrium area© 吴昂
▼包间,private room© 吴昂
眉舍做为眉州地域的菜系,眉州又为人文第一州,其中苏轼最富盛名,因此,引用苏轼的诗词来为每个包间赋予名称。
Meshe is the cuisine of Meizhou region, and Meizhou is also the first state of culture. Among them, Su Shi is the most famous. Therefore, Su Shi’s poetry is cited to give each private room a name.
▼包间与外部空间关系
Relationship between private rooms and external space© 吴昂
▼包间之间连通关系,Connectivity between private rooms© 吴昂
包间墙面局部开窗,用宣纸材料进行隔音处理,保证私密的同时,也跟外部空间有一些互动。在相邻的两个包间中间,设置可开启的移门,增添包间使用上的功能性。
The walls of the private room are partially windowed and soundproofed with rice paper material to ensure privacy while also interacting with the external space. In the middle of the adjacent two private rooms, an openable sliding door is installed to enhance the functionality of the private room.
▼搭建过程,Creative process© 段旺旺
▼轴测图,axonometric drawing© 段旺旺
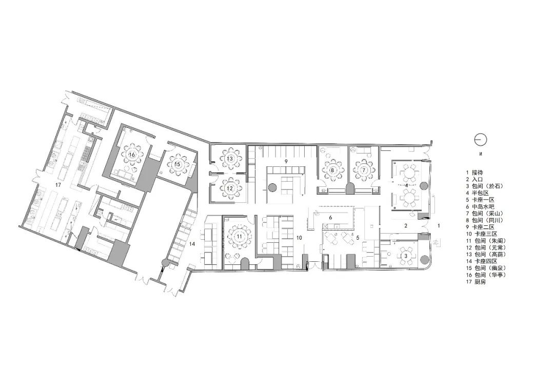
▼平面图,plan© 段旺旺
项目名称:眉舍餐厅
项目类型:餐饮空间
设计方:段旺旺
项目设计:段旺旺
完成年份:2023
项目地址:北京市
建筑面积:703㎡
摄影版权:吴昂
材料:微水泥、肌理涂料、砖块、旧木、木饰面、玻璃砖
文字/图片:段旺旺
往期回顾
❍
❍为青年设计发声第一时间接收精选内容
客服
消息
收藏
下载
最近

































