查看完整案例

收藏

下载
欢迎来到大铭的7月装修日记
每一次设计,都是梦想的呈现
Every design is the presentation of the dream.
DESIGN
“
设计理念
客户经朋友介绍选择了铭品装饰,在合作过程中,客户对铭品装饰的设计实力、施工工艺,及作品还原度都非常认可。
客户对新家的收纳、舒适度、细节等都有极高的要求。设计师根据客户喜好,精心规划现代轻奢风,多一丝精致,少一丝繁琐。在保证整体美观度的同时,设计多组储物柜,满足客户的收纳需求,提升居住的幸福感与舒适感。
“
设计亮点
① 将客厅与阳台打通,餐厅的空间得到延伸,更加通透;
② 将厨房门改至餐厅方向,让空间动线更合理。
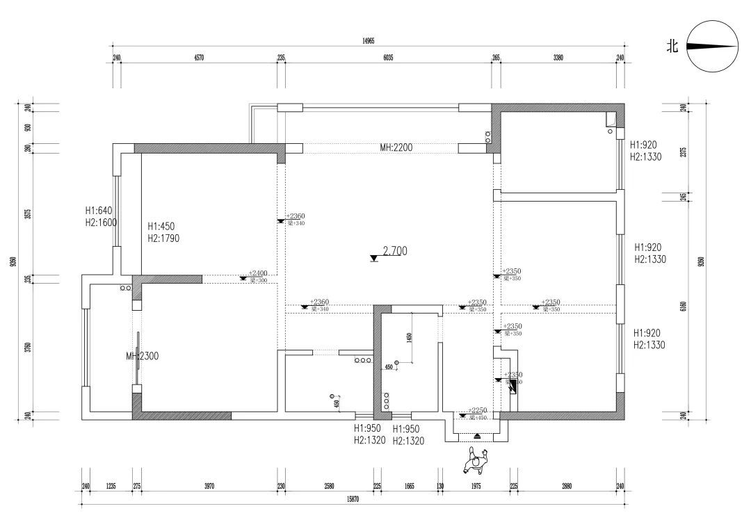
原始结构图
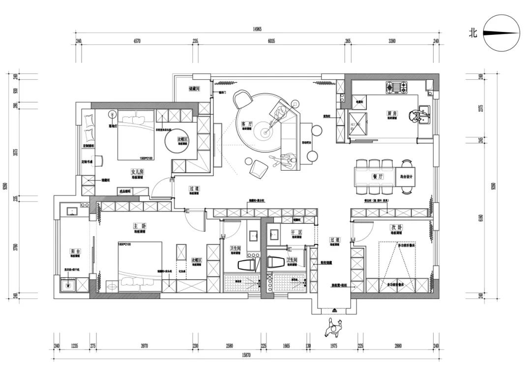
平面布置图
客 厅
DRAWING ROOM.
在玄关处设计两排嵌入式鞋柜,为一家人的鞋子提供充足的收纳空间,其中一排鞋柜做镂空设计,可收纳钥匙等小物件。
开阔的面积,是客厅独特的优势,将客厅与阳台打通,配合两扇落地窗,整空间体更加明亮。白色吊顶+浅咖色木饰面+浅灰色地砖,恰到好处的搭配,赋予空间高端质感。
采用无主灯设计让空间更加干净、通透,同时以磁吸轨道灯和筒灯让全屋照明无死角,在色彩上与白色吊顶达成撞色效果,营造氛围感。
与整体风格统一的轻奢风茶几占据C位,搭配现代风地毯,成为客厅的视觉焦点。活力橙单人椅与空间形成不动声色地碰撞,个性且俏皮。
以木饰面做隐形门设计,隔开餐厅和储藏室,同时过道处设计整排收纳柜和展示柜,依旧以木饰面进行装饰,保证了美观度,又提高生活效率,扩大了收纳空间。
通过落地窗带来开阔的视野,让居住者能尽情享受空间的魅力,坐在窗边即可欣赏远处山景,诗和远方皆在眼前。
极简的线条在空间中交织、延伸,自然利落,在无形中成为空间的装饰,为生活营造出干净、舒适的氛围感,让一切回归本质。
餐 厅
DINING HALL.
移步至餐厅,在餐桌另外一边设计餐边柜和透明展示柜,满足餐厅多方位收纳需求。柜体皆有灯线设计,微弱的光如同一股暖流,在餐厅的角落里流淌,每一个细节都变得愈发美好,让人感受到一种无声的温暖。
石材与金属结合设计的轻奢风餐桌成为餐厅一大亮点,增加岛台设计,即可将餐厅作为水吧,日常洗水果、杯子等使用,也进一步提升了餐厅的收纳力。
在温柔灯光的映衬下,每一道佳肴都为空间增添着烟火气,让家的氛围不断升华,时光也在一日三餐中慢下来。
厨 房
KITCHEN.
以一扇推拉式玻璃门将客厅与餐厅隔开,以白色为主色调的厨房尽显空间极致高级感,采用“U”字型设计,合理划分厨房的功能区,让整体动线更加合理,整排的定制柜也满足了空间的收纳需求,让空间简洁干净。
主 卧
MASTER BEDROOM.
卧室以浅咖色和白色为主色调,营造温暖感。设计多排嵌入式衣柜,满足衣物收纳需求,并延伸出悬空化妆桌,打造开放式衣帽间,也扩大了卧室容量,将空间利用到极致。吊顶以灯带做灯光效果,既提供了照明,又不会打破空间的温馨。
卧室阳台作为生活阳台使用,以洗衣机+烘干机+定制柜的组合呈现,满足日常盥洗需求的同时,又提供了更多收纳空间。
女 儿 房
DAUGHTER'S ROOM.
筒灯搭配主灯,可以随时切换空间的明亮度和氛围感,让卧室成为一个自由、舒适、放松的空间。入门处规划开放式衣帽间,设计白色定制衣柜,井井有条之余,保持开阔舒适。床头设计整排连体床头柜,既满足收纳需求,又可以倚靠休息,尽享悠闲时光。
床尾设计悬空梳妆台,搭配轻奢风靠背梳妆凳,为空间增加一丝层次感。设计飘窗+书柜,打造卧室的休闲区,看书、欣赏窗外风景、依靠着小憩一下,都是平淡日子里的小确幸。
项目地址 / 浙江 · 杭州
项目面积 / 135㎡
空间配置 / 三室两厅两卫一厨
设计风格 / 现代轻奢
设计团队 / 铭品装饰
END
客服
消息
收藏
下载
最近




























