查看完整案例

收藏

下载
我们的 slogan
中国式生活方式倡导者
着力于正念设计
着眼商业定位
为客户的客户做踏踏实实的设计
是我们的使命
HOTEL SPACEDESIGN
酒店空间设计
着力于正念设计,着眼商业定位,为客户的客户做踏踏实实的设计,是我们的使命。专注生活美学、艺术与设计融合,我们不断探寻设计的秘密,一次又一次挑战想象的可能,一直在做始于客户需求,而不止于需求的专业设计。
丰泽金日创始人 设计总监 穆鑫
门头
01ORIENTATION
项目定位
沧州『青山宾馆』是沧州建成最早的会议型酒店,是沧州政府机关、企事业单位举办会议、培训等最主要的承接单位。建成至今已将近二十年,期间虽局部进行改造,但整体基础设施老化陈旧,已无法满足正常的运营需求。同时遭遇三年疫情,会议培训等活动几乎全部取消。对于『青山宾馆』的升级改造迫在眉睫。
项目原貌
项目原貌
02PLAN
设计方案
首先是酒店定位的调整,由单一的会议型转变为会议+商务型,稳定的会议类客源保留的基础上扩大设计客群。
基于酒店的定位,再去梳理酒店的功能布局,通过将会议区集中并独立,同时将会议型客房于商务客房分层设置,实现两类客群的兼容,动静分离;同时通过动线的分离设置,避免了会议期间大量参会人员对公区及商务客群的影响,提升酒店入住体验。
01
02
03
04
05
06
07
08
03HIGHLIGHTS
设计亮点
对于酒店形象的提升,除了配套设施的提升,更要体现『青山宾馆』的历史底蕴和文化特色。
基于会议+商务的客群定位,酒店整体以厚重沉稳的氛围为基调,提炼『青山宾馆』的“青”与“山”,对应中国文化中的典型色彩“青”色为主题点缀空间。
同时,以中国山水思想为底蕴营造恬静,清淡、豁达的空间体验感。
10
11
12
13
14
15
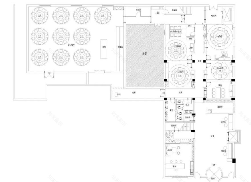
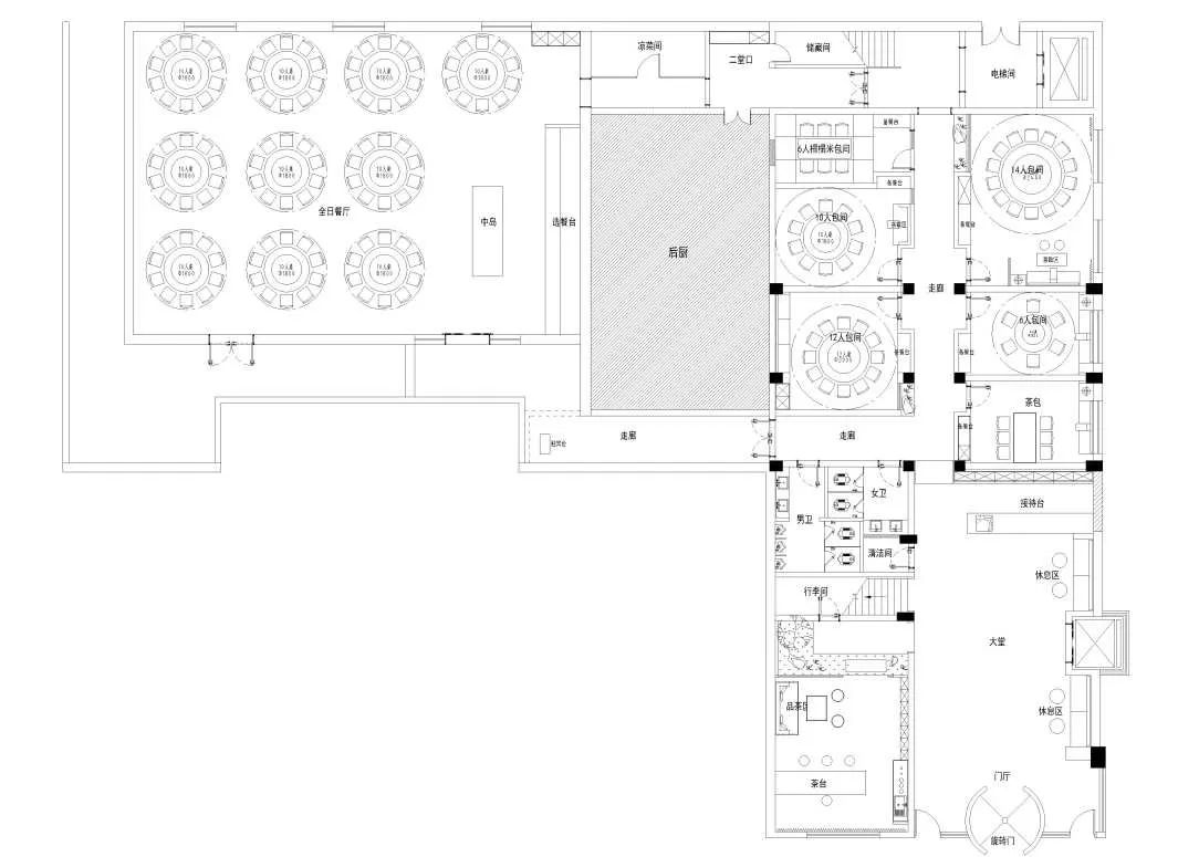
04PLAN
平面图
一层
二层
三层
四层
五层
青山宾馆|
项目名称
丰泽金日设计
| 设计机构
酒店|
项目类型
中国 河北沧州
| 项目地点
3300m² | 设计面积
大理石、木饰面、不锈钢 等
|
项目选材
往|期|精|选
联|系|
我|们
官方网站
丨 0311-89851618
丨 13503209869
地址
丨河北省石家庄市桥西区南小街 129 号
丨丰泽金日设计(ID:sjzfzjr)
感|谢|关|注
了解我们
客服
消息
收藏
下载
最近





























