查看完整案例

收藏

下载

翻译
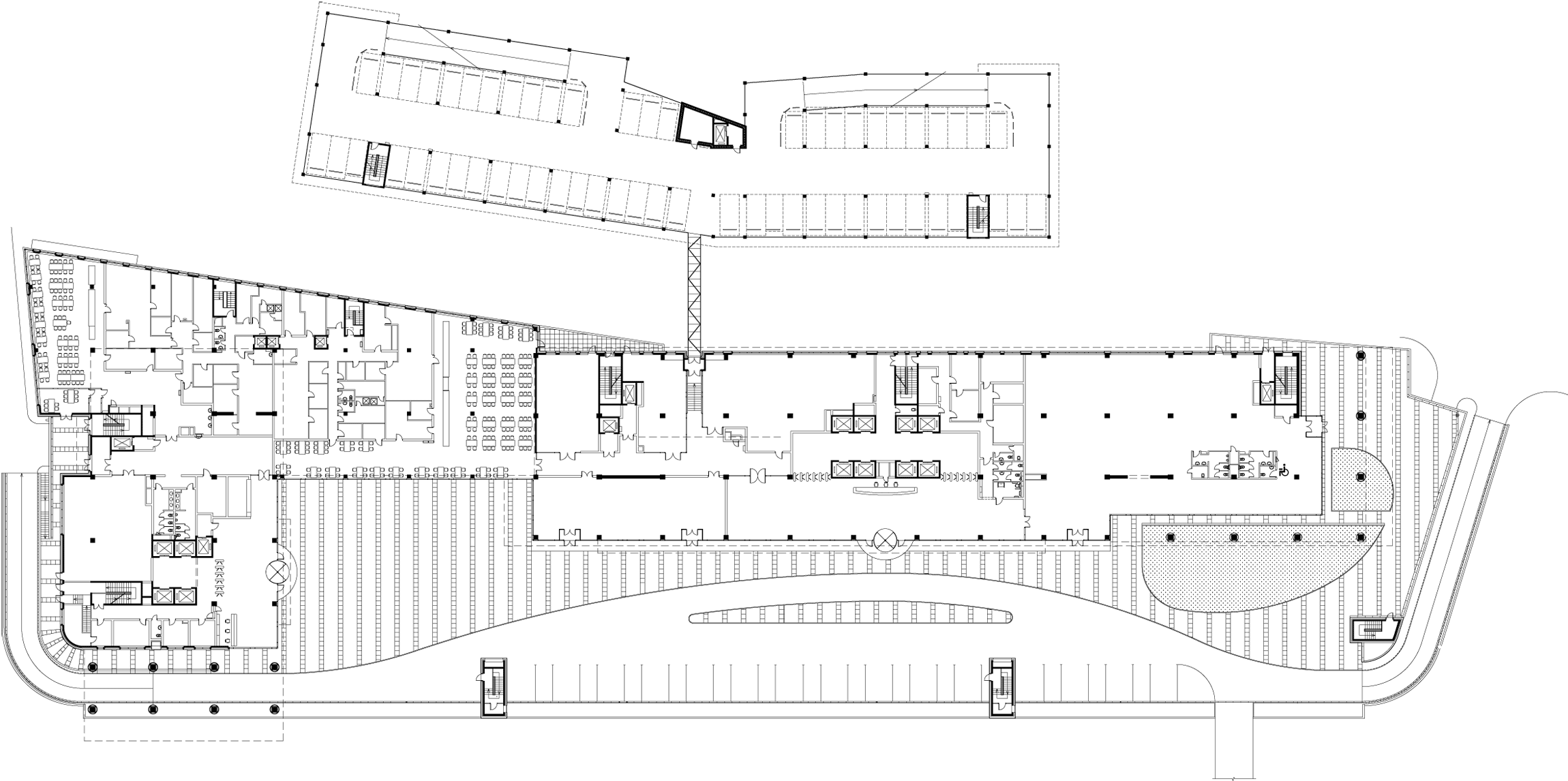
Àäìèíèñòðàòèâíî-äåëîâîé öåíòð íà Ðóáëåâî-Óñïåíñêîì øîññå, 2014. Ñåðãåé Êèñåë¸â è Ïàðòíåðû. Ôîòîãðàôèÿ © Àëåêñåé ÕîëîïîâPallau RB: Àäìèíèñòðàòèâíî-äåëîâîé öåíòð, 1-é êì Ðóáëåâî-Óñïåíñêîãî øîññå/ Pallau RB: Administrative and business centre, 1st km of Rublevo-Uspenskoe highwayèíôîðìàöèÿ:ñòàòóñðåàëèçîâàíîäàòû2007/20122014ìåñòîÐîññèÿ,Ìîñêîâñêàÿ îáëàñòü Îäèíöîâñêèé ðàéîíÁàðâèõèíñêèé Ñ. Î., 1-é êì Ðóáëåâî-Óñïåíñêîãî øîññåôóíêöèÿÀäìèíèñòðàòèâíî-îôèñíûé/àäìèíèñòðàòèâíî-äåëîâîé êîìïëåêñâûñîòà42.05Àäìèíèñòðàòèâíî-äåëîâîé öåíòð íà Ðóáëåâî-Óñïåíñêîì øîññå, 2014. Ñåðãåé Êèñåë¸â è Ïàðòíåðû© Àëåêñåé ÕîëîïîâÀðõè.ðó îá ýòîì îáúåêòå:28.06.2018Àëþìèíèåâûå êîíñòðóêöèè «ÒÀÒÏÐÎÔ» äëÿ âèòðàæåé Pallau RBÎ ïðîåêòå àäìèíèñòðàòèâíî-äåëîâîãî öåíòðà Pallau RB, ðàñïîëîæåííîãî çà ÌÊÀÄ ó Ðîìàøêîâñêîãî ëåñà, â ñàìîì íà÷àëå Ðóáëåâî-Óñïåíñêîãî øîññå, íà åãî ïåðâîì êèëîìåòðå, ìû ïèñàëè äâàæäû. Ïåðâûé âàðèàíò àðõèòåêòóðíàÿ êîìïàíèÿ Ñåðãåé Êèñåëåâ è Ïàðòíåðû...÷èòàòü äàëüøåäðóãèå òåêñòû Àðõè.ðó:11.03.2015Þëèÿ Òàðàáàðèíà. Êðèñòàëëèçàöèÿ ïåðåêðåñòêà18.11.2013Àííà Ìàðòîâèöêàÿ. Èãîðü Øâàðöìàí: «Ìû ñòàðàåìñÿ äåëàòü âñå äëÿ òîãî, ÷òîáû ïðîåêò ñîñòîÿëñÿ îò è äî»22.09.2008Àííà Òóðóëèíà. Âñå áûñòðåé, ì÷èòñÿ âðåìÿ âñå áûñòðåéÀäìèíèñòðàòèâíî-äåëîâîé öåíòð íà Ðóáëåâî-Óñïåíñêîì øîññå, 2014. Ñåðãåé Êèñåë¸â è Ïàðòíåðû. Ôîòîãðàôèÿ © Àëåêñåé Õîëîïîâàðõèòåêòóðíî-ïëàíèðîâî÷íûå ðåøåíèÿ:Êîìïîçèöèîííî ïðîåêòèðóåìûé êîìïëåêñ Àäìèíèñòðàòèâíî-äåëîâîãî öåíòðà îòâå÷àåò óãëîâîìó ìåñòîíàõîæäåíèþ ó÷àñòêà îòíîñèòåëüíî ÌÊÀÄ è Ðóáëåâî-Óñïåíñêîãî øîññå. Ðàçíîâåêòîðíîå ðàñïîëîæåíèå äâóõ êîðïóñîâ îòíîñèòåëüíî ïðèëåãàþùèõ ìàãèñòðàëåé óñèëèâàåò ïðîñòðàíñòâåííóþ êîìïîçèöèþ çàñòðîéêè ó÷àñòêà è îáîãàùàåò âîñïðèÿòèå âñåãî êîìïëåêñà ïðè äâèæåíèè ïî ÌÊÀÄ è Ðóáëåâî-Óñïåíñêîìó øîññå, ÷òî íåîäíîêðàòíî ïðîâåðÿëîñü íà êîìïüþòåðíîé àíèìàöèîííîé ìîäåëè. Ðàçìåùåíèå íà äîâîëüíî óçêîì ó÷àñòêå äâóõ êîðïóñîâ â ðàçíûõ âåêòîðàõ îðãàíèçóåò âíóòðåííåå ïðîñòðàíñòâî è óëó÷øàåò îáúåìíîå âîñïðèÿòèå âñåãî êîìïëåêñà. Ó÷èòûâàÿ ñóùåñòâóþùèé ïåðåïàä ðåëüåôà, ïðîåêòîì ïðåäóñìîòðåíî ñòðîèòåëüñòâî áîëüøîãî â ïëàíå öîêîëüíîãî ýòàæà, íà êîòîðîì âîçâîäÿòñÿ äâà îôèñíûõ êîðïóñà, À (8-10 ýò.) è Á (10 ýò.), îáúåäèíåííûõ ïî ïåðâîìó ýòàæó. Íà ïåðâîì ýòàæå ðàñïîëàãàþòñÿ: ðÿä ïîìåùåíèé îáùåãî íàçíà÷åíèÿ, ñòîëîâûå, íåáîëüøîé ðåñòîðàí, ïîìåùåíèÿ ñåðâèñíîãî îáñëóæèâàíèÿ, îòäåëåíèå áàíêà, à òàê æå ãëàâíûå âõîäû â îôèñíûå êîðïóñà.  öîêîëüíîì ýòàæå ðàçìåùåíû àâòîñòîÿíêà ëåãêîâûõ àâòîìîáèëåé, ðÿä òåõíè÷åñêèõ ïîìåùåíèé (ÒÏ, âåíòêàìåðû, ÈÒÏ, âîäîìåðíûé óçåë, íàñîñíàÿ ïîæàðîòóøåíèÿ) è âñïîìîãàòåëüíûå ïîìåùåíèÿ îáùåïèòà. Ñî âòîðîãî ïî äåâÿòûé ýòàæ ðàçìåùåíû îôèñíûå ïîìåùåíèÿ. Ñëåäóåò îòìåòèòü, ÷òî îôèñíûå ýòàæè âûïîëíåíû ñ óñëîâèåì ìàêñèìàëüíîé óíèâåðñàëüíîñòè, ò. å. ïðîåêòîì ïðåäóñìîòðåíà âîçìîæíîñòü èíäèâèäóàëüíîé ïëàíèðîâêè äëÿ êàæäîãî ïîòåíöèàëüíîãî àðåíäàòîðà. Íàëè÷èå êîìïàêòíî ðàñïîëîæåííûõ ëåñòíè÷íî-ëèôòîâûõ óçëîâ îáåñïå÷èâàåò óíèâåðñàëüíîñòü ïëàíèðîâî÷íûõ ðåøåíèé íà îôèñíûõ ýòàæàõ. Òàêèì îáðàçîì, èìååòñÿ âîçìîæíîñòü îðãàíèçàöèè ðàáî÷åãî ïðîñòðàíñòâà êàæäîãî ýòàæà îòêðûòîãî òèïà, òðàäèöèîííî êàáèíåòíîãî èëè ñìåøàííîãî òèïà.Íàðóæíàÿ îòäåëêà íàðóæíîé îòäåëêå êîìïëåêñà ïðîåêòîì ïðåäóñìàòðèâàåòñÿ ïðèìåíåíèå ñîâðåìåííûõ âûñîêîêà÷åñòâåííûõ ìàòåðèàëîâ. Âñÿ ñòèëîáàòíàÿ ÷àñòü îáëèöîâûâàåòñÿ åñòåñòâåííûì êàìíåì – ãðàíèòîì, ñâåòëî-ñåðîãî öâåòà. Ôàñàäû êîðïóñîâ À è Á âûïîëíÿþòñÿ íà îñíîâå âûñîêîêà÷åñòâåííûõ âèòðàæíûõ êîíñòðóêöèé è ÷àñòè÷íî íà îñíîâå ñèñòåìû âåíòèëèðóåìûõ ôàñàäîâ ñ îáëèöîâêîé ìåäíûìè êàññåòàìè è ìåäíîé ñåòêîé (íà òîðöåâûõ ôàñàäàõ).Ïîâåðõíîñòü êðîâëè ñòèëîáàòà âûïîëíÿåòñÿ â âèäå ìîùåíèÿ ãðàíèòíûìè ïëèòàìè ñ îãíåâîé îáðàáîòêîé ëèöåâîé ïîâåðõíîñòè è ìîùåíèÿ ìåëêîðàçìåðíîé ãðàíèòíîé áðóñ÷àòêîé. Îãðàæäåíèå ñòèëîáàòà – ãëóõîå, îáëèöîâàííîå åñòåñòâåííûì êàìíåì, ãðàíèòîì ñâåòëî-ñåðîãî öâåòà.Êðîâëè êîðïóñîâ À è Á – ýêñïëóàòèðóåìûå, ìîùåííûå áåòîííîé ïëèòêîé. Îãðàæäåíèå áàëêîíîâ ýâàêóàöèîííûõ ëåñòíèö ìåòàëëè÷åñêîå, ðåøåò÷àòîå, âîçìîæíî ïðèìåíåíèå íåðæàâåþùåé ñòàëè.Âíóòðåííÿÿ îòäåëêà ïîìåùåíèé ñîîòâåòñòâèè ñ çàäàíèåì íà ïðîåêòèðîâàíèå ïðîåêòîì ïðåäóñìàòðèâàåòñÿ âíóòðåííÿÿ îòäåëêà òîëüêî ïîìåùåíèé îáùåãî íàçíà÷åíèÿ, à èìåííî, âåñòèáþëåé ãëàâíûõ âõîäîâ êîðïóñîâ À è Á, èõ ëèôòîâûõ õîëëîâ è âíóòðåííèõ ëåñòíèö, à òàêæå çîíû îáùåãî ïîëüçîâàíèÿ, ðàçìåùåííîé íà ïåðâîì ýòàæå. Êðîìå òîãî, ïðåäóñìàòðèâàåòñÿ îòäåëêà ïîìåùåíèé öîêîëüíîãî ýòàæà (ãàðàæà–ñòîÿíêè, èíæåíåðíî-òåõíè÷åñêèõ ïîìåùåíèé è ïðî÷èõ).Âñå àðåíäíûå ïëîùàäè, à èìåííî ïîìåùåíèÿ îôèñíîãî íàçíà÷åíèÿ, ñäàþòñÿ àðåíäàòîðàì áåç îòäåëêè. Îäíàêî ïðîåêòîì ïðåäóñìàòðèâàåòñÿ ðÿä ðåøåíèé, ðåãëàìåíòèðóþùèõ ñòðîèòåëüíûå äåéñòâèÿ êîíêðåòíûõ àðåíäàòîðîâ ïî èíäèâèäóàëüíîé îòäåëêå ïîìåùåíèé. Òàêèìè ðåøåíèÿìè ÿâëÿþòñÿ òîòàëüíàÿ ãèäðîèçîëÿöèÿ ïîëîâ âñåõ îôèñíûõ ýòàæåé è óñòàíîâêà ñèñòåì ôàëüøïîëîâ è ïîäâåñíûõ ïîòîëêîâ, îáåñïå÷èâàþùèõ óíèâåðñàëüíîñòü ðàçâîäêè ýëåêòðè÷åñêèõ è ñëàáîòî÷íûõ ñåòåé âíóòðè îôèñîâ.Íàäçåìíàÿ àâòîñòîÿíêàÏðîåêòèðóåìîå çäàíèå íàäçåìíîé àâòîñòîÿíêè ðåøàåòñÿ â âèäå ïÿòèýòàæíîãî êàðêàñíîãî ñîîðóæåíèÿ áàç îãðàæäàþùèõ êîíñòðóêöèé. Çäàíèå ðàçìåùàåòñÿ íà äîïîëíèòåëüíîì ó÷àñòêå, â ïÿòíàäöàòè ìåòðàõ îò êîìïëåêñà çäàíèé Àäìèíèñòðàòèâíî-äåëîâîãî öåíòðà.Ïðÿìîóãîëüíîå â ïëàíå çäàíèå íåñêîëüêî ñëîìàíî, ïîâòîðÿÿ èçëîì ó÷àñòêà è äîðîãè. Ñ òûëüíîé ñòîðîíû ðàñïîëîæåíû äâå ðàìïû âúåçäà è âûåçäà àâòîìîáèëåé. óðîâíå âòîðîãî ýòàæà, ïðîåêòîì ïðåäóñìàòðèâàåòñÿ óñòðîéñòâî îòêðûòîãî íàäçåìíîãî ïåðåõîäà, ñâÿçûâàþùåãî çäàíèå àâòîñòîÿíêè ñ ïåðâûì ýòàæîì Àäìèíèñòðàòèâíî-äåëîâîãî öåíòðà.ðåøåíèÿ ãåíåðàëüíîãî ïëàíà:Ó÷àñòîê ñòðîèòåëüñòâà âêëþ÷àåò äâå ðàçíîâåëèêèå ïëîùàäêè, êîòîðûå ðàçäåëåíû ñóùåñòâóþùåé ãðóíòîâîé äîðîãîé. Îñíîâíàÿ ïëîùàäêà (1,48 ãà) ïðåäíàçíà÷åíà äëÿ ñòðîèòåëüñòâà Àäìèíèñòðàòèâíî-äåëîâîãî öåíòðà. Äðóãàÿ ïëîùàäêà (0,42 ãà) ïðåäíàçíà÷åíà äëÿ ñòðîèòåëüñòâà íàçåìíîé, ïÿòèýòàæíîé àâòîñòîÿíêè. Ñòðîèòåëüñòâî íàçåìíîé àâòîñòîÿíêè ïðåäóñìàòðèâàåòñÿ ïîñëå âûâîäà äàííîé ïëîùàäêè èç ñòàòóñà ñåëüñêîõîçÿéñòâåííûõ óãîäèé â óñòàíîâëåííîì ïîðÿäêå. Îáå ïëîùàäêè îòíîñèòåëüíî Ðóáëåâî-Óñïåíñêîãî øîññå ðàñïîëîæåíû âòîðûì ýøåëîíîì çà ñóùåñòâóþùåé çàñòðîéêîé îáùåñòâåííîãî íàçíà÷åíèÿ (îäíîýòàæíûìè çäàíèÿìè êàðòèíãà, ÀÇÑ è ïÿòèýòàæíûì îôèñíûì çäàíèåì). Õàðàêòåð ðåëüåôà îáåèõ ïëîùàäîê – ïëîñêèé.  íàñòîÿùåå âðåìÿ íà íèõ îòñóòñòâóþò êàêèå-ëèáî çäàíèÿ è ñîîðóæåíèÿ, à òàêæå çåëåíûå íàñàæäåíèÿ.Íà îñíîâå àíàëèçà â öåëîì ñëîæèâøåéñÿ ãðàäîñòðîèòåëüíîé ñèòóàöèè â äàííîì ìåñòå, ïðîåêòîì ïðåäëàãàåòñÿ ñòðîèòåëüñòâî êîìïëåêñà Àäìèíèñòðàòèâíî-äåëîâîãî öåíòðà, àäåêâàòíîãî ìàñøòàáó ñóùåñòâóþùåé çàñòðîéêè è ïðèðîäíîãî îêðóæåíèÿ Ïîäìîñêîâüÿ. Êîìïîçèöèîííîå ðåøåíèå çàñòðîéêè áàçèðóåòñÿ íà ïðîäóìàííîé ñõåìå îðãàíèçàöèè äâèæåíèÿ òðàíñïîðòà, óâÿçàííîé ñ íàñòîÿùèì, äîâîëüíî ñëîæíûì ïîëîæåíèåì òðàíñïîðòíîé ñåòè, ïðèëåãàþùåé ê ïëîùàäêå áóäóùåãî ñòðîèòåëüñòâà. Ðàñïîëîæåíèå ïðîåêòèðóåìîãî êîìïëåêñà íà ïåðåñå÷åíèè ÌÊÀÄ è Ðóáëåâî-Óñïåíñêîãî øîññå, áåçóñëîâíî, îïðåäåëÿåò îáúåìíîå ðåøåíèå çàñòðîéêè, êîòîðàÿ äîëæíà èìåòü ÿðêèé èíäèâèäóàëüíûé îáðàç è ñòàòü ñâîåãî ðîäà çíàêîì, âîñïðèíèìàþùèìñÿ â äèíàìèêå äâèæåíèÿ ïî âûøåíàçâàííûì òðàíñïîðòíûì ìàãèñòðàëÿì.Íà îñíîâíîé ïëîùàäêå ó÷àñòêà ïðîåêòîì ïðåäóñìàòðèâàåòñÿ ñòðîèòåëüñòâî äâóõ êîðïóñîâ, ðàçìåùàåìûõ íà îáùåì ñòèëîáàòå â âèäå öîêîëüíîãî ýòàæà.Òðàíñïîðòíîå îáåñïå÷åíèå êà÷åñòâå öåíòðàëüíîãî âúåçäà ñî ñòîðîíû Ìîñêâû ïðîåêòîì ïðåäëàãàåòñÿ èñïîëüçîâàòü òåððèòîðèþ ñåðâèòóòà, ñ êîòîðîãî îñóùåñòâëÿåòñÿ âúåçä â öîêîëüíûé ýòàæ (àâòîñòîÿíêà, õîçÿéñòâåííàÿ çàãðóçêà) è â íàäçåìíóþ ïÿòèýòàæíóþ àâòîñòîÿíêó, ðàçìåùàåìóþ íà âòîðîé (ñåâåðíîé) ïëîùàäêå. Ãëàâíûå âõîäû â êîðïóñà îôèñíîé ÷àñòè íàõîäÿòñÿ íà îòìåòêå êðîâëè öîêîëüíîãî ýòàæà, êîòîðàÿ òðàêòóåòñÿ êàê âíóòðåííÿÿ ïëîùàäü êîìïëåêñà, îáðàùåííàÿ íà þã, â ñòîðîíó Ðóáëåâî-Óñïåíñêîãî øîññå.Ïðîåêòíîå ðåøåíèå òðàíñïîðòíîãî îáåñïå÷åíèÿ Àäìèíèñòðàòèâíî-äåëîâîãî öåíòðà ïîñòðîåíî íà ìàêñèìàëüíîì èñïîëüçîâàíèè ñòðóêòóðû ñóùåñòâóþùèõ ïðîåçäîâ è âîçìîæíîñòåé ïðèëåãàþùèõ ìàãèñòðàëåé ÌÊÀÄ è Ðóáëåâî-Óñïåíñêîãî øîññå, ÷òî îòðàæåíî â îòäåëüíîì ïðîåêòå ïëàíèðîâêè ðàéîíà.Áëàãîóñòðîéñòâî è îçåëåíåíèåÏðîåêòíîå ðåøåíèå áëàãîóñòðîéñòâà, â îñíîâíîì, ñêîíöåíòðèðîâàíî íà âíóòðåííåé ïëîùàäè êîìïëåêñà, êàê íà ãëàâíîì ïåøåõîäíîì è òðàíñïîðòíîì ïðîñòðàíñòâå. Ðàçãðàíè÷åíèå ïðîåçæåé è ïåøåõîäíîé çîí îñóùåñòâëÿåòñÿ çà ñ÷åò ðàçíîãî õàðàêòåðà ìîùåíèÿ, òàê, ïåøåõîäíàÿ ÷àñòü îáëèöîâûâàåòñÿ ãðàíèòíûìè ïëèòàìè ñ îãíåâîé îáðàáîòêîé, à ïðîåçæàÿ ÷àñòü îáëèöîâûâàåòñÿ ãðàíèòíîé áðóñ÷àòêîé.  ëîêàëüíûõ ìåñòàõ ïîâåðõíîñòü ïëîùàäè ðåøàåòñÿ â âèäå ïîëíîöåííûõ ãàçîíîâ ñ âîçìîæíîé ïîñàäêîé äåêîðàòèâíûõ êóñòàðíèêîâ. Íà ïåøåõîäíîé çîíå óñòàíàâëèâàþòñÿ ìàëûå ôîðìû èíäèâèäóàëüíîãî èçãîòîâëåíèÿ è ñâåòèëüíèêè.Àäìèíèñòðàòèâíî-äåëîâîé öåíòð íà Ðóáëåâî-Óñïåíñêîì øîññå, 2014. Ñåðãåé Êèñåë¸â è Ïàðòíåðû. Ôîòîãðàôèÿ © Àëåêñåé ÕîëîïîâÀäìèíèñòðàòèâíî-äåëîâîé öåíòð íà Ðóáëåâî-Óñïåíñêîì øîññå, 2014. Ñåðãåé Êèñåë¸â è Ïàðòíåðû. Ôîòîãðàôèÿ © Àëåêñåé ÕîëîïîâÀäìèíèñòðàòèâíî-äåëîâîé öåíòð íà Ðóáëåâî-Óñïåíñêîì øîññå, 2014. Ñåðãåé Êèñåë¸â è Ïàðòíåðû. Ôîòîãðàôèÿ © Àëåêñåé ÕîëîïîâÀäìèíèñòðàòèâíî-äåëîâîé öåíòð íà Ðóáëåâî-Óñïåíñêîì øîññå, 2014. Ñåðãåé Êèñåë¸â è Ïàðòíåðû. Ôîòîãðàôèÿ © Àëåêñåé ÕîëîïîâÀäìèíèñòðàòèâíî-äåëîâîé öåíòð íà Ðóáëåâî-Óñïåíñêîì øîññå, 2014. Ñåðãåé Êèñåë¸â è Ïàðòíåðû. Ôîòîãðàôèÿ © Àëåêñåé ÕîëîïîâÏðîåêò èíòåðüåðà âåñòèáþëÿ áîëüøîãî êîðïóñà. Àäìèíèñòðàòèâíî-äåëîâîé öåíòð íà Ðóáëåâî-Óñïåíñêîì Øîññå © Ñåðãåé Êèñåë¸â è ÏàðòíåðûÏðîåêò èíòåðüåðà âåñòèáþëÿ ìàëîãî êîðïóñà. Àäìèíèñòðàòèâíî-äåëîâîé öåíòð íà Ðóáëåâî-Óñïåíñêîì Øîññå © Ñåðãåé Êèñåë¸â è ÏàðòíåðûÀäìèíèñòðàòèâíî-äåëîâîé öåíòð íà Ðóáëåâî-Óñïåíñêîì øîññå, 2007 © Ñåðãåé Êèñåë¸â è ÏàðòíåðûÀäìèíèñòðàòèâíî-äåëîâîé öåíòð íà Ðóáëåâî-Óñïåíñêîì øîññå, 2008 © Ñåðãåé Êèñåë¸â è Ïàðòíåðû.Àäìèíèñòðàòèâíî-äåëîâîé öåíòð íà Ðóáëåâî-Óñïåíñêîì øîññå, 2007 © Ñåðãåé Êèñåëåâ è ÏàðòíåðûÀäìèíèñòðàòèâíî-äåëîâîé öåíòð íà Ðóáëåâî-Óñïåíñêîì øîññå, 2007 © Ñåðãåé Êèñåëåâ è ÏàðòíåðûÀäìèíèñòðàòèâíî-äåëîâîé öåíòð íà Ðóáëåâî-Óñïåíñêîì øîññå, 2007 © Ñåðãåé Êèñåëåâ è ÏàðòíåðûÀäìèíèñòðàòèâíî-äåëîâîé öåíòð íà Ðóáëåâî-Óñïåíñêîì øîññå, 2007 © Ñåðãåé Êèñåëåâ è ÏàðòíåðûÀäìèíèñòðàòèâíî-äåëîâîé öåíòð íà Ðóáëåâî-Óñïåíñêîì øîññå, 2008 © Ñåðãåé Êèñåëåâ è ÏàðòíåðûÀäìèíèñòðàòèâíî-äåëîâîé öåíòð íà Ðóáëåâî-Óñïåíñêîì øîññå, 2007 © Ñåðãåé Êèñåëåâ è ÏàðòíåðûÀäìèíèñòðàòèâíî-äåëîâîé öåíòð íà Ðóáëåâî-Óñïåíñêîì øîññå, 2007 © Ñåðãåé Êèñåë¸â è ÏàðòíåðûÀäìèíèñòðàòèâíî-äåëîâîé öåíòð íà Ðóáëåâî-Óñïåíñêîì Øîññå, 2008 © Ñåðãåé Êèñåëåâ è ÏàðòíåðûÀäìèíèñòðàòèâíî-äåëîâîé öåíòð íà Ðóáëåâî-Óñïåíñêîì øîññå, 2008 © Ñåðãåé Êèñåëåâ è ÏàðòíåðûÀäìèíèñòðàòèâíî-äåëîâîé öåíòð íà Ðóáëåâî-Óñïåíñêîì øîññå, 2007 © Ñåðãåé Êèñåëåâ è ÏàðòíåðûÀäìèíèñòðàòèâíî-äåëîâîé öåíòð íà Ðóáëåâî-Óñïåíñêîì øîññå, 2008 © Ñåðãåé Êèñåëåâ è ÏàðòíåðûÏîëîæåíèå â ãîðîäå. Àäìèíèñòðàòèâíî-äåëîâîé öåíòð íà Ðóáëåâî-Óñïåíñêîì øîññå. Ñåðãåé Êèñåëåâ è ÏàðòíåðûÀäìèíèñòðàòèâíî-äåëîâîé öåíòð íà Ðóáëåâî-Óñïåíñêîì øîññå © Ñåðãåé Êèñåë¸â è Ïàðòíåðû.Ñèòóàöèîííûé ïëàí. Àäìèíèñòðàòèâíî-äåëîâîé öåíòð íà Ðóáëåâî-Óñïåíñêîì Øîññå © Ñåðãåé Êèñåë¸â è ÏàðòíåðûÀäìèíèñòðàòèâíî-äåëîâîé öåíòð íà Ðóáëåâî-Óñïåíñêîì øîññå © Ñåðãåé Êèñåë¸â è Ïàðòíåðû.Ïëàí íà óðîâíå 1 ýòàæà. Àäìèíèñòðàòèâíî-äåëîâîé öåíòð íà Ðóáëåâî-Óñïåíñêîì øîññå © Ñåðãåé Êèñåë¸â è Ïàðòíåðû.Ïëàí íà óðîâíå 6 ýòàæà. Àäìèíèñòðàòèâíî-äåëîâîé öåíòð íà Ðóáëåâî-Óñïåíñêîì øîññå © Ñåðãåé Êèñåë¸â è Ïàðòíåðû.Ðàçðåçû. Àäìèíèñòðàòèâíî-äåëîâîé öåíòð íà Ðóáëåâî-Óñïåíñêîì øîññå © Ñåðãåé Êèñåë¸â è ÏàðòíåðûÐàçðåçû. Àäìèíèñòðàòèâíî-äåëîâîé öåíòð íà Ðóáëåâî-Óñïåíñêîì øîññå © Ñåðãåé Êèñåë¸â è Ïàðòíåðû.
客服
消息
收藏
下载
最近






























