查看完整案例

收藏

下载

翻译
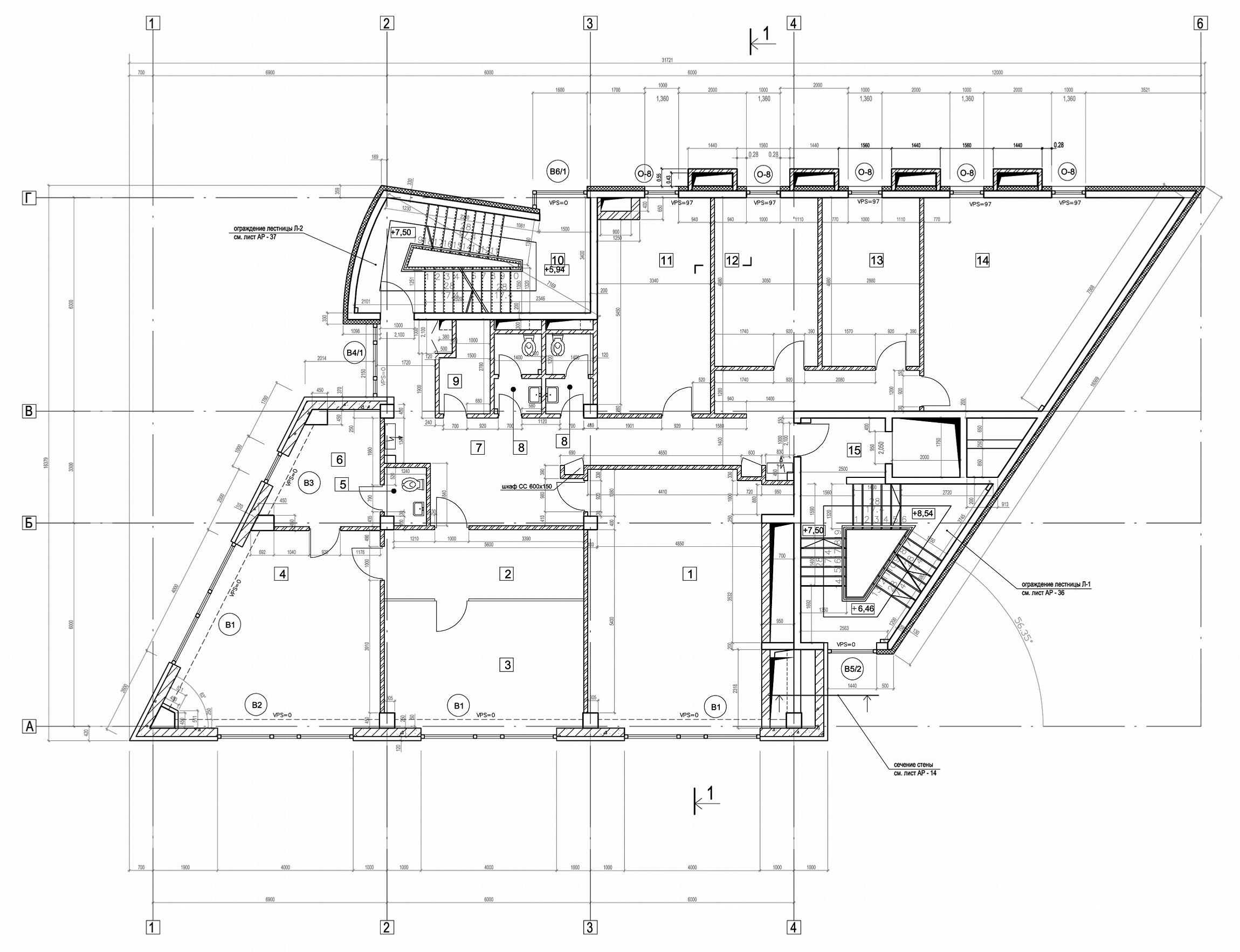
Îôèñíîå çäàíèå «Êðèñòàëáàíêà» íà Íîâîñëîáîäñêîé óëèöå © Àëåêñåé Áàâûêèí è ïàðòí¸ðûÎôèñíîå çäàíèå «Êðèñòàëáàíêà» íà Íîâîñëîáîäñêîé óëèöå/ Office building of the ′Kristalbank′ at the Novoslobodskaia streetèíôîðìàöèÿ:ñòàòóñðåàëèçîâàíîäàòû19982001ìåñòîÐîññèÿ,ÌîñêâàÍîâîñëîáîäñêàÿ, âë. 41/39ôóíêöèÿÀäìèíèñòðàòèâíî-îôèñíûé/àäìèíèñòðàòèâíî-îôèñíîå çäàíèåïëîùàäü çàñòðîéêè811 кв.м ì2îáùàÿ ïëîùàäü2270 кв.м ì2ýòàæíîñòü4 ÑÑ.ñòðîèòåëüíûé îáúåì8780 кÑб.м ì3Îôèñíîå çäàíèå «Êðèñòàëáàíêà» íà Íîâîñëîáîäñêîé óëèöå © Àëåêñåé Áàâûêèí è ïàðòí¸ðûÎôèñíîå çäàíèå «Êðèñòàëáàíêà» íà Íîâîñëîáîäñêîé óëèöå © Àëåêñåé Áàâûêèí è ïàðòí¸ðûîïèñàíèå:×åòûðåõýòàæíîå çäàíèå ðàñïîëîæåííî ïðàêòè÷åñêè íà ïåðåêðåñòêå Ëåñíîé è Íîâîñëîáîäñêîé óëèö è ÿâëÿåòñÿ ÷àñòüþ ëèíåéíîé çàñòðîéêè óëèöû Ëåñíàÿ.  ïîäâàëå ðàñïîëîæåíû áàíêîâñêèå õðàíèëèùà è àâòîñòîÿíêà íà îäèííàäöàòü ìàøèí. Íàäçåìíûå ýòàæè îôèñû áàíêà. Ñëîæíàÿ êîíôèãóðàöèÿ çäàíèÿ â ïëàíå ïðîäèêòîâàíà îòâåäåííûì ïîä ñòðîèòåëüñòâî ó÷àñòêîì, íîðìàòèâíûìè îòñòóïàìè îò ñîñåäíèõ äîìîâ è ïîäçåìíûõ êîììóíèêàöèé ãîðîäñêîãî çíà÷åíèÿ. Äîñòàòî÷íî òðàäèöèîííûé õàðàêòåð ôàñàäîâ, îáëèöîâàííûõ êèðïè÷îì è äåêîðàòèâíûìè âñòàâêàìè, îòâå÷àåò ïîæåëàíèÿì çàêàç÷èêà. Íåñêîëüêî àãðåññèâíûé ëåâûé óãîë çäàíèÿ ñëåäñòâèå ïëàíèðîâà÷íûõ îãðàíè÷åíèé.Îôèñíîå çäàíèå «Êðèñòàëáàíêà» íà Íîâîñëîáîäñêîé óëèöå © Àëåêñåé Áàâûêèí è ïàðòí¸ðûïðåññà:15.12.2001Íèêîëàé Ìàëèíèí.
Àðõèòåêòîðàì ñíèòñÿ òðàâêà.  ìîñêîâñêîì çîä÷åñòâå îáðàçîâàëàñü ïàðòèÿ "çåëåíûõ"
// Íåçàâèñèìàÿ ãàçåòà
, 15.12.2001Îôèñíîå çäàíèå «Êðèñòàëáàíêà» íà Íîâîñëîáîäñêîé óëèöå © Àëåêñåé Áàâûêèí è ïàðòí¸ðûÎôèñíîå çäàíèå «Êðèñòàëáàíêà» íà Íîâîñëîáîäñêîé óëèöå © Àëåêñåé Áàâûêèí è ïàðòí¸ðûÎôèñíîå çäàíèå «Êðèñòàëáàíêà» íà Íîâîñëîáîäñêîé óëèöå © Àëåêñåé Áàâûêèí è ïàðòí¸ðû
客服
消息
收藏
下载
最近








