查看完整案例

收藏

下载

翻译
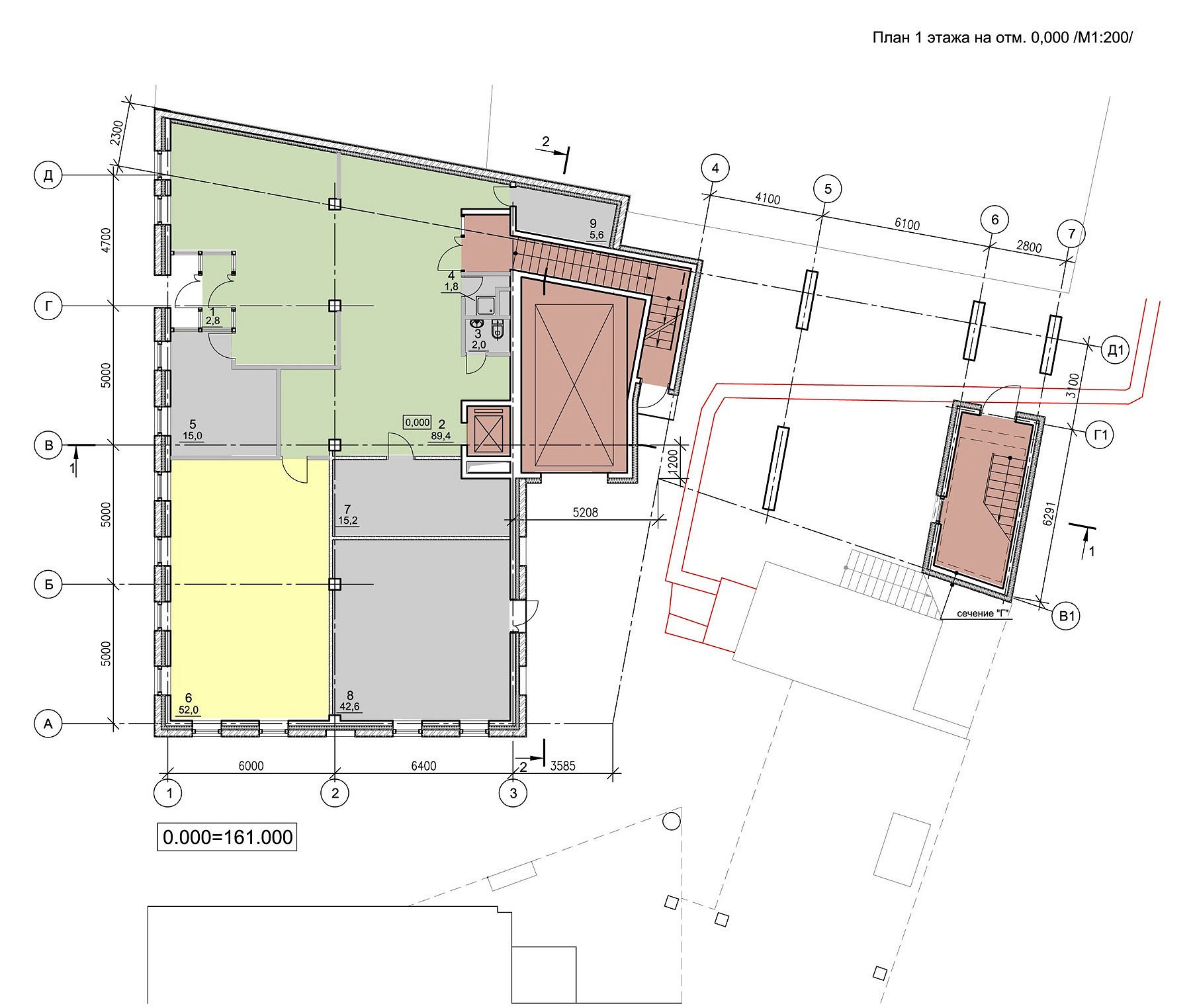
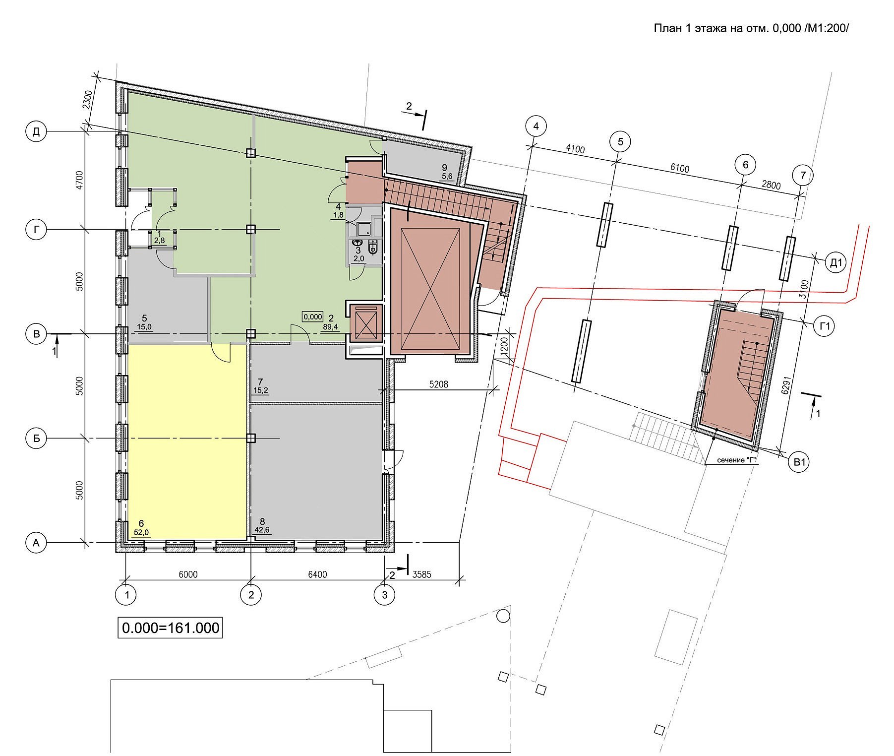
Ôîòî ìàêåòàÀäìèíèñòðàòèâíîå çäàíèå íà Ìÿñíèöêîéèíôîðìàöèÿ:ñòàòóñïðîåêòäàòû09.2004ìåñòîÐîññèÿ,Ìîñêâàóëèöà Ìÿñíèöêàÿ äîì 9/4 ñòð. 1ôóíêöèÿÀäìèíèñòðàòèâíî-îôèñíûé/àäìèíèñòðàòèâíî-îôèñíîå çäàíèåïëîùàäü çàñòðîéêè482,0 ì2ïëîùàäü ïîäçåìíàÿ296,3 ì2îáùàÿ ïëîùàäü2474,7 ì2âûñîòà16,5 ìýòàæíîñòü1 ïîäçåìíûé ýòàæ + 5ñòðîèòåëüíûé îáúåì7930,0 ì3Ôîòî ìàêåòàÔîòî-ìàêåòààðõèòåêòóðíî-ïëàíèðîâî÷íûå ðåøåíèÿ:Ïðîåêòèðóåìîå çäàíèå ñ çàïàäà ïðèìûêàåò ê êðàñíîé ëèíèè çàñòðîéêè Ìèëþòèíñêîãî ïåðåóëêà, ñåâåðíàÿ ñòåíà çäàíèÿ áðàíäìàóýðíàÿ ñìåæíàÿ ñ äðóãèì àäìèíèñòðàòèâíûì çäàíèåì, þæíûé è âîñòî÷íûé ôàñàä âûõîäÿò â äâîðîâóþ òåððèòîðèþ.Ôóíêöèîíàëüíîå íàçíà÷åíèå ïðîåêòèðóåìîãî îáúåêòà àäìèíèñòðàòèâíîå.Ïðîåêòîì ïðåäëàãàåòñÿ íàäñòðîèòü èñòîðè÷åñêîå çäàíèå îäíèì ýòàæîì è ìàíñàðäîé, à íà äâîðîâîé òåððèòîðèè âîçâåñòè 5 ýòàæíûé îáú¸ì. Íà ïîäçåìíîì óðîâíå ïðåäóñìîòðåíà àâòîñòîÿíêà äëÿ àâòîìàøèí ñëóæàùèõ, çàïðîåêòèðîâàííàÿ ñ èñïîëüçîâàíèåì àâòîìàòè÷åñêèõ ïàðêèíãîâûõ ñèñòåì. Çàãðóçêà ïîäçåìíîé ïàðêîâêè îñóùåñòâëÿåòñÿ ïîñðåäñòâîì àâòîìàòè÷åñêîãî ïîäú¸ìíèêà. Âúåçä íà ïîäú¸ìíèê ñî ñòîðîíû äâîðà. Àâòîïàðêèíãîâàÿ ñèñòåìà ïðåäñòàâëÿåò èç ñåáÿ 7 ïîäú¸ìíî-îïóñêíûõ óñòàíîâîê, êàæäàÿ èç êîòîðûõ âìåùàåò â ñåáÿ äî 3-õ àâòîìîáèëåé. Ïðè÷¸ì ñèñòåìà ïðåäïîëàãàåò ïîñëåäîâàòåëüíóþ çàãðóçêó êàæäîãî èç ïîäú¸ìíèêîâ.  ñâÿçè ñ âûøåñêàçàííûì â ïðîñòðàíñòâå ãàðàæà îäíîâðåìåííî ìîæåò ïðåáûâàòü íå áîëåå 7 ÷åëîâåê-âîäèòåëåé. Ïàññàæèðû èç àâòîìîáèëåé âûñàæèâàþòñÿ íà óëèöå è â ãàðàæ íå ïîïàäàþò.Çäàíèå ïðåäëàãàåòñÿ îáîðóäîâàòü äâóìÿ ýâàêóàöèîííûìè ëåñòíèöàìè è ãðóçîïàññàæèðñêèì ëèôòîì.ðåøåíèÿ ãåíåðàëüíîãî ïëàíà:Õàðàêòåðèñòèêè è çíà÷åíèå òåððèòîðèè â ñòðóêòóðå ãîðîäàÐàññìàòðèâàåìûé çåìåëüíûé ó÷àñòîê ìíîãîóãîëüíîé ôîðìû ïëîùàäüþ 0,048 ãà, ðàñïîëîæåí â Öåíòðàëüíîì Àäìèíèñòðàòèâíîì îêðóãå ã. Ìîñêâû ïî àäðåñó: óëèöà Ìÿñíèöêàÿ äîì 9/4 ñòðîåíèå 1 ðàñïîëîæåí â ãðàíèöàõ çàïîâåäíîé çîíû òåððèòîðèè «Áîëüøàÿ Ëóáÿíêà Ñðåòåíêà», îõðàííîé çîíû ÏÈÊ ¹49, àðõåîëîãè÷åñêè öåííîãî êóëüòóðíîãî ñëîÿ. Ðåëüåô ó÷àñòêà íåðîâíûé ñ óêëîíîì â þãî-çàïàäíîì íàïðàâëåíèè. Ñ çàïàäà ó÷àñòîê îãðàíè÷åí êðàñíîé ëèíèåé çàñòðîéêè Ìèëþòèíñêîãî ïåðåóëêà, ñ ñåâåðà ñòåíàìè ñóùåñòâóþùèõ çäàíèé. Þæíàÿ ñòîðîíà è âîñòî÷íàÿ ñòîðîíû îãðàíè÷åííû ñîáñòâåííîé ãðàíèöåé ó÷àñòêà. Íà òåððèòîðèè â äàííûé ìîìåíò íàõîäèòñÿ äâóõýòàæíîå èñòîðè÷åñêîå çäàíèå, êîòîðîå ïðîåêòîì ïðåäëàãàåòñÿ ðåêîíñòðóèðîâàòü. Íà ïðîòèâîïîëîæíîé ñòîðîíå Ìèëþòèíñêîãî ïåðåóëêà àäìèíèñòðàòèâíûå çäàíèÿ. Áëèæàéøàÿ ñòàíöèÿ ìåòðî «Òóðãåíåâñêàÿ».Õàðàêòåð ðåëüåôà è ïî÷âåííîãî ïîêðîâàÐåëüåô ó÷àñòêà íåðîâíûé ñ óêëîíîì â þãî-çàïàäíîì íàïðàâëåíèè. Ïåðåïàä ðåëüåôà íà ó÷àñòêå â ïðîåêòèðóåìûõ îòìåòêàõ ñîñòàâëÿåò îò -0,700 äî +0,600.Áëàãîóñòðîéñòâî òåððèòîðèèÏðîåêòîì ïðåäóñìàòðèâàåòñÿ âûñîêèé óðîâåíü áëàãîóñòðîéñòâà òåððèòîðèè ñ èñïîëüçîâàíèåì âûñîêîïðî÷íûõ ìàòåðèàëîâ äëÿ ïîêðûòèÿ ïðîåçäîâ. Íà òåððèòîðèè ó÷àñòêà ïðåäïîëàãàåòñÿ óñòðîéñòâî ïåøåõîäíûõ äîðîæåê, ïëîùàäîê ñ ïëèòî÷íûì ìîùåíèåì.Ïðîåêòîì ïðåäóñìîòðåíî îçåëåíåíèå òåððèòîðèè è ïëîñêîé êðîâëè çäàíèÿ ïðè ïîìîùè âûíîñíûõ êëóìá ñ öâåòàìè èç îäíîëåòíèõ öâåòîâ è êàäîê ñ ðàñòåíèÿìè (þêêà, òóÿ, ñàìøèò).Ñèòóàöèîííûé ïëàíÃåíïëàíÐàçâåðòêàÔàñàä þæíûéÔàñàä çàïàäíûéÏëàí 1-ãî-ýòàæàÏëàí-1-ãî-ýòàæàÏëàí 5-ãî-ýòàæàÐàçðåç 1-1Ðàçðåç 2-2
客服
消息
收藏
下载
最近















