查看完整案例


收藏

下载
独立住宅, Wye River, 澳大利亚
建筑设计:Chris Connell Design
面积:172 m²
项目年份:2020
摄影师: Willem-Dirk du Toit
厂家:AWS, Bluescope, Cemintel, George Fethers, HAY, Haymes Paint, Laminex, MODWOOD, Phoenix Tapware, Unios, made by storey
设计团队:Chris Connell, Benjamin Hutton, Nick Scott
City:Wye River
Country:澳大利亚
项目位于大洋路旁一个陡峭的斜坡上。建筑协调了私密空间与开放空间的关系,临近街道的立面具有极简主义风格,整体朝向北面,拥有面向巴斯海峡和分离溪谷的全景视野。
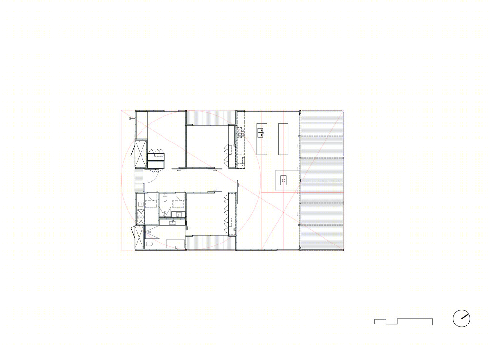
这座住宅作为一对年轻夫妇和两个孩子的周末住宅,吸收了现代设计风格和典型的澳洲石棉水泥房的形制,是加州现代主义的典范。建筑功能布置在一层,整体外观呈现为一个优雅的密斯式盒子,由细长的柱子支撑,向外延伸到周边的树丛,以最大限度地扩大景观视野,并制造出更多的自然采光面。
内部交通通过一个2米宽的走廊组织,卧室位于东西两侧,配置了通高的滑动门,推开门可以透过客厅看到海洋和远山。我们确保所有居住空间都与景观相连,为了不破坏建筑的整体性,两个主卧室的阳台向内缩进,这同时也有利于室内遮阳。在走廊的尽头有一个用黑色钢材装饰的四面壁炉,它位于中轴线上,方尖碑似的形状让它成为住宅的“锚”。打开滑动玻璃门,室内外都可以感受到温暖。
响应业主的需求,保证建筑和景观不间断互动,辅助空间都被隐藏起来。盥洗室和洗衣房隐藏在嵌入式门后,通过天窗采光,布置在建筑后侧,这样就没有外露的建筑设备。而存放工具和海滩用品的外部储藏室,门使用和建筑立面相同的材料,产生了消隐的效果。
12米宽的玻璃幕墙和室外平台充分利用了建筑的景观朝向,最大化室内外空间的交融。外部的钢架结构形成韵律感。附加在结构上的遮阳帆布为建筑增添了色彩,根据季节的不同可以调整它们的位置。
译者:闫盛康
项目完工照片 | Finished Photos
设计师:Chris Connell Design
分类:独立住宅
语言:简体中文
阅读原文
客服
消息
收藏
下载
最近





















