查看完整案例

收藏

下载

翻译
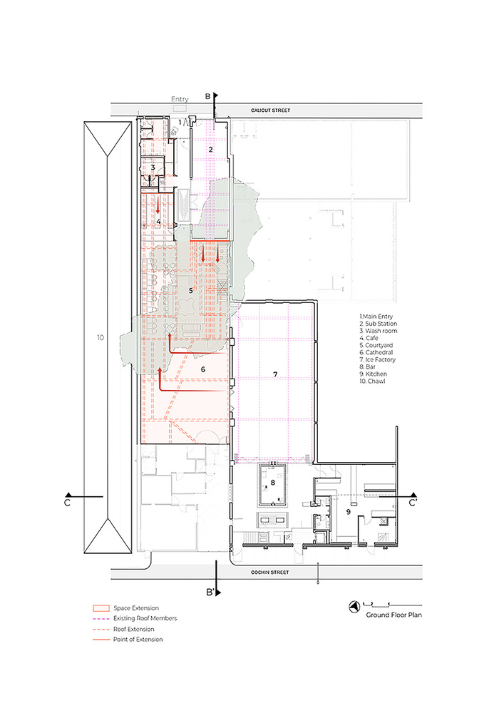
The 140-year-old Ambico Ice Factory is located in Ballard estate, the heart of Mumbai's heritage precinct. We have reimagined the space as IF.BE (Ice Factory Ballard Estate), is an organism that merges art, exhibition, events, performances, gatherings, food, and design. Essentially it is a space for encounter, organized within beautiful but aging structures surrounding a large Banyan tree. Time, arbitrary additions, and asymmetric structural and infrastructural loading had caused a level of damage and decay that was revealed through a patient and assiduous examination of walls, foundations, roofs, etc. The drawing archives revealed a continuous courtyard connecting Calicut and Cochin Street, which was now cluttered with ad-hoc structures and metal roofs. Within this courtyard, an old banyan tree sits alongside the chimney of the factory. The coherence of the load-bearing, wooden-trussed, north-lit interior spaces has been somewhat vitiated by successive divisions and alterations. The roots of the tree, growing within the premises, had been choked under rubble and concrete. This tree provided the spark of inspiration that birthed the project - the shift from the Ambico Ice Factory to IF.BE.
The recovery of the courtyard, restoring safety and clarity to the existing structure, revealing the organizational and physical anatomy, allowing the Banyan tree to breathe, and finding a way to shelter the new/additional spaces through a dialogue with the original structures was critical. There is no need to search for a new language, the triggers lie within the existing architecture. For four months, the factory's decades-old plaster walls were gently scraped before the first semblance of brickwork could emerge. The building's vintage Burma teak woodwork, lost to time, was slowly uncovered. The main Ice Factory, sub-station, cold storage, and the ice-cubing area required intensive examination and surgical intervention through retrofits to stabilize crumbling, warped, and leaking walls, sagging roofs and trusses (some of which had detached from their bearings). The existing North-light truss roofs are extended over the Cathedral but this undergoes two mutations to rotate 90 degrees to form the East-light roofs, while simultaneously dipping sharply towards the existing stone boundary wall to preserve light and ventilation for the neighboring structure. The pitched lantern roof of the sub-station extends over the courtyard and impacts the large glass walls of the newly formed ‘Cathedral’ Space.
Industrial artifacts found on site were creatively repurposed to evoke the factory's history - giant cooling coils used to manufacture ice have been embedded in the glass floor towards the entrance, giving the space a museum-like quality. The original gantry, used to move slabs of ice, continues to be housed in the Ice Factory and be mobilized as part of art installations as well as used to innovatively partition the room. The suturing is imagined to heighten the fragile, almost tenuous relationship between the ‘Found’ and the ‘Made’. It manifests the true nature of IF.BE is an exploration of the liminal space between speculation (IF) and reality (BE). IF.BE is a “seed” for urban regeneration in a largely commercial heritage precinct.
The current attitude towards development in this precinct favors the demolition of industrial spaces that do not fall within the Grade-I heritage umbrella. IF.BE is meant to be an example of holistic and sustainable development, and to serve as a reference for the present and future. It becomes an exercise in micro-urbanism, adaptive reuse, and a space for discourse in the public realm. Its message is material and notional. It serves as an example of sustainability through preservation. The suturing of spaces with different quantities of light, dimension, volume, and material around the Banyan tree forces one to engage with the space in unconventional ways unlike the “all white” gallery spaces or “black box” performance venues. Users and curators are encouraged to formulate their own conversations with the space and its evolving program.
A significant aspect of this project is that it has been imagined, mobilized, designed, built, and FUNDED (along with two equal partners) by Malik Architecture as a multi-pronged response to the rapid erosion of public space and institutions, as well as an unhealthy attitude towards our built history. In a way, it is an act of resistance towards the lack of physical space for open, healthy, democratic discourse and hope that other like-minded individuals embark on a similar journey. The team at Malik Architecture has sensitively both "unmade" and "remade" the Ice Factory, spending hundreds of manhours onsite, over three years. Treating the factory as an archaeological site, the team dug deep, unsure of what they'd find. Eventually, a palimpsest of small material fragments and measurements were pieced together to understand the Ice Factory's spatial vocabulary.
客服
消息
收藏
下载
最近


































