查看完整案例

收藏

下载

翻译
This project’s goal is to connect Sowol-gil and Duteopbawi-gil, which were cut off by cliffs in Huam-dong Village. Beyond the nature of a simple device that overcomes the level differences of existing Sowol-gil approaches, we wanted this building to become a new path open to everyone and a space where people gather and stories are made.
Most of the urban spatial experiences take place on the road. Architecture also considers the relationship between road and space in the environment of the existing road. We wanted to make this project a new road in the village itself, not a fragmentary relationship between the existing road and space. And I would like to observe what experiences and changes will be made through this project.
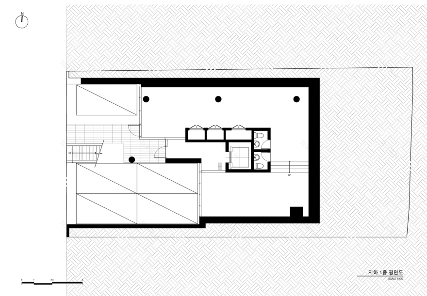
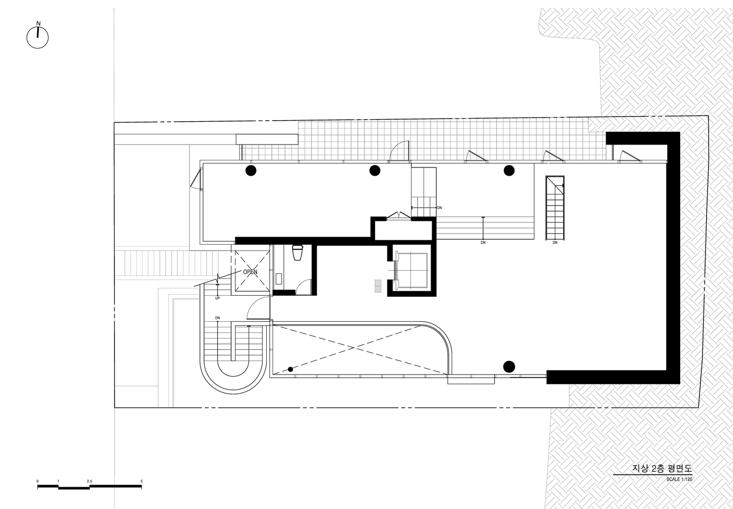
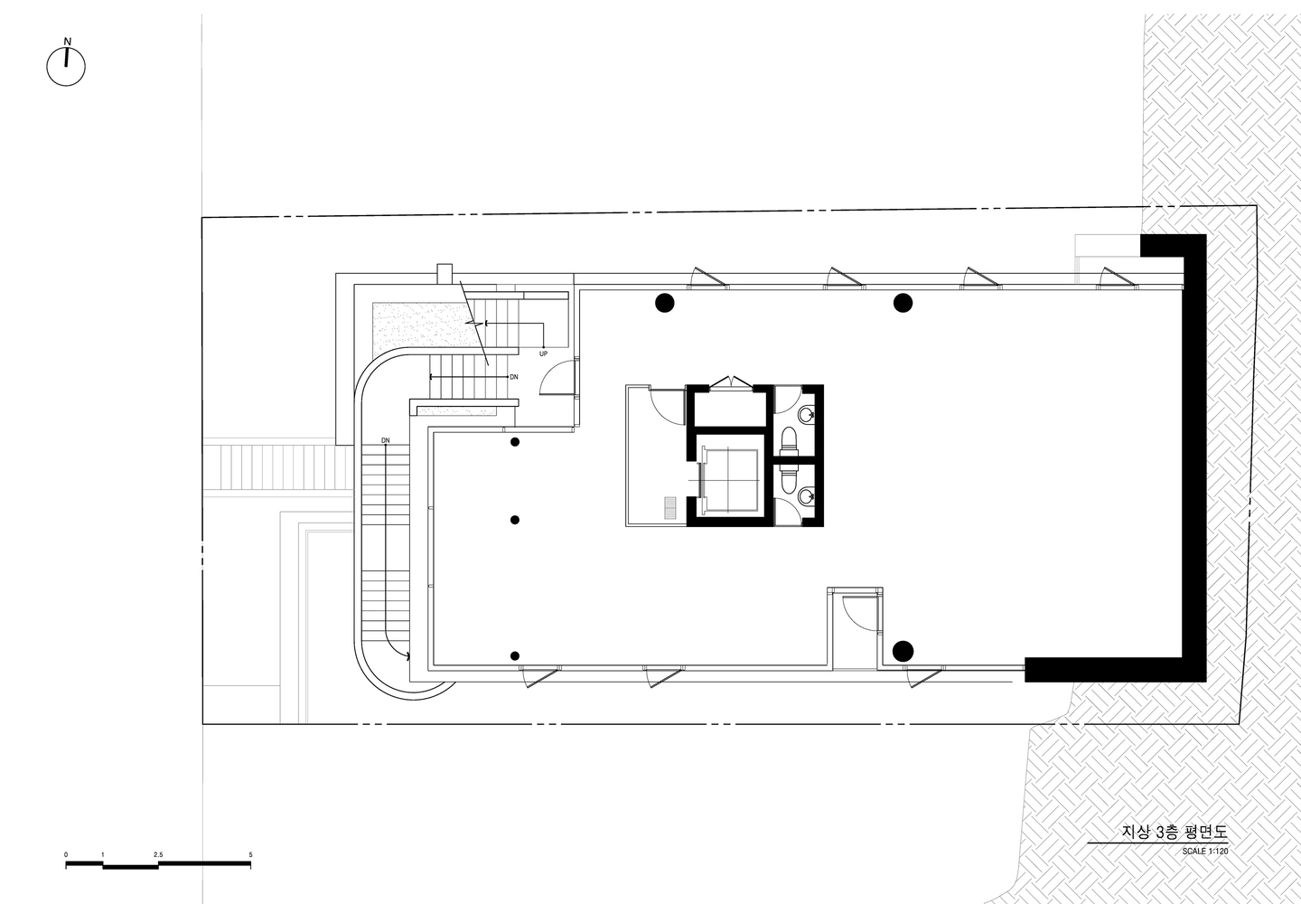
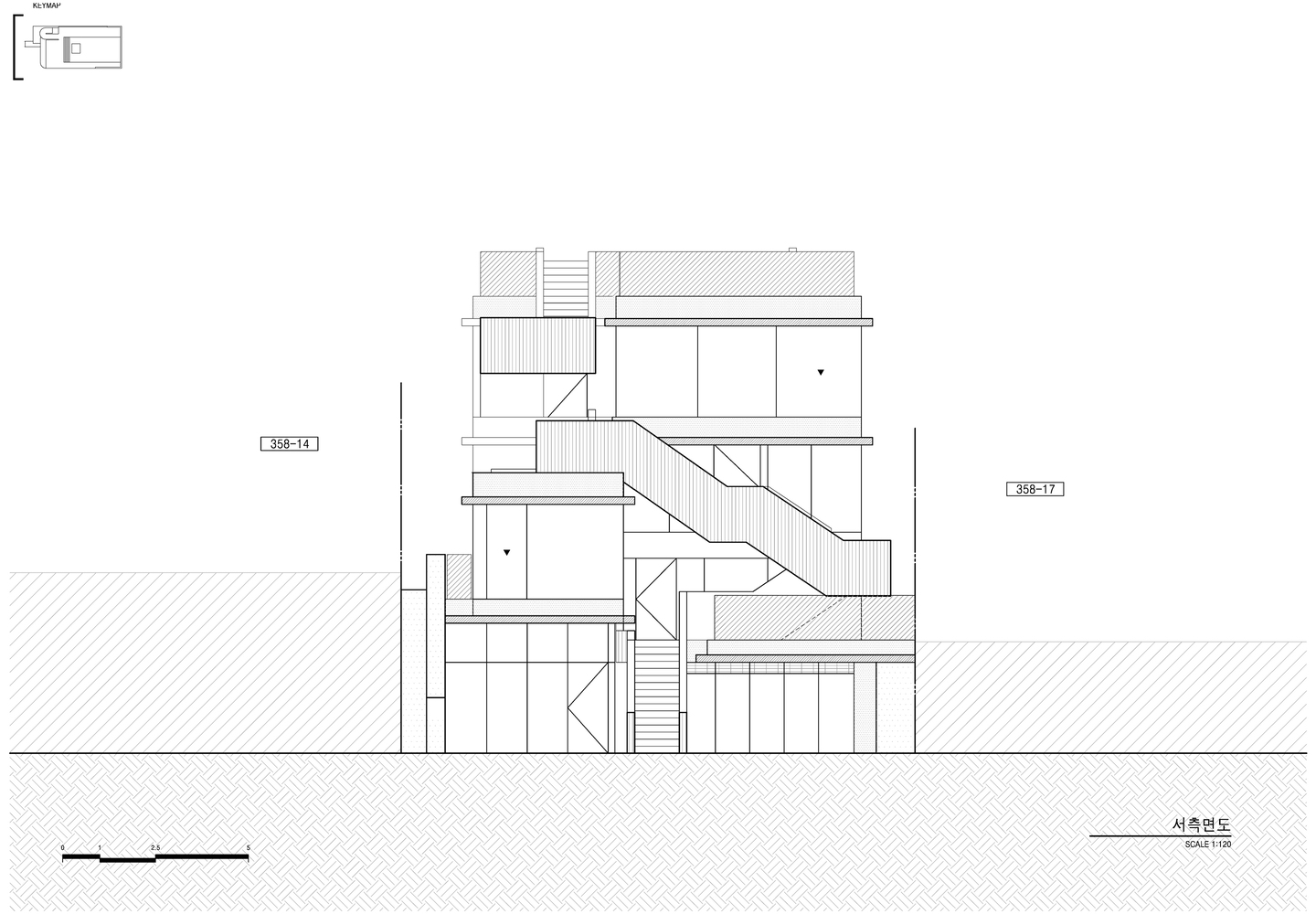
I wanted to make it an open architecture with abundant spatial experience by utilizing the step difference of about 15m between Duteopbawi-gil and Sowol-gil. The path that started as the main character in the center of the building naturally attracts people. The flow of the road starts from Duteopbawi-gil, passes through the three-dimensional space created by architectural space and roads, and goes up facing the scenery of Seoul. Finally, you arrive at Sowol-gil, reaching the rooftop terrace where you can see Namsan Mountain and the view of Seoul together.
At each sequence stage of the road, an experience element that captures people's activities is placed to create a vertical small village. The spaces connected to the road in three dimensions were designed according to the environment at various heights, and programs open to residents were placed in each space.
For more than 100 years, I wanted this space to be a meaningful place in the city, and to do so, I wanted to use long-lasting persuasive materials and shapes and textures that could respond well to various changes. The texture of stairs, slabs, and retaining walls was determined in consideration of shape and rhythm using the mold of exposed concrete.
First, the stairs, which play a central role in space, used EPS molds. By densely arranging the vertical curved intaglio, attention was paid to the verticality and rhythm created by the shade. The space on each floor was designed with protruding eaves to emphasize horizontal slabs. In addition, it was expected that the rhythm of the horizon would meet the vertical stairs in three dimensions by expressing it lightly using PET plywood. In addition, the outer skin was made of glass by minimizing the wall by using column beams. Through this, the scenery created by buildings and surroundings was actively observed, and the nature of the space can change freely. The retaining walls surrounding the building revealed the rough nature of the existing terrain by chiseling concrete.
客服
消息
收藏
下载
最近

































