查看完整案例

收藏

下载

翻译
Located in the Eixample neighborhood of
, this rehabilitation project transforms an old industrial building into open office spaces, adapting the building to the highest standards of comfort, aesthetics, functionality, and energy efficiency. For GCA Architects, projects like this represent opportunities to reveal the layers of history accumulated in the city and enhance the circular economy of cities, prolonging the life of obsolete and inefficient structures.
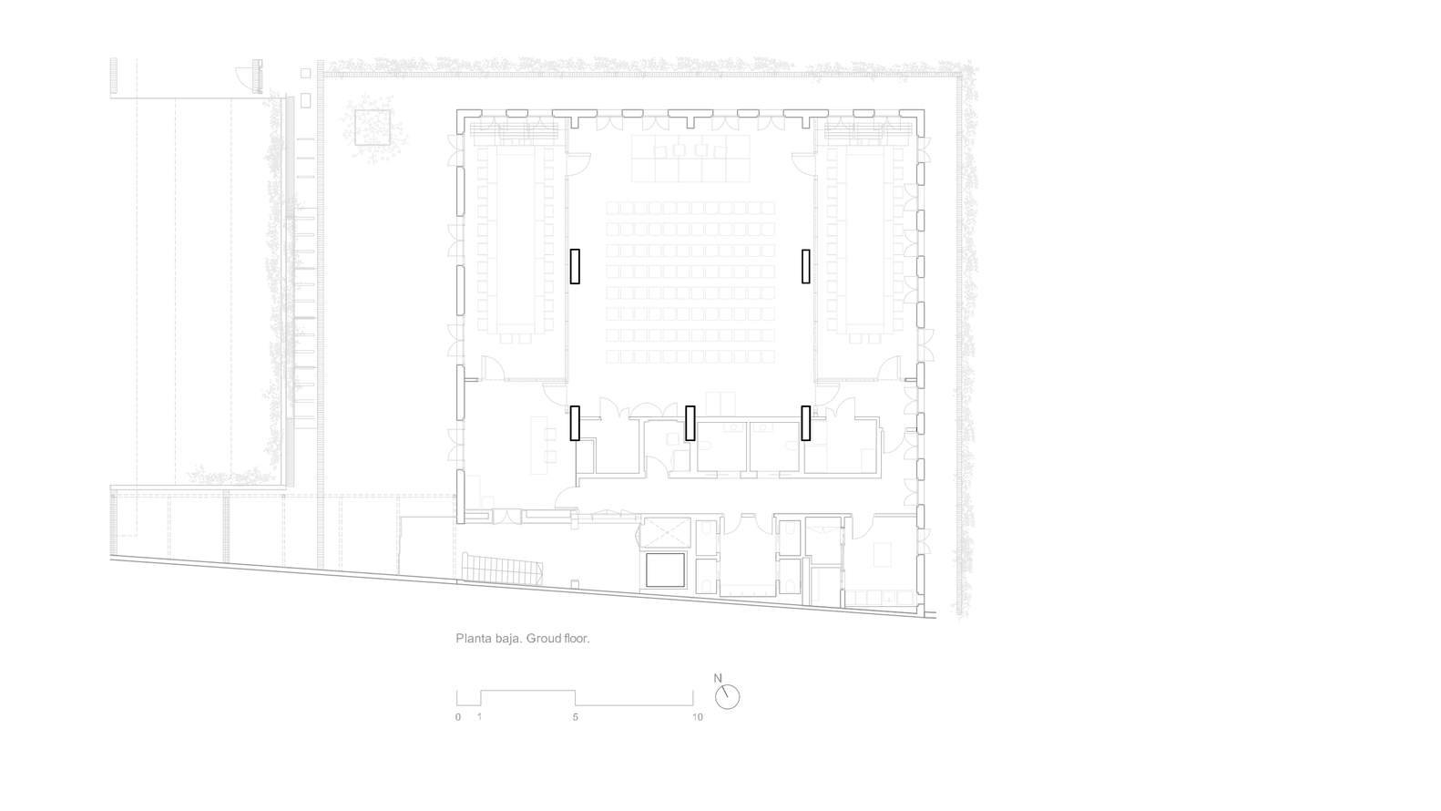
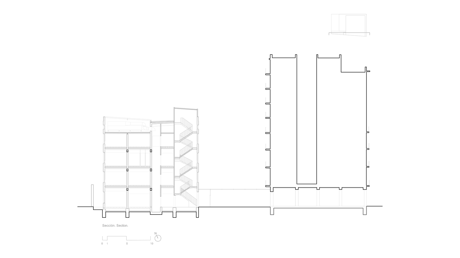
Built in 1850, this 21x21-meter block is a testament to the industrial architecture of the time and is considered an example of protected heritage. The design process began with a meticulous exploration to determine which elements of the building should be preserved and restored, carefully removing the layers accumulated during decades of renovations. This approach allowed the true essence of the building to emerge, highlighting its original structure.
Any new element not only respects the existing one but also contrasts with it, creating a clear distinction between the old and the new. An example of this strategy is the brick walls and wooden beams, structurally reinforced with dark gray painted steel additions. Neutral chromatic tone materials have been used in the meeting rooms, preserving the prominence of the original elements.
The rhythm of the structure and the windows of the existing building are highlighted through the orderly transversal insertion of technical lighting and facilities. Through the superposition of elements with different but harmonious aesthetics, users can literally read the history between the geometric lines formed on the ceiling.
Due to the collaborative and educational nature of the client's activity, the project's objective was to create flexible spaces capable of adapting to various scenarios. A series of movable panels and curtains allow for the free configuration of a multifunctional event space of 250 square meters on the ground floor. The central area of this space features a retractable projection surface, allowing for its transformation into a screening room.
The existing staircase serves as a unifying element, connecting the upper coworking floors with the ground floor area that includes kitchen facilities, the reception area, and the garden. The meticulous restoration of the facades, typical of industrial buildings of the time, has revealed the minimalist and polychromatic beauty of the original stucco.
The rehabilitation has transformed the old factory into a highly efficient building, obtaining the highest energy efficiency rating: an A rating. In order to further improve its performance, 32 photovoltaic panels have been installed, covering a considerable portion of the building's energy expenses.
This project not only revitalizes a historic building but also celebrates the dynamic interaction between the past and the present, harmoniously intertwining architectural heritage and contemporary design.
客服
消息
收藏
下载
最近

































