查看完整案例


收藏

下载
Casas, Guadalajara, México
设计师:Diagrama Arquitectos
面积:2200 m²
年份:2020
摄影:José Juan Rodríguez
提供协助:AutoDesk, MOEN, Mosaicos MOOMA, Trimble Navigation
负责建筑师:Laura Elena Barba Prieto, Luis Aurelio Piña Plaza
设计团队:Anaella Aguas, Arturo Molina
业主:Huella Desarrollos
Ciudad:Guadalajara
Pais:México
设计师描述 | Designer description:
Ubicada en una de las cuadras mejor conservadas de las colonias Centro y Americana de Guadalajara, CB es un proyecto que contempla la unión entre una casa antigua y un nuevo desarrollo de usos mixtos, impulsando la reactivación y redensificación de las zonas centrales de la ciudad. La casa se encontraba en mal estado al encontrarla, por lo que la intervención se centró en rescatar el sembrado original y remover los añadidos.
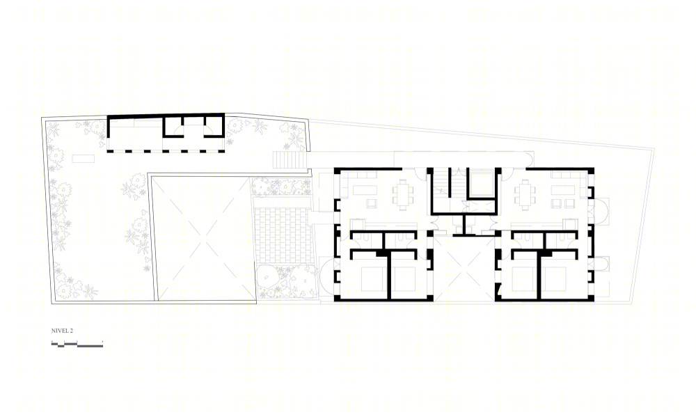
La totalidad de la configuración original de la casa fue respetada; se restauraron los ornamentos originales de la fachada, se rescató el patio central,el zaguán, y el corredor frente al patio se aprovechó para generar locales comerciales a nivel de calle, ubicados dentro de la finca patrimonial sin dañar las preexistencias. En la parte posterior — que albergaba una bodega y fábrica construidas posteriormente por el inquilino anterior — se anexó un volumen compuesto de cinco niveles, imperceptible desde el nivel de la calle. El proyecto cuenta con estacionamiento en planta baja y 10 unidades residenciales, ocho de dos habitaciones y dos estudios.
Uno de los elementos característicos de la intervención son las ventanas remetidas que generan muros con suficiente profundidad para albergar estanterías, maximizando el área de almacenaje de los departamentos y haciendo referencia al grosor de los muros de adobe de la casa patrimonial. Sobre la azotea se encuentra un área de uso común para los habitantes, con plantas, asador, mesas y baños. Las fachadas del anexo presentan ventanas y arcos bajos que emulan las de la finca patrimonial, generando un lenguaje de respeto y comunicación entre lo antiguo y lo contemporáneo.
项目完工照片 | Finished Photos
设计师:Diagrama Arquitectos
分类:Casas
语言:西班牙语
阅读原文
客服
消息
收藏
下载
最近
























