查看完整案例


收藏

下载
Casas, San Juan, Puerto Rico
设计师:Coleman-Davis Pagán Arquitectos
面积:3800 m²
年份:2020
提供协助:Kohler, Sherwin-Williams, 713 Precast, Green Windows
Diseño Y Supervision:JR Coleman-Davis Pagan
Diseño:Valorie Alicea Chinea
Dibujos Y Modelos:Edgardo Ocasio-Roig
Presentación:Claudia Crespo Castro
Carpintería:Roberto Colon Montalvo
承包商:Jofraga Homes
Electricidad:Jose M Quinones
Ingeniería Estructural:Daza Structural Engineering Services PSC
Trabajo En Metal:RC Stainless Steel
Pisos:The Tile Shop
Plomería:Infiva
Ciudad:San Juan
Pais:Puerto Rico
设计师描述 | Designer description:
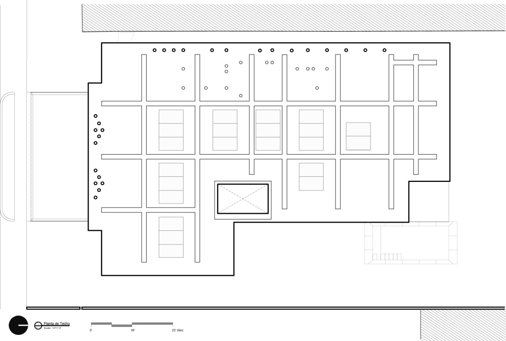
Por su localización central en el litoral de la mejor playa de San Juan, Ocean Park es un singular vecindario capitalino de baja densidad de aproximadamente 300 propiedades. Los dueños – residentes de varias generaciones del área – deseaban una nueva residencia nominal acorde a su estilo de vida de ‘puertas y ventanas abiertas’ compenetrados con la exuberante naturaleza costera. El amplio solar con frente directa a la playa, contenía una desapacible, deteriorada estructura (original, c.1950) la cual fue demolida, conservando todos los árboles sustanciales, primordialmente, palmas de coco. La casa se sitúa 1.8 metros sobre el nivel de calle (y 3m sobre el mar), emplazada sobre una duna de arena restaurada (que existía antes de la estructura original). La arena ‘nueva’ para recrear el montículo vino totalmente de la excavación para el sótano y los cimentos. La reconfiguración del solar protege de (infrecuentes, pero reales) marejadas ciclónicas y el (inevitable) alza del nivel del mar. Al mismo tiempo ofrece vistas directas al océano y provee aislación efectiva de la calle y libera la planta principal de ‘cuartos utilitarios’. La vegetación del solar – la mayoría de crecimiento espontáneo (palmas, almendros, uva playa y lirios costeros) – está en proceso de acaparar la casa dentro de su entorno tropical apropiado.
El ‘carapacho’ minimalista de la edificación es sencillo – columnas circulares, losa de vigas invertidas en hormigón armado –, con altura despejada de tres (3.3) metros, perforado con múltiples, pequeños (6”Ø) tragaluces. Prácticamente, el perímetro completo se ‘define’ con ventanas de celosías operables de aluminio (y algunas puertas, otras en cristal) las cuales permiten el control de la ventilación cruzada, iluminación natural, privacidad y defensa efectiva contra (frecuentes) tormentas y huracanes. La terraza amplia en las dos (2) orientaciones predominantes (este y norte) realza la relación al mar de los espacios de sala, comedor y cocina. El alero amplio salvaguarda del sol de la media mañana hasta la tarde, además de la lluvia torrencial y también crea sombra eficaz a la ‘pared’ de persianas y puertas. El principal ‘gran salón’ contiene las áreas de estar, comer y cocinar y abre directamente y contiguo a la terraza y piscina. El aposento y la biblioteca/estudio se vislumbran como extensiones del ‘espacio libre’, por medio de puertas en pivotes que – cuando abiertas – se integran al resto de la casa – y entre si (estantes giratorios). El balcón orientado hacia el sur y su jardín elevado hacen frente a y ‘reconocen’ la calle.
Aunque conectada (oficialmente-exigida) a la infraestructura pública de electricidad y agua potable – a veces, intermitente y errática, la residencia es autosuficiente con un sistema energía solar y recolección de agua de lluvia – una casa sustentable en un entorno urbano colindante al litoral costero. En fin, esta residencia es un ‘pabellón’ que celebra intensamente la integración harmónica con su contexto Tropical Caribeño con un lenguaje modernista cónsono con las idiosincrasias bohemias de los clientes.
项目完工照片 | Finished Photos
设计师:Coleman-Davis Pagán Arquitectos
分类:Casas
语言:西班牙语
阅读原文
客服
消息
收藏
下载
最近



































