查看完整案例

收藏

下载
✦
吾索
给您创造永久的幸福
✦
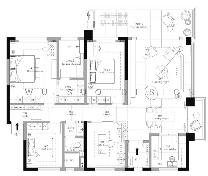
原始结构图
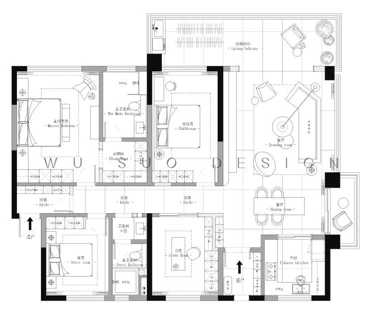
改造后平面图
项目类型:平层
项目地址:时代滨江
项目面积:200㎡
设计机构:吾索设计
设计团队:张恒团队
设计风格:现代意式
本案为200㎡的平层设计,风格定义为现代意式,在现代特征的基础上,以简约为主,线条洗练,家具规整,整体设计依然传承文艺复兴时期的意式文化,弥漫出意式理性色彩与人文关怀。
客厅
200平米的改善型住房,优雅与个性从客厅开始延伸。无主灯的平面天花板,用原木色来与墙面过渡;线条、曲角、色调、材质、比例,现代意式时刻强调现代、简约、低调、时尚,同时不缺乏浪漫、唯美与优雅。
全屋无主灯设计,着重烘托意式质感的空间氛围,别具一格的弧形沙发,真皮休闲单人椅,搭配墙边的壁炉火焰,是内敛的情绪,也是无视世俗的美学追求。
餐厅
不着一物,却处处彰显内心的丰裕与沉静。延续客厅的意式线条,餐厅在色彩搭配和材质选择上依旧与客厅保持一致,岩板不同色的搭配,让家在现代与前卫之间达成美妙的平衡,展现一个有品味居住者该有的格调与极致。
书房
书房在满足办公休憩、阅读等功能的同时还兼具活动功能,在整体上以简洁方便,使用功能为主。
公卫
公卫干湿分离,功能区分明确,淋浴间预留壁龛,增加收纳,纯色系瓷砖,整体色调简约又耐看。
主卧及衣帽间
主卧用淡雅的木纹地板作为底色,融入编织地毯,软化整个硬朗的空间,柔软亲肤的绒布包裹着落地双人矮床,左右一高一低床头柜,差色更具个性。
温和的原木色卧室背景墙,以灯带点缀,增添自然舒适的气息。衣帽间与主卧同色系,让空间的整体性得以连贯,开放格处加灯带更具氛围感,打造一个精致典雅的居住空间。
主卫
主卫明亮又通透,洗漱区、如厕区、淋浴区一字型布局,浴室显得更加宽敞。
女孩房
女孩房整体配色是暖白与天堂橙,清新活泼。柜门做圆形展示和圆形拉手来增添整个空间的趣味性,还有一些卡通元素的点缀,童趣十足。
次卧
次卧延续了整体简单干净的硬装氛围,硬包结合护墙板饰面,做出了材质的层次感,灯光做了背景的点缀,突出现代背景墙的效果。
设计图纸
客服
消息
收藏
下载
最近

















