查看完整案例

收藏

下载
前言
PREAMBLE
好的设计一定基于好的空间格局,空间的格局如同人的骨骼,格局决定了空间的流动性、舒适度和功能性,决定了空间的整体效果和使用价值。
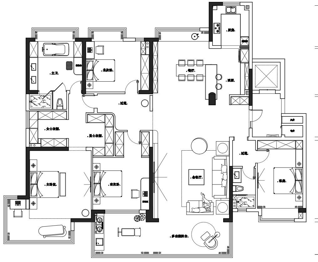
平 面 图
项目地址:盐城·碧桂园天境
项目面积:280㎡
后十年主创设计师:刘伟
设计施工:江苏后十年装饰
服务方式:全案设计+施工服务
The Best Day Ever
[ 视觉设计--客厅
当你站在房间的进门处,眼前景象令人惊喜:一条流畅的波浪形长廊在你的视野中逐渐展开,开放式的设计让餐厨、客厅通透又相连,创造出更宽敞的视觉效果。所有区域处于同一水平面下,仿佛将空间拉伸到极致,令人倍感舒适。
这样的设计让室内充满了流动感和自然之美,每一个细节都在展现着设计师的匠心独运。
客餐厅的设计非常精妙,特别是天花板的分层式设计,让不同的功能区域得到完美的划分。背景色调的银灰色以及宽敞的留白,共同烘托出一种张弛有度的舒适氛围。整个空间的规划既主次分明又和谐统一,让人感受到前所未有的舒适感。
[ 视觉设计--餐厅
开敞的西厨与中厨有机结合,并设有多功能桌。提供一个区别于正常空间的社交场所,可聊天、可饮茶~
餐厅的回型设计,中岛+餐桌的形式将储物、就餐等功能完美结合,一体化设计对空间的利用也更加细致,具有极强的功能性和形式感。
[ 视觉设计--主卧
主卧套房设计,在无主灯的环境下,设计师采用丰富的重点照明手法,营造出层次丰富的氛围。柔软蓬松的床品使主人能在这里放松身心,实现了功能与美学的高度统一。
主卧享受到独立的衣帽间和盥洗室。这些区域设置巧妙,大方的木质感营造出极致享受的卧室空间。背景墙以围合式造型构成亲密的包裹感,为休憩空间创造细腻温和的氛围。
将原来的小房间设计成主卫,天然石材的纹理与质感,尽显典雅与大方的气质。台盆等细节穿插了不同肌理的大理石,整体细节丰富,精致美观,卫浴间也来带来极致的品质。
| 关于 |
后十年
点击下方
|关注
后十年更多案例
关注官方账号
关注@后十年装饰
关注@江苏后十年装饰
长按扫码前往视频号
关注@后十年装饰
长按扫码关注
服务热线
400-710-0798
客服
消息
收藏
下载
最近























