查看完整案例

收藏

下载
类别 / 复式
Project Ctegore/ Villa
名称/ 200㎡+复式高级黑灰系,家最宁静的样子
ProjectName/Banshan•Blackgrey
地址/ 伴山雅集
ProjectAddress / Guangxi•Guilin
面积/ 一层 120㎡ 二层 124㎡
ProjectArea/244㎡
设计 / 方寸设计事务所
Design / FCDesign
施工 / 方寸设计事务所
Construction/ FCDesign
F·C Design
1F 原始结构图
2F 原始结构图
1F 平面布置图
(客厅、餐厅、厨房、主卧、长辈房)
业主是一位单身女性
一层除预留父母的卧室外,其余房间均纳入主卧。而厨房因使用面积小,故把设备平台与它归为一体。去客厅化是本案的一大特点。
The owner is a single woman
1F has a bedroom reserved for parents, and the rest of the room belongs to the master bedroom. And the kitchen is small, so the device platform is integrated with it. The weakening of the living room is a feature of the case.
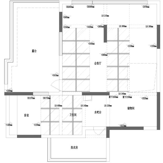
2F 平面布置图
(会客厅、休闲吧、客卧、水吧、储物间、露台)
▮
二楼以公共空间为主,只保留一间卧室,其余均为开放性功能空间,更好地提高了居住的舒适性与功能性。
2F is dominated by public Spaces, Keep only one bedroom, The rest are open functional Spaces, Better improve the living Comfort and functionality.
设计说明·Design Description
空间材质·Spatial Material
F·C Design
一层效果展示(1F)
↺
以下请横屏观赏
▮
一层的去客厅化设计
摒弃常规的客餐厅区分
和传统的电视沙发组合
通过增添一排的书柜
来提高空间的互动性
Weakened living room design on the 1F
Give up the regular guest restaurant
And traditional TV sofa combination
By adding a row of bookcases
To improve the interactivity of the space
▮
业主没有选择近年来流行的奶油风,而是遵循内心,设计成自己钟爱的灰色系。不仅让家有了属于独特的记号,也彰显了主人的个性。
The owner did not choose cream wind,It’s about following your heart. Designed in his favorite gray,Let the home have a unique mark,It also shows the personality of the chief.
▮轻奢吧台设计
运用深与浅的反差
提升视觉感观
衬托内在深远之境
Light luxury bar design
Use deep and light contrasts
Enhance visual perception
Set off the profound inner environment
▮
主卧摒弃复杂的吊顶与背景墙设计,而是选择了让低饱和度的紫色贯穿整个空间,简约而精致。
The master bedroom does away with the complex ceiling and background wall. I chose a low saturation purple throughout the entire space, simple and refined.
▮
长辈房选用温馨的低饱和度色调,并用墙布代替乳胶漆装饰床头,更显柔软温暖。
Warm colors are used in the elder room.Use wall cloth instead of latex paint.More soft and warm.
F·C Design
二层效果展示(2F)
▮
二层以明快格调阐述空间层次感,保留原始天窗,让光影的表达更加自由和不羁。
The second floor illustrates the sense
of spatial hierarchy in a bright style.
Retain the original skylight.
Let the expression of light and
shadow more free and unruly.
橙、蓝作为跳色柔和大面积暧灰色调
让人们感到平静和放松
Orange, blue as a soft jump color
large area warm gray tone
Make people feel calm and relaxed
F·C Design
关于我们
方寸设计事务所
位于广西·桂林
集
设计、施工、产品一体化
专业全案设计公司
提供
设计+施工+软装+交付+售后
5 大服务
团队设计板块涵盖
私宅、别墅、商业、办公
等多个领域
方寸团队始终坚持
以人为出发点
在有限和无限之间探索……
方寸设计事务所(SINCE.2022)
商业 私宅 全案定制
INNOVATION.CREATINGVALUE
创新创意创造价值
CHINA.GUILIN.QUADRANT.DESIGN
方寸之间|咫尺匠心
公司地址
广西桂林七星区信息产业园世昌工贸 1 号楼
F.C Design 方寸设计
▮ 往期案例 / Past case
客服
消息
收藏
下载
最近



























