查看完整案例

收藏

下载
空间,像一个懂得生活的容器,里面正发生着时间的聚合效应,也呈现着精神的持续共鸣。
我们希望家是可以缓解压力与疲惫的出口,是足够仪式感下给你的一半烟火一半诗意。外面是繁华的城市,室内是惬意的生活。
本案设计师从温馨舒适的体验出发,以个性化的需求为载体,创建出空间的故事与浪漫,将空间变成了沉浸的私属精神驿站。
▌项目概况:
项目类型:住宅
设计地址:
龙湖滟澜海岸
项目面积:220㎡
设计单位:本原设计事务所
01
一层空间
FIRST FLOOR SPACE
入户玄关,作为一个家的序章,保护着生活的私密性,亦彰显着生活的仪式感。
一层是家庭成员的主要用餐和交流空间,采用开放式布局以获得自由的流动感。客厅是家居空间的焦点,身处客厅自在从容,让生活与时间慢下来。
与家人享受一餐饭的相聚,家的温度也在这种亲近中慢慢升温。餐厅以光影为指引,强调空间的整体感和结构感。当自然光线漫入,四时三餐的陪伴自然而然,渲染出岁月静好的家庭纽带。
02
二层空间
SECONG FLOOR
SPACE
万千荣耀,不及日日晨昏间的琐细。主卧温馨舒适,用柔和的灯光、原木的色彩和柔软的床品营造出安静的睡眠环境,让家人在疲惫的一天之后能得到充分的休息。
女孩房治愈氛围的奶咖色搭配低饱和度粉色带来柔美之感,造型上用圆弧来修饰相对硬朗的空间,为孩子打造一个快乐的天地。
男孩房延续整体设计风格,室内在简洁的基调上辅以运动元素作为装饰,贴合大男孩的青春活力。
03
负一层空间
NEGATIVE FIRST
FLOOR
SPACE
气氛属于生活,场景化有助于生活的提升。负一层作为社交空间,以构建多样功能和交互场景为核心展开设计。
书房的空间气质凸显着居者不凡的生活品位,摒弃一切琐碎元素,色彩冷静、线条简约中赋予书房灵秀品质之感。
人间烟火,诗意茶味。原木色地板搭配同色系桌椅,惬意温婉在柔和的场景里生发,让空间充斥着自由的气息和生长的温度。
04
平面图纸
PLAN DRAWINGS
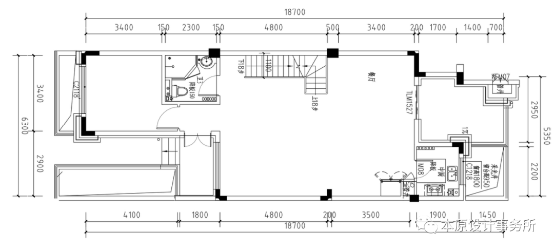
△一层原始图
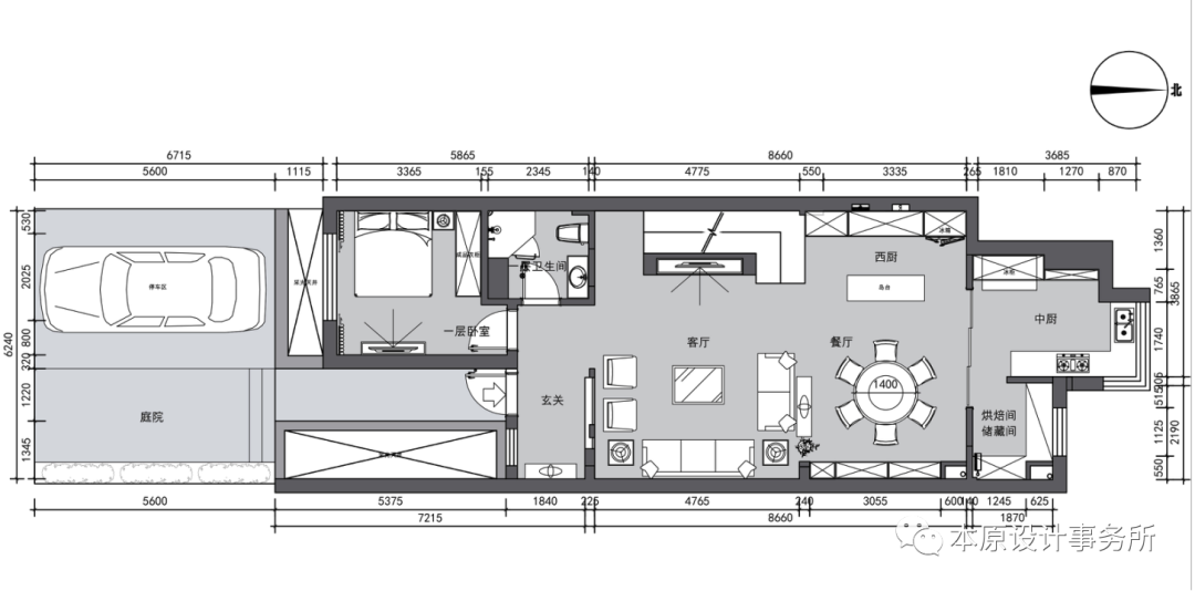
△一层平面布局图
△二层原始图
△二层平面布局图
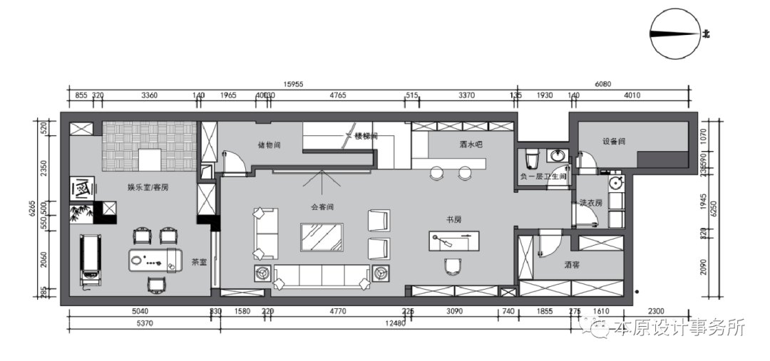
△负一层原始图
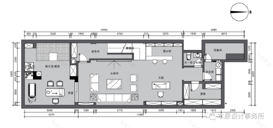
△
负一层
平面布局图
戳原文,了解更多本原作品!
客服
消息
收藏
下载
最近




























