查看完整案例

收藏

下载

翻译
The HIÊN is located in a newly-developed suburban area of Danang City, in which you can enjoy a panoramic view of the picturesque Han River. This home is a new place where a 3-generation family enjoys a cozy life together. Woodworking is their traditional profession, which has been passed down through generations, and it serves as the main inspiration for choosing wood as the primary material for this project. This decision not only provides comfort and nostalgia but also maximizes cost savings, as the homeowners themselves participate in the woodworking process for the construction.
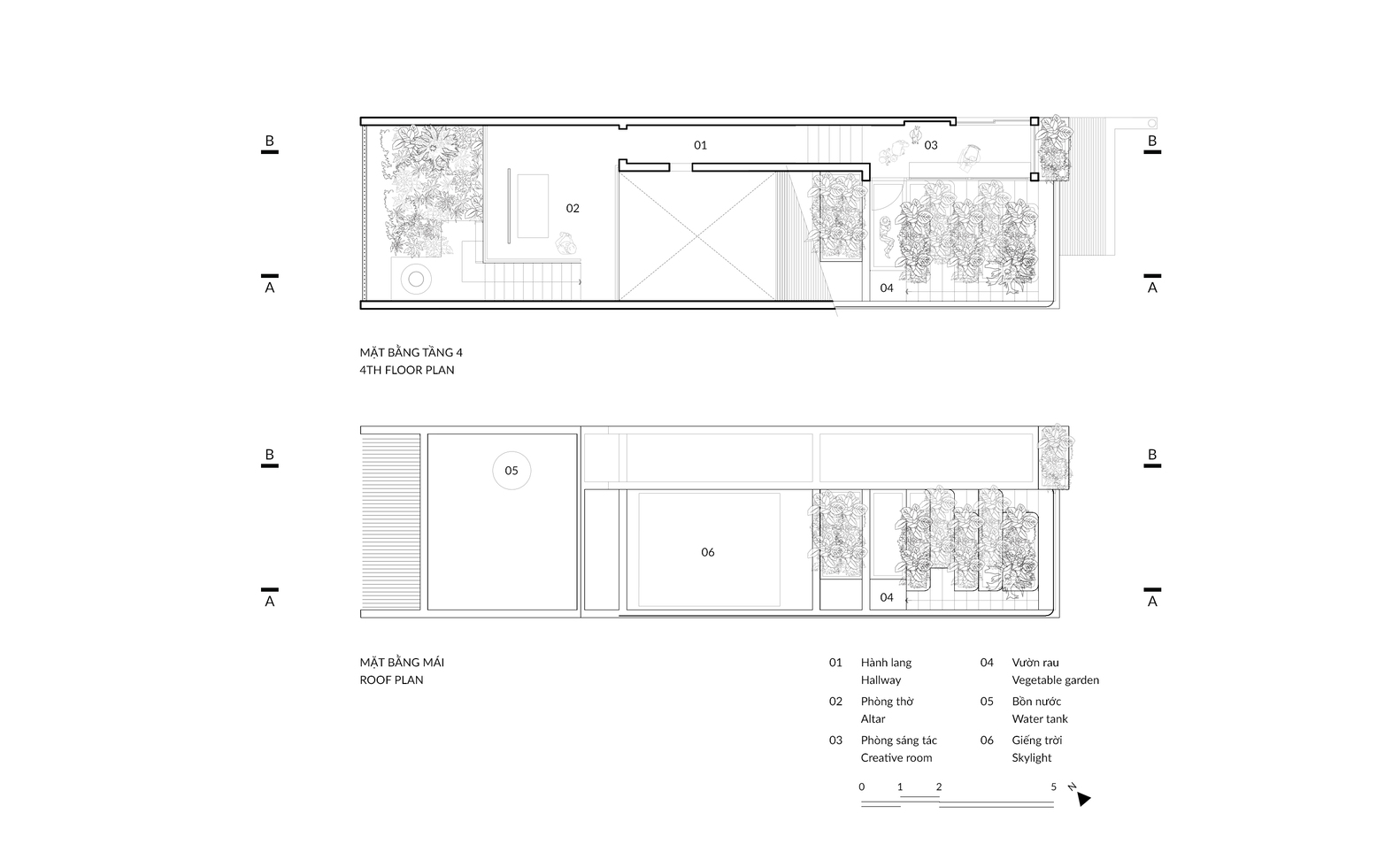
The rural village is deeply rooted in the childhood memories of the family's generations. The design team does not want to disrupt their familiar landscape, lifestyle, and customs when transitioning to the urban environment, the house's structure incorporates typical elements of "rural architecture". In Vietnamese, "Hiên" means a veranda, which is a covered space with a roof, serving as a buffer zone between the interior and exterior of the house, it is not only an accent but also a traditional architectural feature that suits the tropical climate of Central Vietnam. Some functions are arranged similarly to the layout of their countryside home, as the team believes that habituation is the most critical element.
The design centers around the relationship between humans and nature. Green spaces are seamlessly incorporated into the living areas, establishing a seamless connection between nature and daily activities, this enables a comfortable space for beneficial organisms while deterring pests and harmful creatures by planting fragrant herbs that repel them effectively. The vegetable garden takes up a part of the green space, contributing to the overall landscape and providing a fresh supply of agricultural produce for the family's consumption.
Wood is salvaged from old constructions and then reused to complete the roof structure, stairs, and interior furniture in this project. The natural characteristics of the wood are preserved, without any chemical surface coatings. Both materials and labor are locally sourced, resulting in economic efficiency, environmental protection, and ensuring the sustainability of this construction.
The HIÊN is not just a house; it is a symbol of love and passion for the family's traditional craft, a place that strengthens family ties. By blending modern and traditional elements in harmony with nature, the team aims to leave a valuable mark on the cultural essence of the homeland amidst the ever-developing urban context.
客服
消息
收藏
下载
最近










































