查看完整案例

收藏

下载

翻译
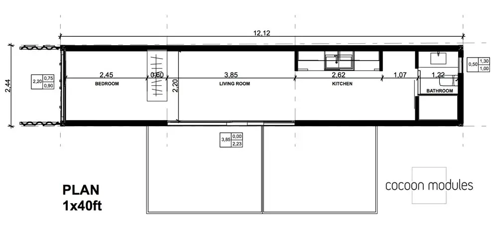
La sociétéCocoon Modules, basée à Athènes, en Grèce, récupère de vieux containers de transport et en fait des maisons équipées de tout le nécessaire en 6 semaines seulement. Elles sont livrées sur le lieu d’implantation, et peuvent être déplacées par leur acheteur si un jour il décide de changer d’endroit. Autre atout, le prix de ces petites maisons : si ce modèle de 30m²construit à partir d’un container de 40ft est vendu à partir de 18.000 €, un autre modèle plus petit de 15m² conçu à partir d’un container de 20ft est vendu à partir de 12.000 €. (hors frais de transports bien entendu !)This 30m2 container house is sold from 18.000 €.Cocoon Modules, based in Athens, Greece, recovers old transport containers and turns them into fully equipped houses in only 6 weeks. They are delivered to the location, and can be moved by their buyer if one day he decides to change location. Another advantage is the price of these small houses: if this 30m² model built from a 40ft container is sold from 18.000 €, another smaller model of 15m² built from a 20ft container is sold from 12.000 €. (excluding transport costs of course!)Shop the look !Livres
客服
消息
收藏
下载
最近























