查看完整案例


收藏

下载
本项目的基地面积为251.42平方米,基地上原有的两座独栋家庭住宅处于严重老化和损坏的状况。因此,建筑师希望通过对其进行更新改造和扩建,将这两座独栋住宅整合成一个多住户的居住建筑,在改造过程中,不仅要尽可能地保留并恢复原建筑的特征,还要在这两座历史悠久的建筑之间加入一个更具现代感的连接元素。
住宅朝向Rua da Alegria的外立面被完全恢复,同时,基于对现有建筑的分析和设计概念,在原住宅的上层加建了一个较为现代的体量。而建筑的后立面则根据原先两座住宅的体量重新整合,以便创造出一种更加统一且连贯的建筑语言。改造后的住宅外立面与其毗邻建筑的外立面保持在同一界面上,从而更加和谐地融入了其城市环境。
▼住宅楼外观,exterior view of the residential building
The intervention area is a plot with 251,42 m2 where originally two buildings, single-family houses, were in an advanced state of degradation / ruin. The proposal was based on a project to alter and expand the buildings and their conversion into a multifamily building, trying to maintain and recover the identity that characterized them, introducing a more contemporary line connecting the two historical-temporal moments.
The façade facing Rua da Alegria was fully recovered, introducing a raised upper floor that is the result of conceptual options based on an analysis of the existing architecture, as a contemporary element. The back elevation was reformulated volumetrically in order to obtain a coherent and cohesive language of the set. By consolidating alignments with existing facades in contiguous buildings, the proposal seeks a more cohesive urban setting.
▼住宅楼外立面细节,采用三角形图案的贴面砖,details of the front elevation with triangle-patterned facing
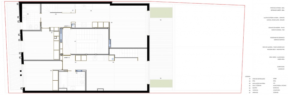
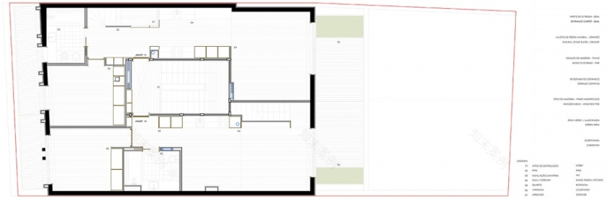
同时,也正是考虑到城市的环境,本项目将改造的重点放在了室内空间的重组之上。住宅楼共四层,一二三层各有3个居住单元,四层则只有2个居住单元。住宅楼的主入口位于Rua da Alegria上,位于建筑中心位置的楼梯可通往所有的居住单元。
Considering this urban issue, the intervention focused on the reorganization of interior spaces. At the programmatic level, the building is developed on four floors with housing use, developing 3 housing units per floor and only 2 on the 3rd floor. The access to the building is made through Rua da Alegria, where the main door allows access to the program described above, through a central vertical communication body – staircase.
▼住宅楼入口,the entrance of the residential building
住宅楼首层空间的组织十分简单:住户们可以从位于Rua da Alegria的主入口进入建筑,随后,映入眼帘的便是一个集散前厅、一个独立的方盒子楼梯间体量以及3个居住单元——一个T0类型的居住单元,朝向Rua da Alegria;其余两个T1类型的居住单元的区别则在于一个可以直接通向住宅楼的内部庭院,另一个则朝向Rua da Alegria和内部露台。
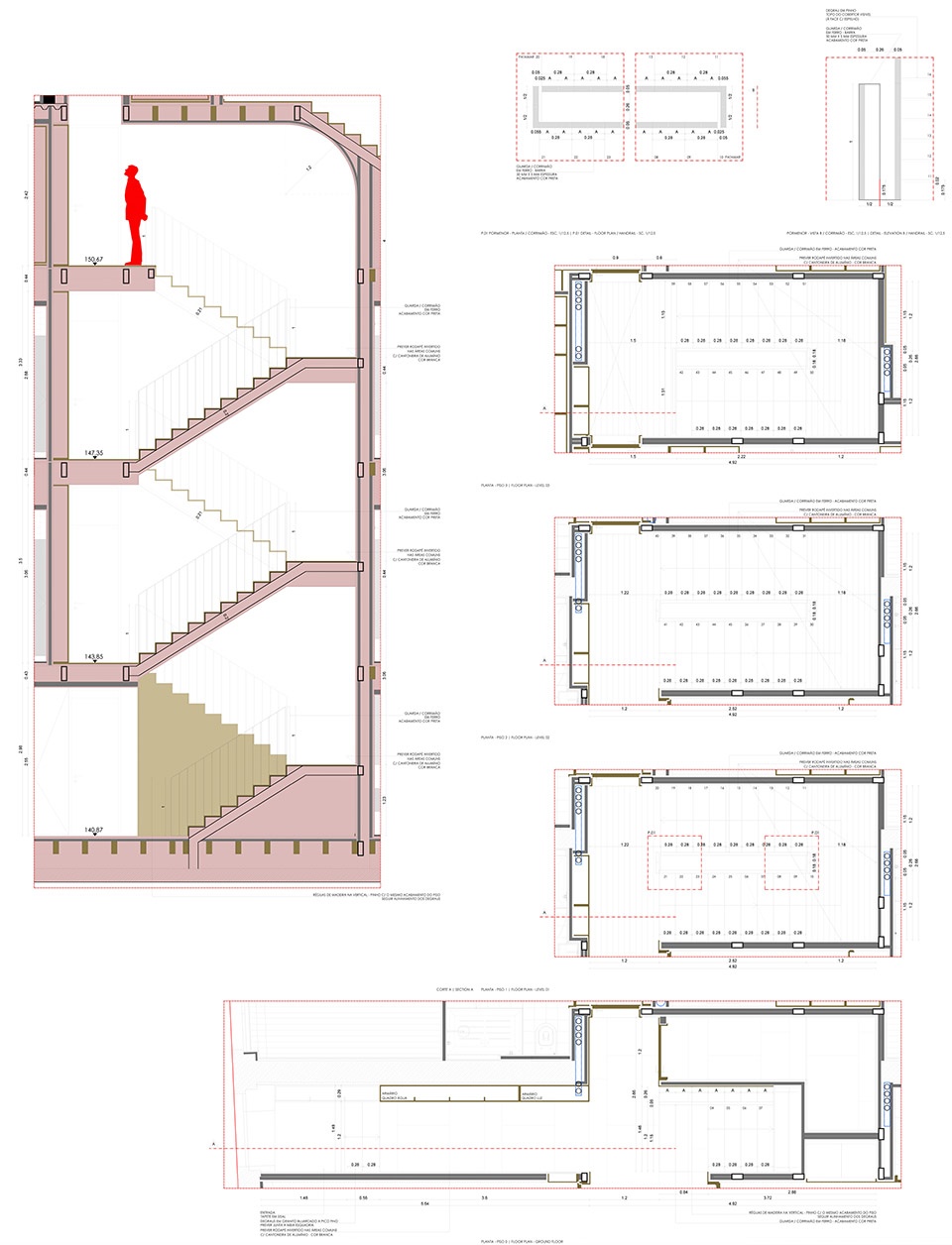
▼纵向剖面图,方盒子状的楼梯间体量可通向所有楼层,longitudinal section, the “box” of stairs lead to four floors
Ground floor is organized accordingly to a simple approach: entrance area with access through Rua da Alegria, distribution hall and respective “box” of stairs and 3 housing units – a housing unit with typology T0 facing Rua da Alegria t; a housing unit with typology T1 with direct relation with the internal courtyard; and a housing unit with typology T1 facing Rua da Alegria and the interior patio.
▼住宅楼主入口空间,一条走廊通向建筑中心的楼梯空间(左),楼梯细节(右),the entrance space of the residential building, a long corridor leads to the “box” of stairs at the center (left), details of stairs (right)
▼方盒状的楼梯空间,the “box” of stairs
▼首层居住单元之一的厨房兼起居室,the kitchen and living room space of the living unit on the ground floor
▼从卧室看起居室,viewing the living room from the bedroom
二层和三层同样也设置了3个居住单元,住户们可以通过中央的楼梯间和集散前厅进入各自的住宅空间。这两层中的居住单元皆采用T1的空间造型,同时,建筑师还在朝向露台的区域内设置了阳台,不同居住单元通过钢化夹层玻璃进行分隔。
1st and 2nd Floor have the same number of housing units and the access is made by the central stairwell and its distribution hall. The 3 units of housing of both floors are typology T1. On the 1st and 2nd floors the units with front to the patio area have a balcony and the separation between typologies is carried out through a tempered laminated glass.
▼室内一览——二三层居住单元之一,采用石材、木材和纯白的墙体,overview of the one of the living units made of stone, wood and pure white walls on the 1st and 2nd floor
▼起居室,设有室外阳台,the living room with the outdoor balcony
▼卧室,the bedroom
▼卧室空间细节,details of the bedroom
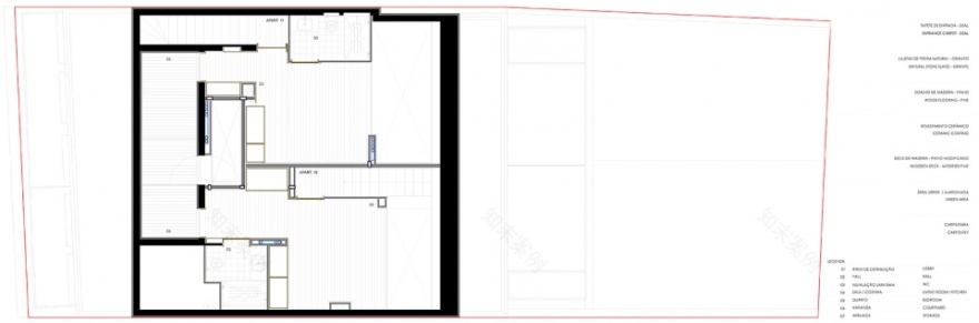
加建的嵌入式四层空间只有2个居住单元,均采用T1类型的空间,可通过方盒子状的楼梯间和前厅进入。相对于下面三层,四层体量的外立面向内退,从而在建筑的正立面和后立面的方向上创造出两个阳台空间,使得这两个居住单元都拥有朝东的私人区域以及西向(后立面方向)的、朝向后院的社交空间。
The 3rd floor, recessed, has only 2 housing units of typology T1 with access by the “box” of stairs and respective atrium of distribution. The retreat of the volumetry allowed the creation of balconies on two fronts. Both housing units have the private areas facing East and its social areas facing Weast (posterior elevation), to the backyard.
▼顶层居住空间,the living unit on the top floor
▼盥洗室,采用白色的瓷砖贴面,the bathroom with white ceramic tile veneers
▼盥洗室局部,地面富有几何感,淋浴间设有采光天窗,partial view of the bathroom with geometric floor, the shower space features a skylight
▼从淋浴间仰望,透过天窗看到蓝天,looking up from the shower space, viewing the blue sky through the skylight
材料的选择和施工体系都与现有建筑系统的需求和当前的施工方法有关,在突出原建筑特征的前提下,重新创造出一个宜居的生活环境。
The selection of materials and construction systems is related to the needs of the existing building systems and the current methods of construction, with the premise of highlighting the identity of the building.
▼从顶层的阳台看周边,viewing the surroundings from the balcony on the top floor
▼住宅楼的内部庭院,住户可通过阳台直接到达,the inner courtyard of the residential building where residents can access by balconies
▼住宅楼的内部庭院,the inner courtyard of the residential building
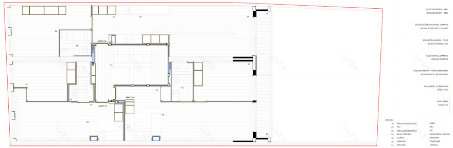
▼首层平面图,ground floor plan
▼二层平面图,first floor plan
▼四层平面图,third floor plan
▼四层夹层平面图,third mezzanine floor plan
▼主立面(正立面),principal (front) elevation
▼次立面(后立面),posterior (back) elevation
Project name: Alegria Residential Building
Architects: MiMool Arquitectura & Design de Interiores
Architecture: Fábio Milhazes, Rui Loureiro
Location: Rua da Alegria nº901, Porto, Portugal
Project Year: 2019
Area: 760m2
Photographs: Ivo Tavares Studio
Engineer: Nuno Torres e Nuno Midões Engenharia
客服
消息
收藏
下载
最近
























































