查看完整案例


收藏

下载
扬州青普瘦西湖文化行馆位于扬州风景秀丽的西湖附近。由于场地各处散布着小湖泊和一些现有的建筑,这家包含20间客房的精品度假酒店对如恩来说是一个颇有挑战的项目。业主希望对基地原有的部分老建筑进行适应性再利用,为之赋予新的功能,同时增加新的建筑以满足酒店的容量需求。为将这些分散元素统一起来,如恩采用了网格的平面规划,框定出围墙和通廊的布局,从而将各个功能整合在一起,形成一个多院落的围场。设计的灵感源自中国四合院的建筑类型。和传统的庭院一样,院落的形式为空间赋予了层次,将天空与地面的景观框架其中,让景观融入建筑,创造出内部与外部的重叠。
Situated in close proximity to Yangzhou’s scenic Slender West Lake, the site given to Neri&Hu to design a 20-room boutique hotel was a challenging one, dotted with small lakes and a handful of existing structures. The design brief called for the adaptive reuse of several of the old buildings by giving them new functions, while adding new buildings to accommodate the hotel’s capacity needs. Neri&Hu’s strategy to unify these scattered elements was to overlay a grid of walls and paths onto the site to tie the entire project together, resulting in multiple courtyard enclosures. The inspiration for the design actually originates with the courtyard house typology of vernacular Chinese architecture. As with the traditional courtyard, the courtyard here gives hierarchy to the spaces, frames views of the sky and earth, encapsulates landscape into architecture, and creates an overlap between interior and exterior.
▼鸟瞰图,aerial view
▼采用了网格的平面规划,to unify these scattered elements was to overlay a grid of walls
矩阵式的砖墙完全由灰色回收砖砌成,狭窄的内部通道形成了狭长的视角,光线穿透变化着堆叠的砖石,吸引来客对在空间中不断深入探索。若干庭院内设有客房和公共设施,如前台、图书馆和餐厅。其中许多单体建筑的屋顶与四周的围墙齐平,远远望去形成了一条平整的天际线。穿过婉转的砖墙走廊,住客们最终到达自己的客房。客房被砖墙勾勒的庭院包围,客人们可以在此欣赏各自庭院中的私密景观。还有一些没有设置客房的庭院,三两树木自成一座花园,让人在墙垣之中获得自然与放松。
Constructed entirely from reclaimed grey brick, the gridded walls’ narrow interior passageway forces a long perspective, while light plays off the various brick patterns, enticing guests to venture ever deeper into the project. Within the walls, several of the courtyards are occupied by guest rooms and other shared amenities such as the reception, library, and restaurant. Many of the building roof lines are confined within the height of the walls surrounding them, so that they are not visible from afar. Hotel guests traverse the site using the walled pathways to discover their rooms. Once within, there is a clear separation between the building and the walls, a layering of privacy and a sliver of landscape for guests to enjoy. Other courtyards are unoccupied, pockets of lush garden to offer relief from the sense of enclosure.
▼矩阵式砖墙狭窄的内部通道形成了狭长的视角, the gridded walls’ narrow interior passageway forces a long perspective
▼砖墙引人穿梭在客房庭院中,the brick wall shows the way to guest rooms
沿着砖墙漫步,客人们可偶遇墙中隐藏的开口,向上踏几节楼梯,遁入更加安静且视野开阔的屋顶,在这里一览整片行馆的建筑矩阵和更远处的湖泊。平直的天际线中跳脱出三座建筑:一座两层高的客房,一座包含四间客房的湖滨小筑,以及位于行馆一端的一座多功能建筑。
Journeying along the walls, guests can also ascend through openings above to gain privileged vantage points that look out across the gridded landscape and beyond to the surrounding lakes. Here three additional buildings take their place in the panorama; the rising second floor of the largest courtyard building, a lakeside pavilion of four guestrooms, and a multifunction building at the furthest reaches of the site.
▼沿着砖墙向上踏几节楼梯,遁入更加安静且视野开阔的屋顶,journeying along the walls, guests can also ascend through openings above to gain privileged vantage points that look out across the gridded landscape and beyond to the surrounding lakes
多功能建筑由原有的废弃仓库改建而成,包含了新建的混凝土结构,其中有一间餐厅,一个剧院和一个展览空间。如恩希望通过利用这个项目最有特点的两个景观元素—— 墙与院——将一个复杂的场地格局统一起来,通过粗犷的材料和层叠的空间营造,用现代的设计语言重新定义传统的建筑形式。
Renovating the existing derelict warehouse building, with a partial new concrete addition, this multifunction building houses a restaurant, a theater and an exhibition space. With this project, Neri&Hu’s ambition lies in utilizing a strong landscape element—the wall and courtyard—to unify a complex site and program, while the rustic materiality and layered spaces seek to redefine tradition with a modern architectural language.
▼多功能建筑由原有的废弃仓库改建而成,renovating the existing derelict warehouse building
▼通过墙与院将一个复杂的场地格局统一起来,using the wall and courtyard to unify a complex site and program
▼大厅,lobby
▼餐厅,dining space
外观的宁静感觉一直延续客房内部。深色木材与石材等天然材料在房间内形成巧妙搭配,纯白的墙壁映衬着柔软的沙发和座椅,为房间增添了温馨舒适的气息。以斑纹石材铺设的浴室内设有与墙面融为一体的浴缸,浴缸上方是宽阔的天窗,将自然光引入室内,形成与大自然的完美融合。
Taking its cue from the placid exteriors, the rooms are awash in natural materials—a thoughtful blend of dark wood and stone where pastel chairs and white walls add the right touch of softness. The salt and pepper speckled bathrooms feature soaking tubs with skylights above them for the ultimate communion with nature.
▼客房内部,guest room interior view
▼客房洗手间,bathroom
▼泳池区域,pool
▼篝火区,fire place
▼建筑与水景,architecture and the waterscape
▼场地图,site plan
▼剖面,section
▼接待处平面,reception floor plan
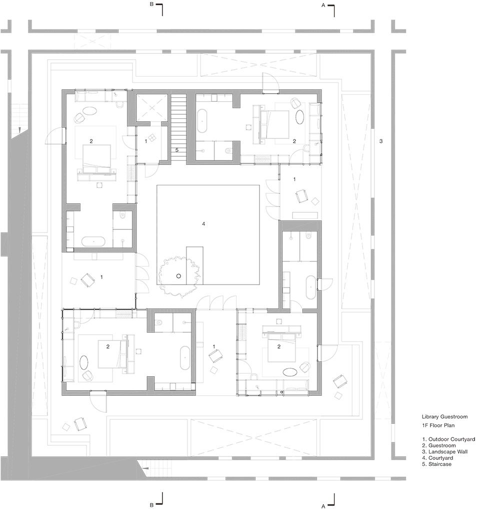
▼客房平面,library guestroom plan
▼客房立面,elevation of guest room
▼湖景客房平面,lakeview guest room plan
▼立面,elevation
▼剖面,section
▼庭院客房,courtyard guest room
▼剖面,section
客服
消息
收藏
下载
最近



























































