查看完整案例

收藏

下载
项目位于惠安雕艺文化创意产业园。用地南北向狭长,产权由两位艺术家C、Z共同且平均拥有。
The project is located in HuiAn Culture Creative Industry Park. The site is a long and narrow land, and the property rights of the land are shared by the two artists C and Z.
▼建筑概览,overview
为了使两个艺术家均能有南向出入口及北向临湖景观,设计将用地沿南北方向再一分为二,从而形成两块更为狭长的次一级用地。在次一级用地里,南侧设置展厅及工作室;北侧为研发、办公、接待等功能,二者间设置庭院,实现良好的自然通风与采光。
In order to allow each artist to have a southbound entrance and a northward facing lake landscape, the design will divide the land into two along north-south direction, forming two narrower sites. Each artist’s functional room is divided into two parts, the south side is the exhibition hall and the studio; the north side is for research and development, office and reception, etc. A courtyard is placed between the two parts to provide good natural ventilation and daylighting.
▼轴测图,axonometric drawing
自高耸的院门起,人们一路上行,空间比例随之变化,穿过混凝土筒状连桥,至研发楼休闲平台可一览北侧湖景,整个序列空间缩放有序又一气呵成。
From the towering courtyard door, the proportion of space gradually changes when people walk. Through the concrete tubular bridge, people will have a lake view on the leisure platform in the R&D building. The whole spatial sequence is well-organized.
▼院门外看一线天中庭,atrium from exterior
为了高效组织次一级用地的空间关系,设置一个直通三层的直跑大楼梯。直跑楼梯共7个休息平台,如果适当放大第1、第4、第7个休息平台,就可以为C、Z工作室一、二、三层形成面对面的三个出入口,流线清晰、便捷。上部,两部分雨棚相扣,强化整体感,创造出一线天意象。
In order to efficiently organize the spatial relationship, the straight flight stairs which is through to the third floor is placed between the two parts. There are 7 rest platforms on the stairs. If we properly enlarge the 1st , 4th and 7th rest platforms’ area, there will be 3 face-to-face entrances formed on the 1st, 2nd and 3rd floors, making the streamline system more convenient and clear. In the upper part, the canopies of C and Z are connected to strengthen the overall sense of the building and create the image of thin strip of sky.
▼直通三层的直跑大楼梯,the straight flight stairs which is through to the third floor
▼上部两部分雨棚相扣,创造出一线天意象,the canopies of C and Z are connected to create the image of thin strip of sky
晴天,自一线天直泻下来的阳光缓慢移动,制造丰富的光影变化;雨天,自一线天泻下的雨水形成壮观的水幕,雨水沿中部微凹的水道下流,汇至第1休息平台的集水槽,空间与大自然产生生动的交融。
On sunny days, the sunlight from thin strip of sky slowly moves as time goes on, creating a more diverse light and shadow change. On rainy days, the rainwater from thin strip of sky forms a spectacular waterfall. The rain flows from the central concave channel to the catchment at the entrance, creating a vivid scene of architecture and nature.
▼二层平台看一线天中庭,view from 2nd floor platform to the atrium
▼中轴线回望,looking back at the central axis
侧立面,庭院部分以斜撑构架联系南北体量,形成完整形态,并为院落空间塑造边界与领域感。
The side facades are connected in the courtyard using a frame formed by diagonal braces, forming an integral form, and creating a spatial boundary for the central courtyard.
▼庭院门架及筒状连廊,concrete doorframe and tubular corridor in courtyard
▼工作室入口,entrances
▼室内概览,interior view
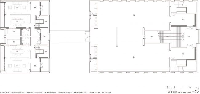
▼一层平面图,first floor plan
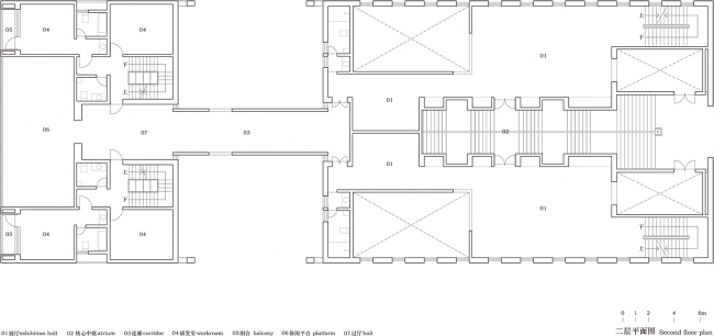
▼二层平面图,second floor plan
▼三层平面图,third floor plan
▼立面图,elevation
客服
消息
收藏
下载
最近




























