查看完整案例

收藏

下载

翻译
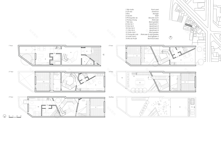
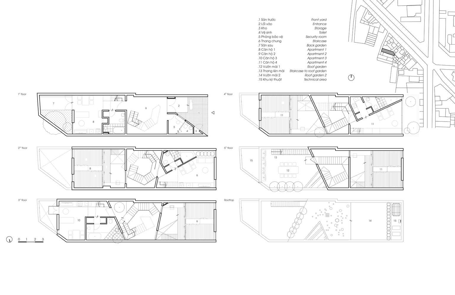
LDH is a project with land size 5x20m which is located in a small alley of Hanoi Downtown. LDH was designed from a module of a typical apartment with all the functions to serve as a rental apartment for foreigners:
The four duplex apartments were designed with those functions arranged and aligned within a 5x20m space to create a circulation core in the center, with access to each apartment at various levels.
The necessary functions for an apartment are compressed into the basic volume of 5x5x6(m) by concrete – natural wood–steel. However, each apartment has a different sense of living space and view.
The highlight of LDH project is probably the amorphous staircase in the center which is made of a 10mm steel structure and a step surface covered with EPDM rubber beads. This traffic route has broken the long axis normally found in a typical tube house. It creates more spatial dimensions when approaching the apartments above.
客服
消息
收藏
下载
最近






























