查看完整案例

收藏

下载

翻译
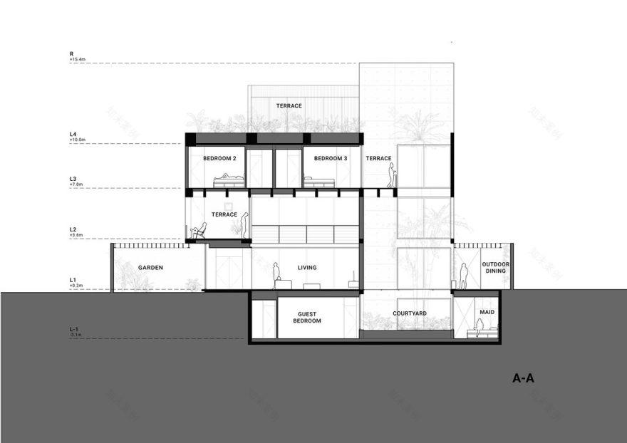
Tại quận 2 của thành phố Hồ Chí Minh, văn phòng Nha Dan Architects đã tạo nên không gian sống hướng nội nhưng đồ sộ – “Bunker house”. Trải dài năm tầng, bao gồm một tầng hầm và sân thượng, các trải nghiệm không gian bên trong được thiết kế xung quanh cấu trúc bê tông.Bunker houseThông tin dự án:Tên dự án:Bunker housePhân loại:Nhà dânĐịa điểm:Quận 2, Thành phố Hồ Chí Minh, Việt NamVăn phòng kiến trúc:Nha Dan ArchitectsTrạng thái:Hoàn thànhNăm xây dựng:2019Diện tích:877 m2Kiến trúc sư trưởng:Nguyễn Đình GiớiĐội ngũ thiết kế:Trần Minh Phước, Lương Hiền PhươngẢnh:Hiroyuki OkiMặt bằng tầng trệtSân thượngTrong các dự án trước, các kiến trúc sư của Nha Dan Architects thường sử dụng hệ thống dầm và cột bê tông để giải phóng và kết nối các không gian tốt hơn trong khi vẫn cho phép không khí bên ngoài xâm nhập vào. Đối với dự án “Bunker house”, hệ thống cộtbê tôngkhông chỉ là cấu trúc, mà còn giúp phân vùng không gian khác nhau và định hướng tính thẩm mỹ cho dự án.Nơi diễn ra các hoạt động giải trí của gia đìnhPhòng kháchCác cột bê tông được nhóm lại thành 3 “chân”, đóng vai trò là điểm neo kết cấu cho các tấm bê tông đúc hẫng. 3 chân này xác định những trải nghiệm không gian trong toàn bộ ngôi nhà. Tầng 1, “chân” đầu tiên có tác dụng bảo vệ không gian sống từ thế giới bên ngoài.Phòng ăn“Chân” thứ 2, thực chất là lõi thang máy, và “chân” thứ 3 vạch ra ranh giới giữa các không gian. “Chân” thứ nhất và thứ 2 làm nổi bật phòng khách và phòng ăn. Ở tầng trên, những chân này hợp nhất với bức tường phi cấu trúc để định hình giới hạn giữa không gian bên trong và bên ngoài, và phân không gian thành các phòng nhỏ hơn.Không gian dành cho việc học tậpPhòng ngủ chính theo phong cách tối giảnKhông gian bên trong ” Bunker house” giống như một hầm ngầm, nhưng vẫn thoáng mát và tràn ngập ánh sáng tự nhiên.Mô hình cấu trúcMột số hình ảnh khác:“Bunker House”: Ngôi nhà với kết cấu bê tông thô | Nha Dan Architects“Bunker House”: Ngôi nhà với kết cấu bê tông thô | Nha Dan Architects“Bunker House”: Ngôi nhà với kết cấu bê tông thô | Nha Dan Architects“Bunker House”: Ngôi nhà với kết cấu bê tông thô | Nha Dan Architects“Bunker House”: Ngôi nhà với kết cấu bê tông thô | Nha Dan Architects“Bunker House”: Ngôi nhà với kết cấu bê tông thô | Nha Dan Architects“Bunker House”: Ngôi nhà với kết cấu bê tông thô | Nha Dan Architects“Bunker House”: Ngôi nhà với kết cấu bê tông thô | Nha Dan Architects“Bunker House”: Ngôi nhà với kết cấu bê tông thô | Nha Dan Architects“Bunker House”: Ngôi nhà với kết cấu bê tông thô | Nha Dan Architects“Bunker House”: Ngôi nhà với kết cấu bê tông thô | Nha Dan Architects“Bunker House”: Ngôi nhà với kết cấu bê tông thô | Nha Dan Architects“Bunker House”: Ngôi nhà với kết cấu bê tông thô | Nha Dan Architects“Bunker House”: Ngôi nhà với kết cấu bê tông thô | Nha Dan Architects“Bunker House”: Ngôi nhà với kết cấu bê tông thô | Nha Dan Architects“Bunker House”: Ngôi nhà với kết cấu bê tông thô | Nha Dan Architects“Bunker House”: Ngôi nhà với kết cấu bê tông thô | Nha Dan Architects“Bunker House”: Ngôi nhà với kết cấu bê tông thô | Nha Dan Architects“Bunker House”: Ngôi nhà với kết cấu bê tông thô | Nha Dan Architects“Bunker House”: Ngôi nhà với kết cấu bê tông thô | Nha Dan Architects“Bunker House”: Ngôi nhà với kết cấu bê tông thô | Nha Dan Architects“Bunker House”: Ngôi nhà với kết cấu bê tông thô | Nha Dan Architects“Bunker House”: Ngôi nhà với kết cấu bê tông thô | Nha Dan Architects“Bunker House”: Ngôi nhà với kết cấu bê tông thô | Nha Dan Architects“Bunker House”: Ngôi nhà với kết cấu bê tông thô | Nha Dan Architects“Bunker House”: Ngôi nhà với kết cấu bê tông thô | Nha Dan Architects“Bunker House”: Ngôi nhà với kết cấu bê tông thô | Nha Dan Architects“Bunker House”: Ngôi nhà với kết cấu bê tông thô | Nha Dan ArchitectsBiên dịch | Hương Giang (Nguồn Archdaily)XEM THÊM:Đâu là tương lai của bê tông trong kiến trúc?Những vật liệu thường được sử dụng để tạo hình cho bề mặt bê tôngĐá nhân tạo gốc thạch anh VICOSTONE sở hữu các đặc tính vượt trội về độ bền, cứng, chống thấm, dễ dàng bảo dưỡng, được cấp các chứng chỉ quốc tế về độ an toàn tuyệt đối cho sức khỏe người dùng.Bấm để tìm hiểu thêm về VICOSTONEVới hơn 130 mẫu mã, màu sắc, được thiết kế lấy ý tưởng từ vẻ đẹp của thiên nhiên, mặt đáVICOSTONEtruyền cảm hứng sáng tạo cho không gian sống, là lựa chọn hàng đầu cho các ứng dụng bề mặt như đá bàn bếp, bàn trà, nhà tắm, decor nội thất để tạo điểm nhấn… phù hợp với phong cách riêng của mỗi người.Bình luận từ Facebook
客服
消息
收藏
下载
最近









































