查看完整案例


收藏

下载

翻译
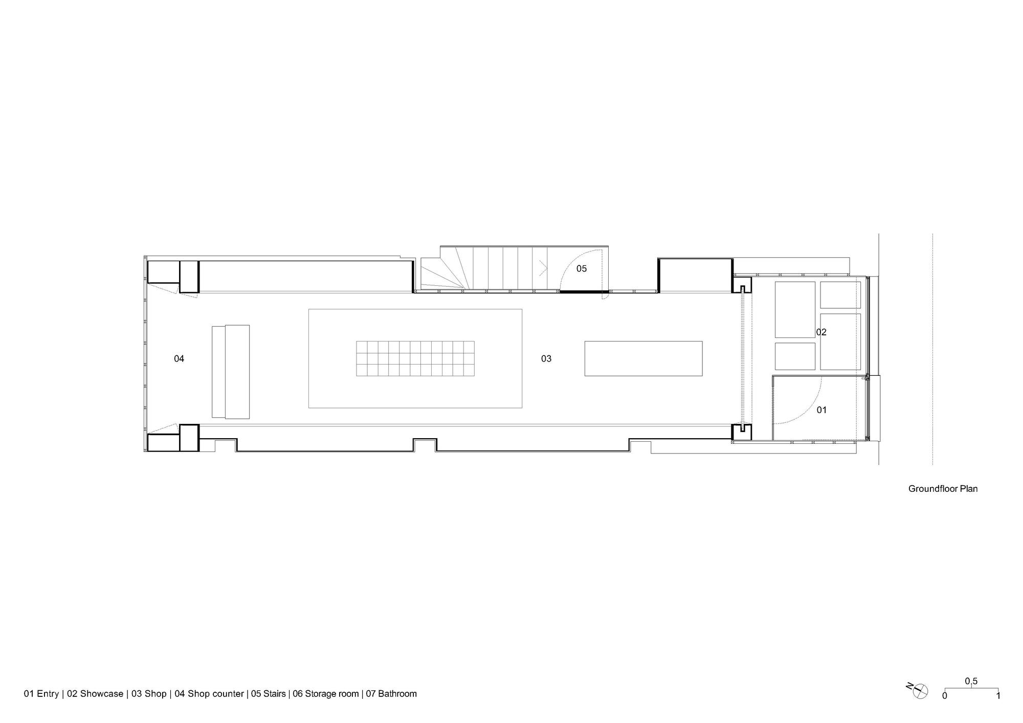
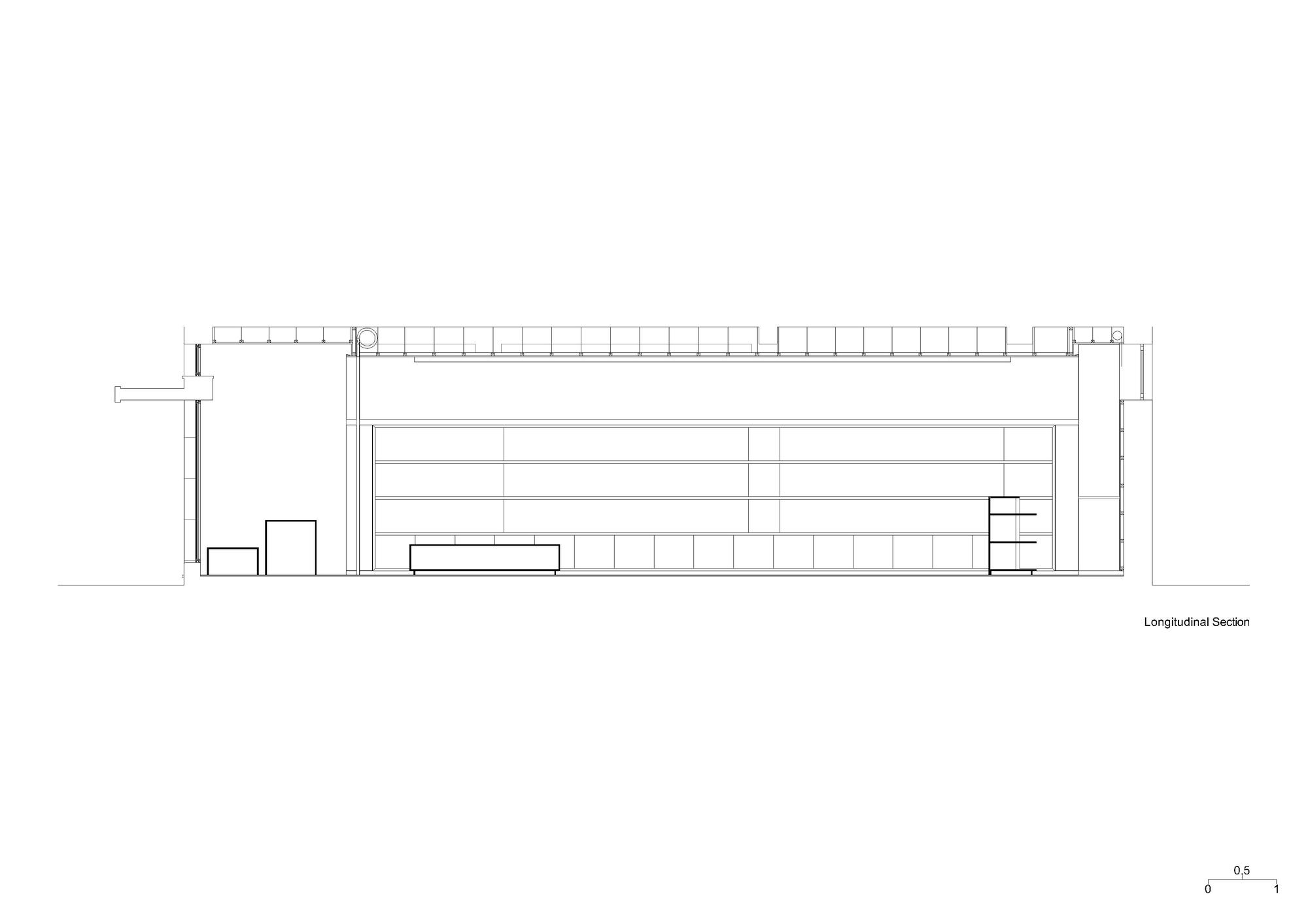
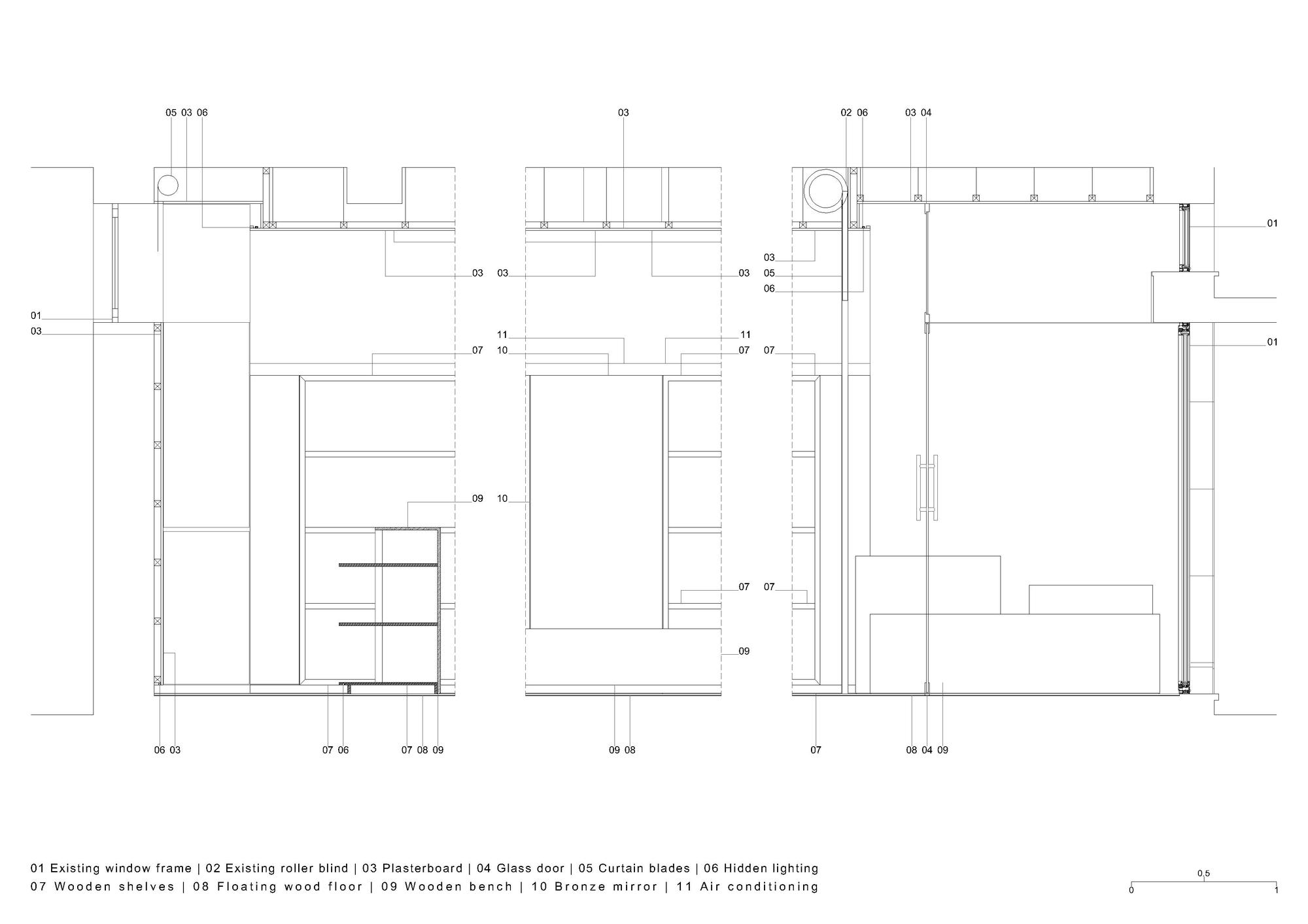
In the center of Vila do Conde, north of Portugal, we find a small, narrow and empty store, without dividing walls and naked of decor. The storefront opens to Dr. João Canavarro avenue, one of the most importants streets in this city. In the back there is a small window near to the ceiling, which allows ventilation of the space and some light on the north side. The building facades are preserved without any kind of intervention and the existing window frames are kept to control costs. On the back façade the frame in wood is only painted inside. Inside, the shoe store develops all over the ground floor, the space has been completely renovated with new ceiling, walls and floor coverings. On the floor is used a floating floor of oak wood, on the walls and ceilings are used plasterboards.
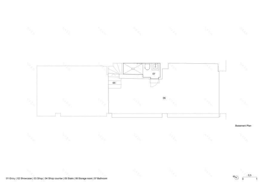
In the basement, the existing storage room and the bathroom are kept. On this floor is only painted the walls and the ceiling. The rectangular form of the space allowed to define two areas of cabinets with shelves to expose the products on both sides. In the lower area of the cabinets there are drawers to put the shoes. The basement stairs are hidden behind a mirror, with a hidden door to the storage room access. The storefront has small boxes, allowing to change their position and also the position of the products. The advertising panel of the store is also inside of the storefront, like a pendant box on the ceiling. There is an antechamber with a double-door which allows to control the cold in the winter as the external door is always open. In this space was only used colorless transparent glass. A roll with the security grille has been placed behind the storefront which allows to show the products even when the store is closed.
In the back of the store we have a cash desk space for services, made with mirror and lacquered plywood. The cash desk is equipped with cash register, computer and a packing area. The wall on the back of this area have a big television to show advertisement and music video clips. Inside of the store we have a soft cream color on the walls, the ceilings, the lacquered carpentry, the carpet and the sofa, illuminated by hidden led lights, allowing to create a calm and comfortable ambience where the shoes exalt its design. The project looks to show the simplicity of the space, with economy of means on the solutions that are used either at the design level or at the materials level.
客服
消息
收藏
下载
最近
































