查看完整案例


收藏

下载
Casas, Chittoor, India
设计师:Living Edge Architects and Designers (LEAD)
面积:5000 ft²
年份:2016
摄影:LINK studio
提供协助:FunderMax, AutoDesk, HMG STONES, Trimble Navigation
负责建筑师:Dinesh Shanmugam, Shone Saju
业主:Anudeep, Sandeep
工程师:Sigma Consultants
Ciudad:Chittoor
Pais:India
设计师描述 | Designer description:
En este proyecto hemos aplicado descaradamente el dogma arquitectónico de diseñar con espacios que fluyan libremente. Hemos tratado de superar el desafío de crear cerramientos en torno a la idea central de la apertura, orientando internamente la casa hacia un patio descentralizado.
Cumpliendo con los requisitos del cliente de una residencia de estilo contemporáneo, la casa de dos niveles se asienta en un plan abierto con espacios que se fusionan entre sí. El concepto de apertura se aplica con bastante diligencia, desde la sala de estar en la planta baja que se conecta con el patio y se abre hacia la terraza privada al aire libre, hasta el baño de estilo abierto y los closets en las habitaciones.
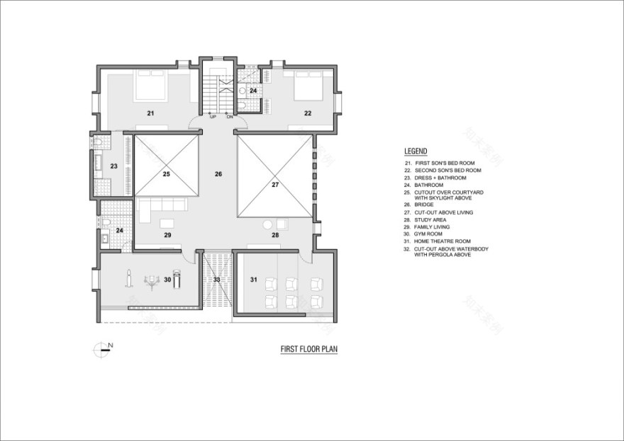
Los espacios de doble altura permiten acentuar la verticalidad, provocando aperturas verticales. El plano arquitectónico de la casa también integra un puente en el nivel del primer piso, que ofrece vistas agradables al conectar los dos atrios. El juego inteligente de niveles garantiza un uso eficiente de las alturas que se ven particularmente en la sala de cine en casa, que se encuentra sobre el área de estacionamiento de automóviles.
Los interiores de la casa están ligados con el exterior, de manera fluida. Las líneas limpias y contemporáneas aportan una sensación arquitectónica a los espacios, mientras que los tonos neutros del blanco, la madera cálida y el concreto frío suavizan las experiencias lineales.
La meticulosa integración de los verdes proporciona acentos de suavidad. Los tragaluces divididos de manera eficiente traen chorros de luz natural en todo el interior de la casa. Todos los elementos unidos aseguran la sensación contemporánea que hace de 'ARTHA' un hogar agradable.
项目完工照片 | Finished Photos
设计师:Living Edge Architects and Designers (LEAD)
分类:Casas
语言:西班牙语
阅读原文
客服
消息
收藏
下载
最近























