查看完整案例

收藏

下载

翻译
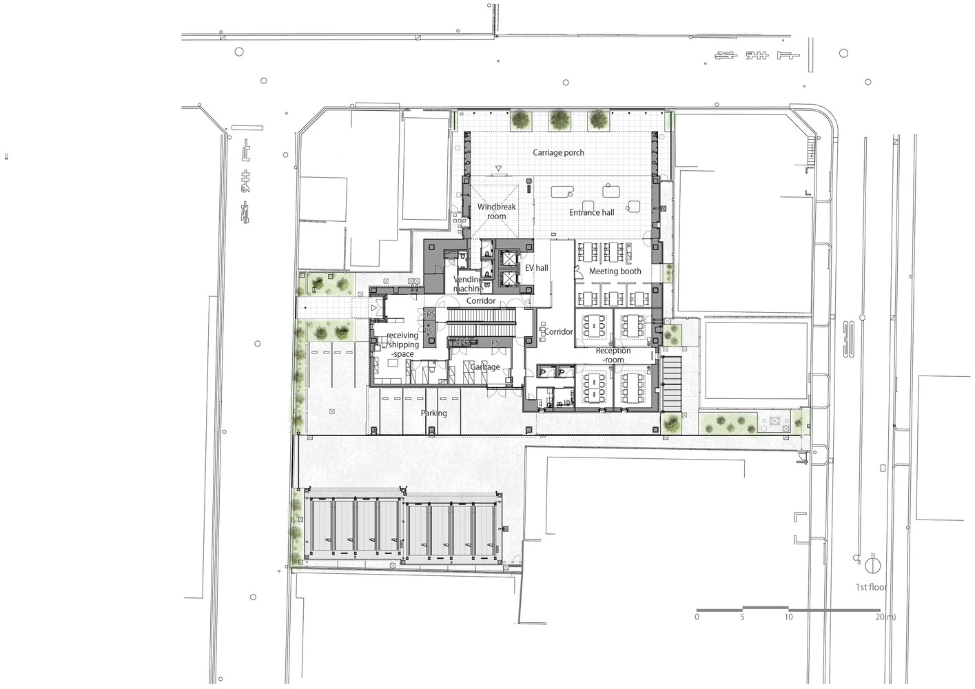
Here, the sense of oppression was reduced by dividing the ryume to harmonize with the scale of the surrounding area, and the privacy-conscious details of the openings and inner terrace created an open workplace while taking the neighborhood into consideration. The building was also designed to accommodate the process of growth (expansion) to keep pace with the metabolism of the city, with a view to future expansion.
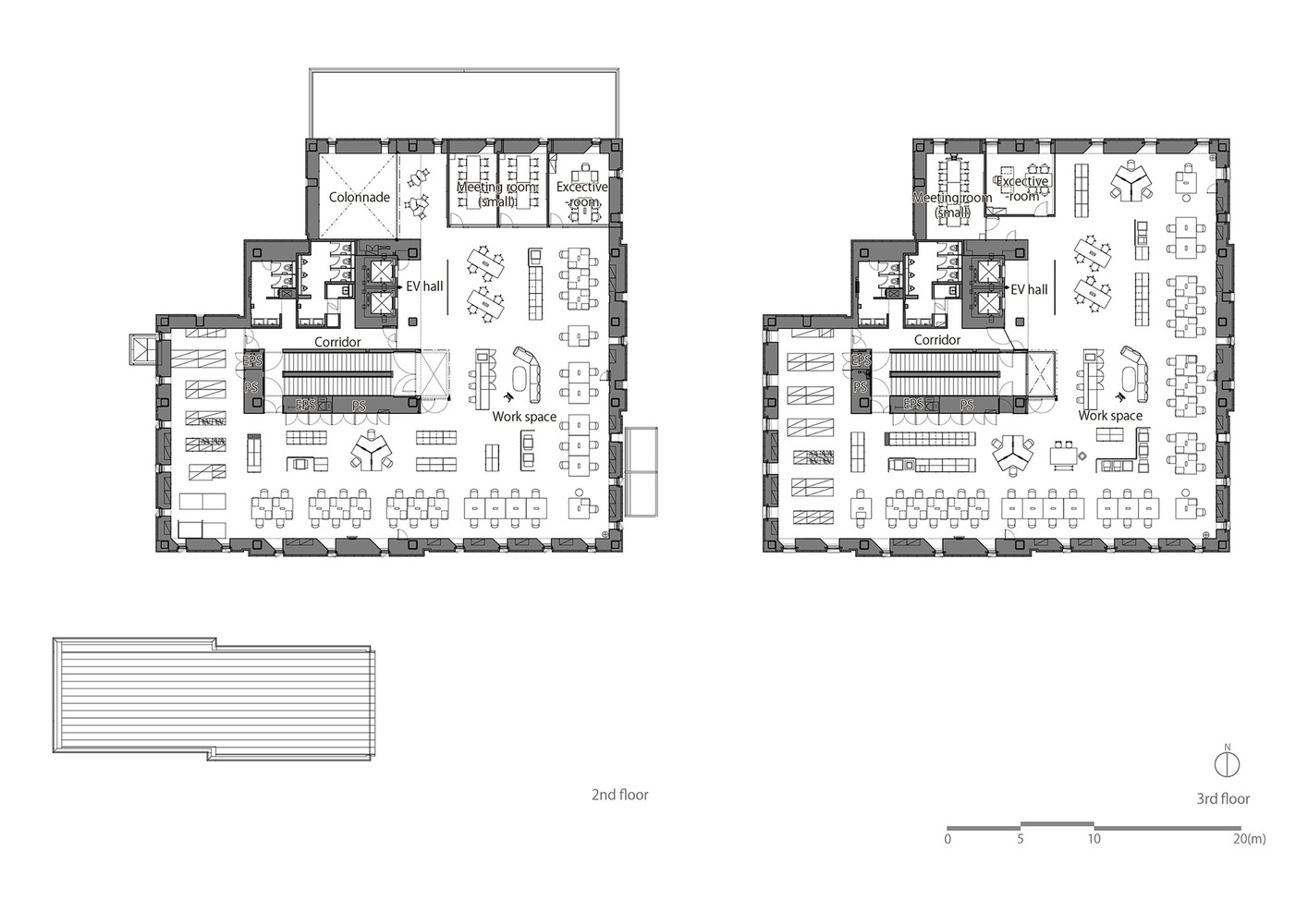
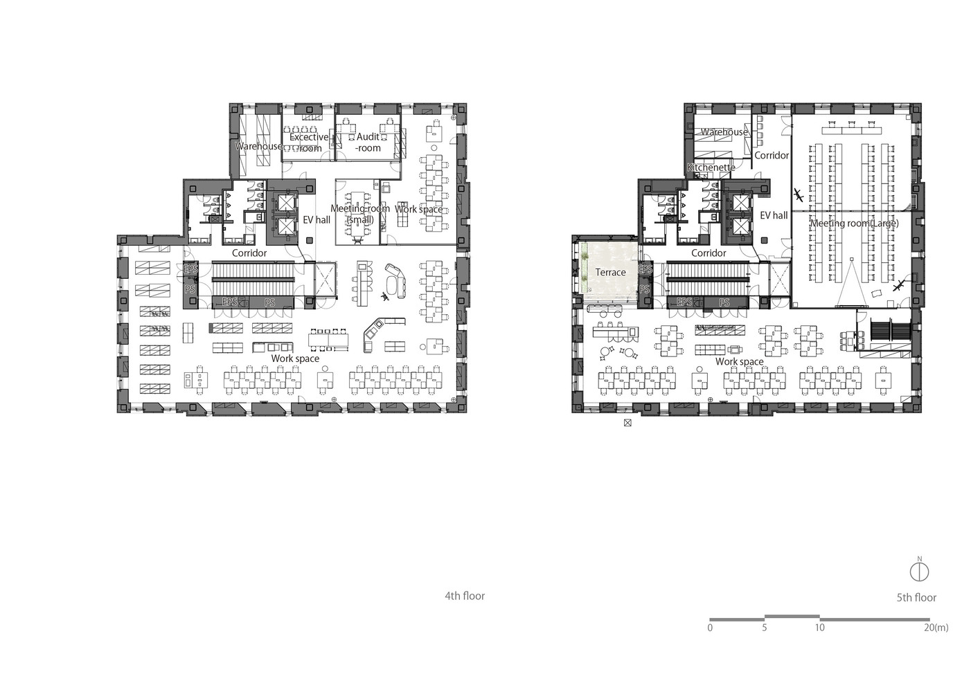
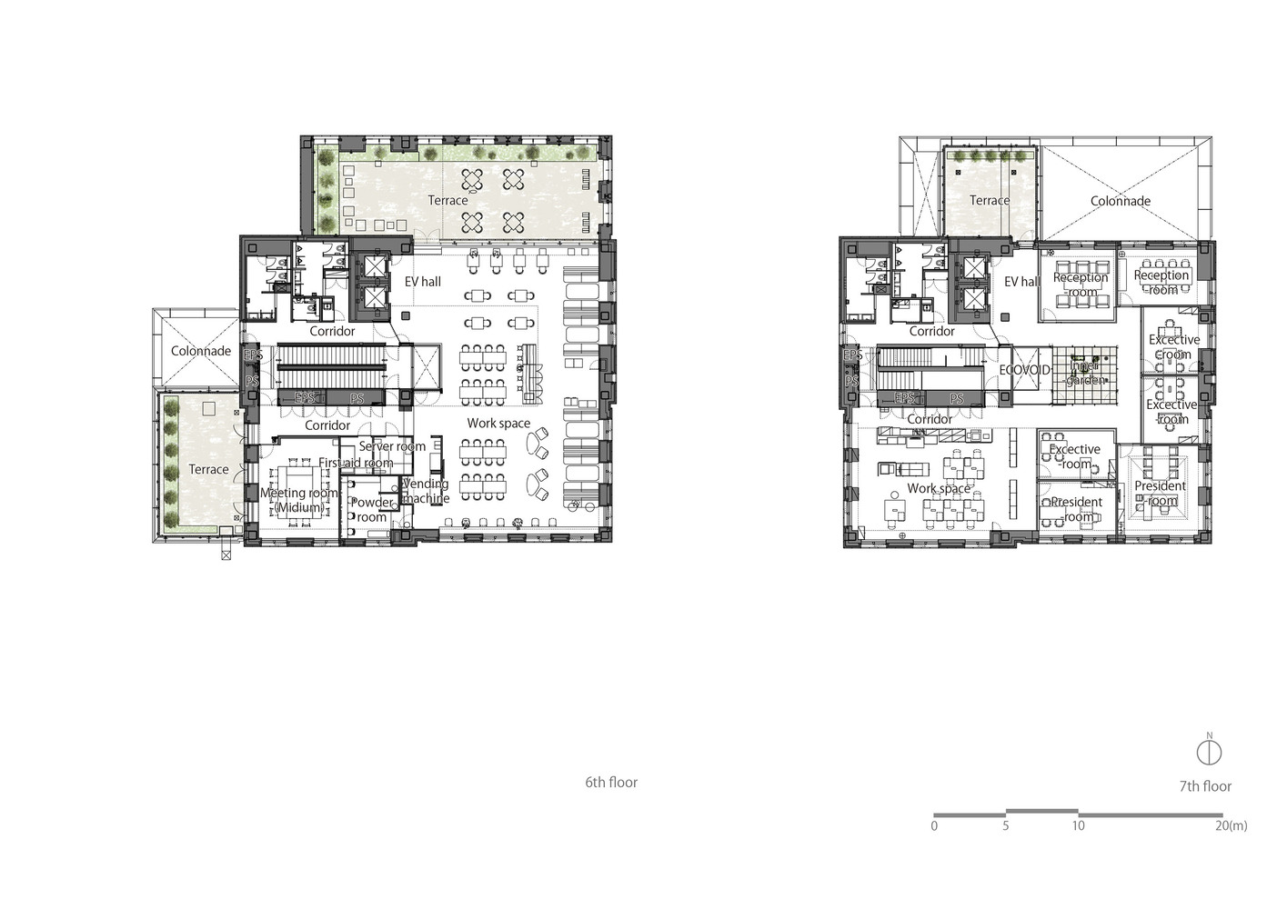
The core is slightly displaced from the center of gravity on the irregularly shaped site and has a simple plan shape with a portion of the core missing, in accordance with the site shape. The core is positioned as a public space that connects departments divided by floor, and the X staircase is used to secure the effective ratio while reducing the stress of employees moving up and down, thereby improving communication. In addition, a natural ventilation system with environmental voids adjacent to the core and a terrace allow employees to work while feeling the city air, improving wellness.
We hope that this workplace, sandwiched between the two publics of the city and the core, will connect the inside and outside, work and life, and create a lively place full of innovation in Tsuruhashi, the place where the company was founded.
客服
消息
收藏
下载
最近
































