查看完整案例

收藏

下载

翻译
El Tintal Library is the result of reusing a former disused waste transfer plant and transforming the 5-hectare site into a park along Avenida Ciudad de Cali with 6th Street. The rescued building from ruin was a 25-meter-wide by 72-meter-long industrial warehouse with a total area of 3,600 m², distributed over two floors of considerable height. Built with a sturdy concrete structure and large spans, it was adaptable to new use, enhancing its robust and industrial appearance.
A large 75-meter-long viaduct, originally designed for waste disposal to the compactors, has been transformed into a mechanism to announce and provide access to the first and second floors of the Library, as well as becoming an element of activity and interaction with the park.
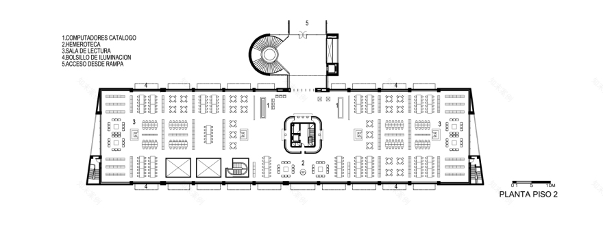
On the second floor, a large reading room of seven meters in height was created, crowned by seven enormous skylights that receive maximum natural light from the north without direct sunlight. The grand space is flanked by a sequence of light pockets that ensure optimal lighting levels and also features two large windows that selectively frame the most remarkable features of the distant landscape: the savanna and the hills. Since the facilities and services are resolved within a fixed central point, the floor plan is completely clear, guaranteeing absolute flexibility as well as remarkable visual and spatial openness.
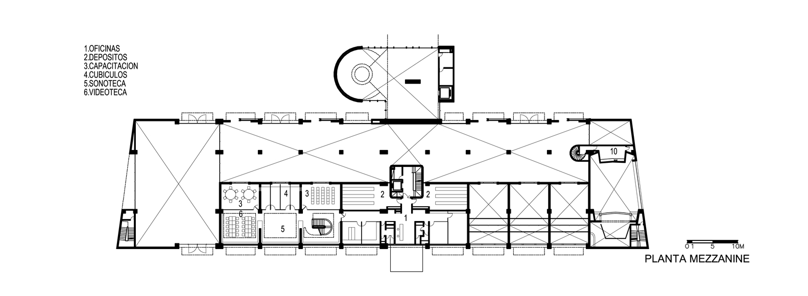
The first floor consists of a large corridor, bordered by a sequence of windows and circular openings, which connects various rooms and is flanked on one end by an auditorium and on the other by a children's room. Preserving the voids of the original hoppers, the building has a mezzanine to accommodate offices, a sound library, and a video library. The technical area is located outside the main block and leads directly to the central column of circulation and vertical channels, achieving maximum efficiency. All the gray concrete of the original structure was preserved, and the new structural and architectural elements were cast in light concrete and subsequently bush-hammered to highlight the limestone aggregate that reflects light with great intensity.
客服
消息
收藏
下载
最近


























