查看完整案例

收藏

下载
设计 | 1890 STUDIO
主持 | 夏承龙
见山花园为依山傍湖的合院式住宅,建筑外观依阶而上,外形似山非山,山中间隙有光影摄入,山脚有庭院,山顶有露台,可花鸟丛林,可闲情雅趣,巷陌纵横,本案也将以“花园”为核心点,开展设计...
Jianshan Garden is a courtyard style residential building located near a mountain and a lake. The exterior of the building follows a staircase, resembling a mountain rather than a mountain. There is light and shadow in the gaps between the mountains, a courtyard at the foot of the mountain, a terrace at the top, flowers and birds in the jungle, leisure and elegance, and the alleys are crisscrossing. This project will also focus on the "garden" and carry out the design.
负二层:入室的仪式 The ceremony of entering the house -
负二楼为地下室车库入口,从屋主停车入室到开启家门,一系列的场景转换,需营造符合建筑气质与屋主身份的空间。
The second basement floor serves as the entrance to the basement garage, with a series of scene transitions from the owner’s parking entry to the opening of the home door, creating a space that conforms to the architectural style and the owner’s identity.
深色艺术涂料搭配白色灯膜天花完美衬托车库格调;正对电梯开窗,从电梯下来即可看到展厅式的车库空间。
Dark art paint paired with white light film ceiling perfectly complements the owner’s preferred car. Opening the window directly towards the elevator, you can see the exhibition hall style garage space from the elevator.
原创定制的入户门与车库完美结合,智能化设施凸显科技与时尚感,入户的门牌也是为屋主量身定制的设计款。
The original customized entrance door and garage are perfectly combined, and the intelligent facilities highlight technology and fashion. The entrance sign is also a design tailored for the homeowner.
从车库开门入室,映入眼前的是拥有自然采光的绿植景观,如雕塑般的楼梯与景观完美结合,深色木皮包裹的电梯承载各个空间的转换。
Opening the door from the garage and entering the room, one can see the green plant landscape with natural lighting. The sculptural staircase perfectly blends with the landscape, and the elevator wrapped in dark wood leather carries the transformation of various spaces.
挑空的品茶区将天井自然光最大化引入室内,同时共享中庭景观,形成品茶区-娱乐区-健身区三位立体式的‘互望’关系。
The empty tea tasting area maximizes the natural light of the courtyard into the interior, while sharing the atrium landscape, forming a three-dimensional’mutual view’ relationship between the tea tasting area, entertainment area, and fitness area.
-2F 布置图
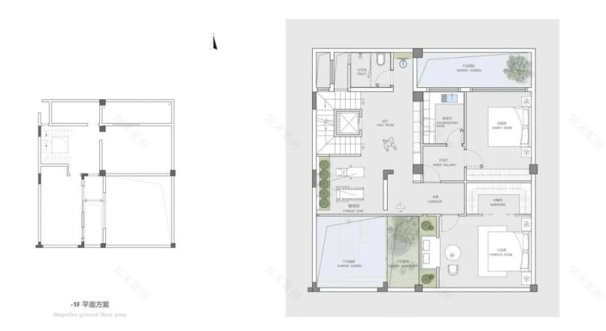
02负一层:空间的转换
Transformation of space
负一层电梯上来形成挑转换空间,顶面的序列形成动线的引导,同时将天井采光、负二层视野及健身区相互串联。
The elevator on the first floor of the basement forms a transition space, and the sequence on the top surface guides the movement line. At the same time, the courtyard lighting, the view of the second floor of the basement, and the fitness area are connected to each other.
利用中间的承重柱,咬合横向挑空的水吧台,围合出一片健身区,通过光线与小景营造简约高级的区域。
Using the load-bearing column in the middle, occlude the horizontally suspended water bar counter, enclose a fitness area, and create a simple and high-end area through light and small scenery.
-1F 布置图
03一层:自然而然
automatically
景观点分布图
一层的户外庭院与周围的景观相互呼应,将建筑包裹,可以很好的照顾到室内的空间,将自然的景观融入室内。
The outdoor courtyard on the first floor echoes the surrounding landscape, enveloping the building and taking good care of the indoor space, integrating natural landscapes into the interior.
一层原户型为扁长形,我们通过电视墙分割围合出客厅场域,将沙发中间摆放,稳住整个客厅的气场。
The original unit on the first floor was a flat and elongated shape. We divided and enclosed the living room area through a TV wall, and placed the sofa in the middle to stabilize the overall atmosphere of the living room.
一层拥有非常好的采光及外部景观,所以本层我们采用大面留白的设计,目的是将自然光与景观映衬室内的氛围。
The first floor has excellent lighting and external landscape, so we adopt a large white space design with the aim of reflecting natural light and landscape to create an indoor atmosphere.
一层将所有的墙体加厚,留出窗户凹陷空间,便于隐藏顶部卷帘,也为了形成干净的窗框引景入室。
On the first floor, all walls will be thickened to leave room for window recesses, making it easier to hide the top roller blinds and to create a clean window frame to attract the scenery into the room.
一层餐厨厅将中厨、西厨、中岛、餐桌融于一体,满足不同场景的使用功能。
The first floor dining hall integrates traditional Chinese cuisine, Western cuisine, central island cuisine, and dining tables to meet the various usage functions in different scenarios.
1F 布置图
04二层:居室空间
Bedroom space
二层女儿房拥有很好的采光与层高,所以利用优势在深度划分三段满足钢琴、休息、书写区,在纵向划分两段,增加空间利用率与趣味性。
The daughter’s room on the second floor has good lighting and floor height, so it utilizes its advantages to divide it into three sections in depth to meet the needs of piano, rest, and writing areas, and two sections in vertical direction to increase space utilization and fun.
2F 布置图
05三层:主卧套房 Master Suite
主卧推门而入即可看见如精品店式的衣帽间,充满功能且具展示。
Pushing the door into the master bedroom, you can see a boutique style cloakroom that is fully functional and showcasing.
3F 衣帽间区域原为露台,通过阳光房形式封住,在衣柜背部采用渐变长虹玻璃,顶面也预留自然采光,无论白天夜晚的不同时段,都是曼妙的视觉感受与使用体验。
The 3F cloakroom area was originally a terrace, sealed in the form of a sunroom, with gradient rainbow glass at the back of the wardrobe and natural lighting reserved on the top, providing a graceful visual experience and user experience at different times of day and night.
3F 男士衣帽区,采用背光式灯膜,开放式的杆件,彰显简约时尚的个性品味。
The 3F men’s clothing and hat area features a backlit light film and open poles, showcasing a simple and fashionable personality taste.
主卧采用片墙的围合方式,淋浴间采用渐变磨砂玻璃,满足自然的采光与景观的互通。
The master bedroom adopts a wall enclosure method, and the shower room adopts gradient frosted glass to meet the interweaving of natural lighting and landscape.
3F 布置图
06顶层:见山花园
Seeing the Garden of the Mountain
屋顶露台坐在吧台上可以望见合肥大蜀山,露台本身拥有 BBQ、休闲区、绿植景观等丰富功能。
Sitting on the bar, you can see the Dashu Mountain in Hefei from the rooftop terrace. The terrace itself has rich functions such as BBQ, leisure area, and green plant landscape.
露台布置图
INFO
项目地址 | 合肥.世茂国风.见山花园
项目面积 | 500 m²(扩建后)
项目模式 | 全案设计
设计单位 | 1890.STUDIO
设计总监 | 夏承龙
参与设计 | 魏浩杰、朱爱婷
主要用材 | 艺术涂料、岩板、染色木皮、金属、艺术玻璃等
1890 STUDIO,成立于合肥的设计工作室,我们倡导用建筑思维的理性规划空间,用艺术美学的感性营造生活,以功能为基础,以情感为纽带,以真实美学为导向,从居者内心出发,用当代设计手法赋予每个空间最真实的情感表达,为居住创造一种专属的生活方式。
1890 STUDIO, a design studio founded in Hefei, advocates the rational planning of space with architectural thinking, the emotional creation of life with artistic aesthetics, based on functions, emotional ties, and guided by real aesthetics. Starting from the hearts of residents, we use contemporary design techniques to give each space the most authentic emotional expression, creating a unique way of life for residents.
2022 金腾奖公益设计类 金奖
2022 CIID 中国室内设计商业方案类 银奖
2022 营造家年度最佳适老化住宅设计奖
2022 设计头条年鉴榜 TOP100
2022 PCHOUSE AWARD 中国私宅年度评选全国榜 TOP100
2021 红棉中国设计奖 年度最美极简空间设计奖
2020 好好住营造家年度推荐设计师/设计机构
2020 书香门地美学设计大赛全国 TOP1
2020 第十四届 红棉中国设计奖 室内设计类
2019 第九届筑巢奖
40UNDER40 中国(安徽)杰出设计青年(2018-2019)
咨询
私宅 | 全案| 商业
客服
设计师
1890 STUDIO
欢迎您
关注丨点赞
丨分享
客服
消息
收藏
下载
最近















































