查看完整案例


收藏

下载
颠覆旧 迎新生
Overturn the old and welcome the new
薄小飞 | 采访撰文
私宅空间 | 项目类型
采访地点 | 中投国际 A1901
李斌| 设计师
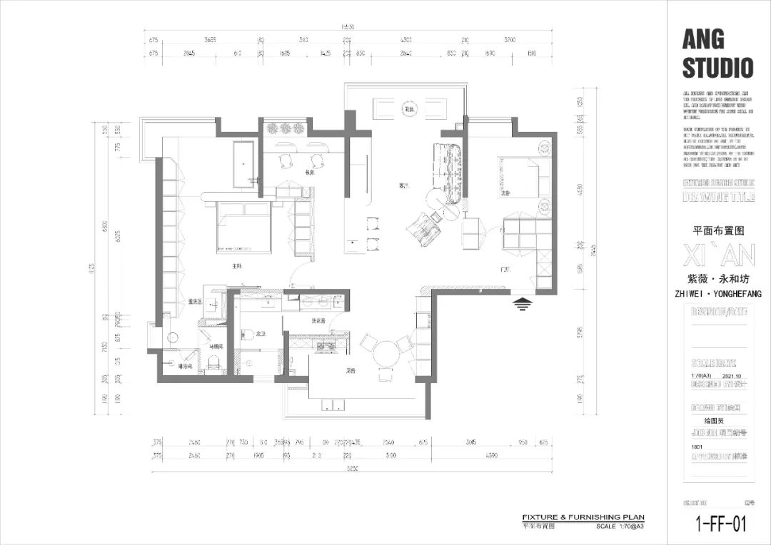
▼平面布局 FLOOR PLAN
△原始平面图
△平面布局图
改造前· 旧屋原貌
等一朵花开,需要很多微笑和耐心,就像空间等一个契合的设计,需要细腻的心怀和心藏一个爱做梦的小孩。
本案 150 平方米旧房改造,设计有“魔法”。
李斌:有时候,不大的空间会激发更多的设计可能,旧房改造先要放空,再要投入,放空空间格局,投入新生活场景,与屋主共同认知,利用空间的每一个可能性,做全新的改善,去“垃圾空间”,迎清浅新滋味。
改造后· 迎来新生活
//
START READING
SLOW FOOD
HUMAN FIREWORKS COLOR
慢品,人间烟火色
我们总在思考,设计而得的是什么?
We’re always thinking, what are we designing for?
日本建筑师藤本壮介说是“空”,平面生来就是不平的,因此设计需要解决空间的方法也应该是不平的;房屋临马路,二手房、嘈杂、过道多,这些都是本案的原始“硬伤”,顺着平面来那就无法下手,于是,设计师李斌先以“不平”的平面改造展开空间的全面改造思路,满足屋主小两口和未来成员的居住需求,三室改两室,加大储纳功能,将许多“垃圾空间”变为功能空间,微水泥墙顶地贯通,一个材料进行到底,自然而然得出了更多的场景空间。WALK LIFECHANGES - 漫步,生活多样切换。
在空间作诗,不同的设计层次成为抚慰居住心境的“长短句”。
Make poems in space, different design levels. Become the "long and short sentences" to soothe the living mood.
打开的客房空间与原始狭长的过道融合,消隐了过道的堵塞,以此为一个动线原点,设计悬空岛台,联动客厅和半开放的多功能房,岛台多方“关照”,满足客厅的娱乐需求也兼顾多功能房的使用功能。
PEACE OF MINDFILL THE BLANK
心安,填满留白
每个歇脚处,都是心安之所
Every resting place is a place of peace
从岛台向内,进入此处,原始被打掉的卧室另一半空间设计成为男女屋主共同使用的多功能间,打游戏、工作、学习都统统满足,顺着梁边吊顶,嵌入灯影,面朝窗井,无繁杂多余,纯粹中更易投入。
OPEN
COLLIDE WITH COMFORT
打开,与舒适撞怀
世间温软,风轻云淡。The world is warm and soft, the wind is light and the clouds are light.
设计的奇思是大胆的颠覆,在设计哲学里,最关键的元素,就是与生活紧密相连,从设计意识上真正赋予空间生活性,打开原始狭小的厨房,“拉拢”阳台,依着阳台的格局,成为厨房主体空间,开阔的餐厨空间就着丰盈的采光,原木纹理结合强功能的储纳,中西餐厨一体绰绰有余,原本的厨房空间打通客卫,安放洗衣房,每个功能都被妥帖设计。
RELAX
IS COMFORTABLEGALLOP
松弛,是惬意驰骋
Until you got here, smiling in style
松弛无处不在,一个巧妙的改造点,砸开的次卧一分为三,除却过道岛台、多功能房,还有三分之一“成全”了主卧的变革。原始无法使用的主卧小方块空间,与之合并后设计将功能发挥到了极致。砌床头矮墙,变幻主卧的动线朝向,主卧空间以此划出层次节奏,贯通的衣帽柜强大储物,同时留有视口和多功能空间产生互动。
△主卧挪出的洗手台拐角贯通卧室,也发挥收纳小件衣物功能
设计放大舒适的“隐喻”,主卧的空间外移后,靠窗的空间起地台,依托床头矮墙,切割出浴缸空间,窗几之间,是高品质的生活方式。
△起一排矮柜,多一方储纳,自然而然是整洁和便捷。
瞻彼淇奥
绿竹猗猗
有匪君子
如切如磋
如琢如磨
暨如静卧岁
项目名称 / Name | 紫薇永和坊
项目类型 / Type | 私宅平层 - 旧房改造
项目位置 / Location | 中国·西安
项目面积 / Area | 150㎡
完工时间 / Time | 2023.03
主创设计师 / Design | 李斌
设计团队 / Team | 王渊博、李珊
项目摄影 / Photo | 见筑 · 任东
ABOUT DESIGNER
主案设计师 | 李斌 ANGSTUDIO
客服
消息
收藏
下载
最近































