查看完整案例


收藏

下载

翻译
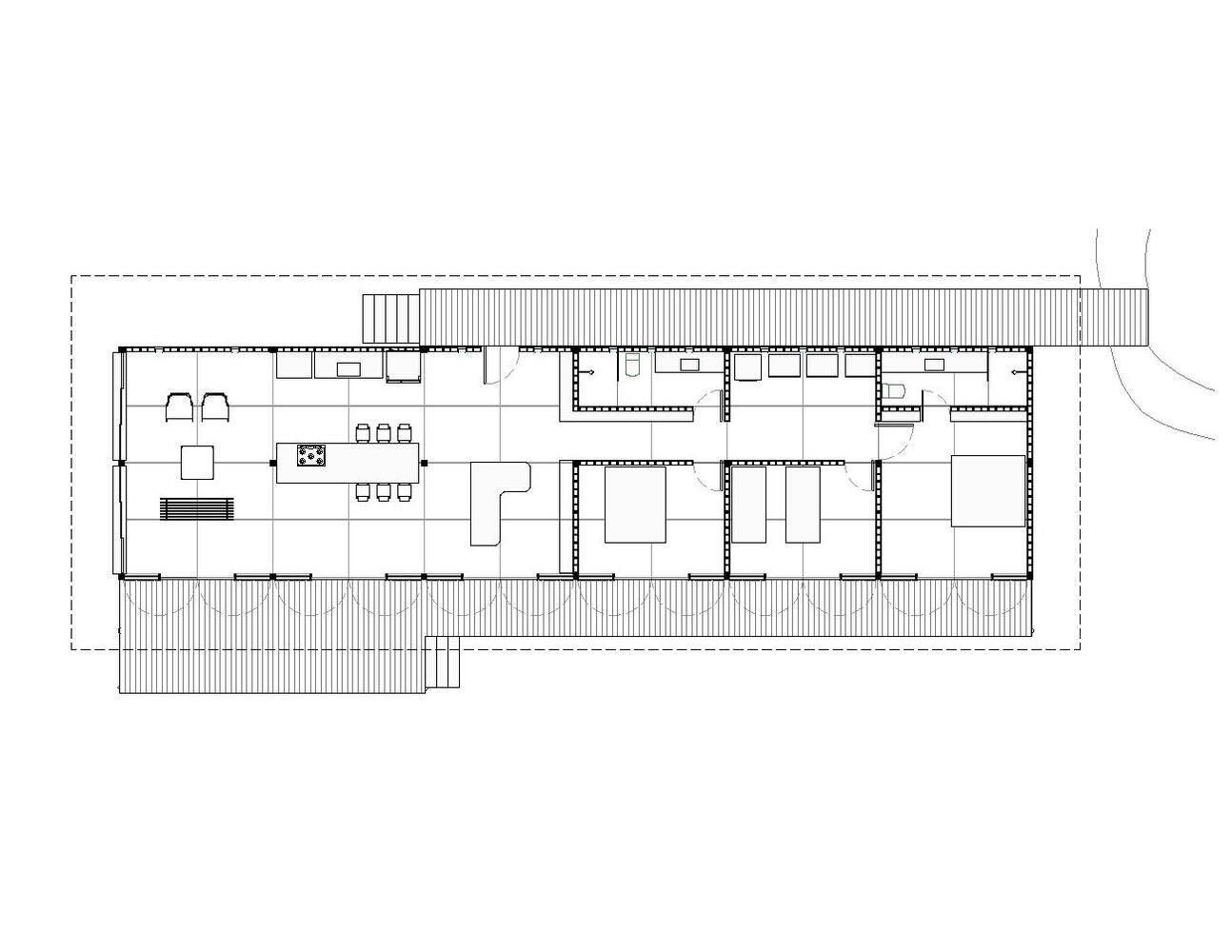
The project for this residence in Canto Verde, a neighborhood away from the center of Paraty, has already been commissioned with the desire to be done with four hands, the client knew what he wanted for his house. It was something simple, modular, well-resolved, spacious, and that generated the minimum amount of maintenance possible.
Its implantation takes advantage of a great advantage existing in the terrain, the east face is the one that also generates the best view, and the terrain has enough extension for the house to be long and all the environments to open to the rising sun. The materials were chosen with great care, for greater durability and never abandoning the aesthetic choices. The modules were designed according to the pagination of the blocks in whole and equal numbers so that none was cut. The concrete blocks were laid in a vertical joint between the solid garapeira pillars. The west face asked for more privacy from the neighbors, but the light would enter through the chosen glass bricks, in addition to the high windows, with greater control than the opposite face.
The house of six identical modules reserves three of them open for the social area and the other three for the three bedrooms, two bathrooms, and laundry room that is located between the rooms. Detached from the ground and with large eaves, it is how a house can remain more preserved in the wooded and humid neighborhood of Paraty.
客服
消息
收藏
下载
最近




















