查看完整案例


收藏

下载
设计理念
综合健身场馆与极简主义的完美结合
位于上海高端街区新天地的Bold健身中心,是综合性健身场馆和极简主义的完美结合。设计以质感营造氛围,用明暗关系表现空间和层次感。
一楼咖啡吧和前台
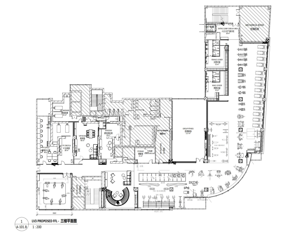
三楼开放式健身区域
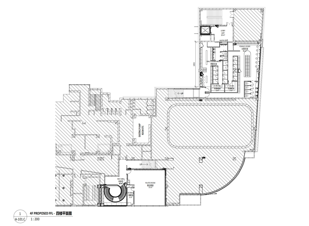
四楼游泳池
利用几种关键材料和纹理,打造出精致流畅的设计,在温暖和冷感中间找到适度平衡。整个空间分为三层,设计师围绕着一个主题将明暗关系发挥到极致,在每个层面中创造出不同的空间体验。
空间体验
运用明暗对比创造差异化氛围
一楼咖啡吧和前台
从车水马龙的室外进入到室内一层,空间内的浅色调温柔却不失力量,舒缓的中性色给人安静舒适的感觉。坐在咖啡吧和接待处,可以望着窗外的熙熙攘攘放松片刻。
三楼开放式健身区域和团课教室
在前台登记后一路前往开放式健身区域,设计师用对比鲜明的深色调创造出沉稳空间,来提升力量感和团课教室的氛围。未经加工的混凝土质感板材,搭配光流畅的黑色线性天花钢构造型营造出动感活力。
明亮的线性灯带和品牌抽象图示将引导客户穿过健身空间,尽头是惹人注目的旋转楼梯和休息区。温暖的木质和让人眼前一亮的白色打破了先前深沉的气氛。一路盘旋向上,通往顶楼的泳池、瑜伽室和更衣室。
四楼游泳池、瑜伽教室和更衣室
更衣室内干净明亮的线条和木质色相得益彰。瑜伽和普拉提教室被温润的橡木墙面和地板包裹,令人亲临大自然,帮助身体放松、冥想和集中注意力。
顶层空间回归到安宁沉静的光线和柔和温暖的氛围,让人感到治愈和自我修复。来到泳池边,自然光通过令人惊叹的金字塔形玻璃屋顶洒满室内。柔软的奶油色纹理墙壁和地面与迷人的苔藓色大理石装饰墙包裹着整个空间。
这栋建筑曾经也是健身房,所以我们尽可能保留现有的墙面。在后场空间重复利用现有的地板,甚至是更衣室台面基板。所有可以翻新的设备都进行了整修,用以帮助减少翻修产生的浪费。
平面图
项目信息
项目名称:Bold Wellness Club
客户:上海博得健身有限公司
项目地点:上海,黄浦区
面积:2100平方米
设计时间:2021年底
完成时间:2023年5月
室内设计:hcreates罕创(上海)建筑设计有限公司
主创设计师:Hannah Churchill
设计团队:Alex Davies、Harmony Wee May Cheer、
Yan Peng、Pony Tseng、Heshan Li
施工方:东康
摄影:Brian Chua、Graeme Kenndy
Hannah Churchill
hcreates创始人、主创设计师
Hannah Churchill来自新西兰南岛,作为一位室内设计师,她对一切创新的东西都充满了激情。从惠灵顿维多利亚大学建筑系毕业后,Hannah在新西兰一家著名建筑公司开始了自己的工作生涯。2009年她来到上海,在扩展视野的同时,很快开始独立承接项目,于2010年创立hcreates。热爱旅行的她常常会在不同的文化和社群中找到新的设计灵感。在中国的十年里,Hannah设计完成了上百个项目,其中包含了一些颇具影响力的餐厅和酒吧。如今,她带领hcreates团队继续在办公、健身房、瑜伽馆和医疗中心等生活方式空间的领域中探索。
hcreates罕创(上海)建筑设计有限公司是一家于2010年成立于上海的室内设计咨询工作室。设计项目主要位于中国大陆,并逐渐扩展到亚洲其他国家和地区。事务所与理念相近的客户合作,通过提供激发视觉及感官的室内设计方案,增加环境的潜力。hcreates以设计现代时尚的餐厅和酒吧闻名于上海设计业,并持续扩展在办公室、健康和保健行业的业务。其设计哲学来自于新西兰人的创造力、革新和实用精神的结合。设计就该是简单、有趣和聪明的。
事务所很荣幸被列入安邸中国AD100榜单,近年来其设计作品被Interior Design、Residence等多家国内外杂志发表。
客服
消息
收藏
下载
最近






































