查看完整案例


收藏

下载
总统博物馆和图书馆的建筑是开塞利Sumerbank纺织厂众多建筑中的两座,如今得到了翻新。纺织厂的生产设施最初建造于1933-1935年,由俄罗斯建筑师Ivan Nikolaev设计,是土耳其共和国时期工业化和现代化最重要的标志之一。
The buildings that were renovated as the Presidential Museum and Library are just the two of the many units that formed Sumerbank Textile Factory, in Kayseri, Turkey. Built between 1933-1935 and designed by Russian architect Ivan Nikolaev, this production facility has been one of the most significant symbols of industrialization and modernization in Republican period of Turkey.
▼建筑外观,Exterior view © Cemal Emden
在1999年关闭后,这一作为俄国构成主义建筑范例的工业建筑群成为了现代的纪念碑,并在2012年归AGU所有,作为该大学的主校区使用。同年,Emre Arolat受到Abdullah Gul总统的委任,为整个建筑群制定设计和再利用战略。2013年,园区内的两座建筑——发电站和蒸汽厂——被确定改造成总统博物馆和图书馆,EAA事务所负责建筑设计。
▼建筑原貌,Factory Before EAA’s Interventions
After its close down in 1999, the industrial complex, containing unique examples of Russian Constructivist Architecture, has gained modern monument status and in 2012 registered to AGU, a new established university to be its main campus area. The same year Emre Arolat was invited by President Abdullah Gul to execute the architectural design and re-use strategy for the whole Complex. In 2013 two buildings within the Campus, the Power Station and Steam Plant were decided to be regenerated as the Presidential Museum and Library and EAA was assigned to execute the architectural design.
▼改造后的建筑,The factory after renovation © Cemal Emden
两座建筑虽然历经了多年的荒废和衰败,但其宽阔的空间和最初的样貌仍然未变。总体的干预思路是保护所有经过岁月洗礼的留存物以及建筑原有的特征。新旧结合的建筑设计策略并非要强调不同时代的部分之间的对比,而是要创造一个连贯的建筑整体。为此,设计团队付出了巨大的努力来保留现有的建筑元素、找到处理建筑服务设备的最佳方式,同时满足必要的安全和无障碍规范。材料的选择也体现了最大程度保护建筑的原则。
▼功能分区示意,Zoning © EAA
Each building, surviving years of neglect and decay, boasted generous volumes of spaces while preserving some of the authentic patina. The general approach was to conserve whatever substance has survived over time and preserve the original features. The architectural strategy of combining old with new was not trying to emphasize the contrast between parts that belonged to different eras but rather to create a coherent architectural whole. In this sense, a great deal of effort was paid to maintain existing elements and find the best way of dealing with the building services while meeting the necessary safety and accesibility codes. The principle of preserving the buildings to the highest extent possible depicted the selection of the materials.
▼发电站和蒸汽厂被改造成博物馆和图书馆,The Power Station and Steam Plant were regenerated as the Presidential Museum and Library © Cemal Emden
▼从建筑内望向园区,View from inside the building © Cemal Emden
发电厂的室内空间根据其作为博物馆的新用途进行了重新设计,同时也是为了让参观者能够体验到建筑的起源。隐藏在几道覆层之下的原始灰坑被保留下来,成为展览体验中的重要组成部分。
▼主厅剖面图,Section of the main hall © EAA
The interiors of the Power Plant were organized according to its new use as a museum and simultaneously designed to let the visitors experience the origins of the building. Hidden under several layers of cladding was found the original ash pits which left visible to become a significant part of the exhibition experience.
▼大厅接待区,Lobby and reception area © Cemal Emden
▼室内细节,Interior detailed view © Cemal Emden
▼主厅区域,Main hall © Cemal Emden
▼展览空间,Exhibition area © Cemal Emden
▼保留下来的灰坑,The remained ash pits © Cemal Emden
蒸汽厂被翻新成为一个现代化的信息中心,设有图书馆和档案室,并与博物馆形成紧密连接。一处大胆的干预体现在主厅内置入的3层高的书架结构,它以一种整齐的观感,从形式和空间上与既有的事物巧妙地结合在一起。与发电站的灰室类似,原有的混凝土筒仓基座被保留在阅读区域,突出了空间的体量感。
▼图书馆剖面示意,Diagram: library © EAA
▼书架区剖面示意,Diagram: bookshelf structure © EAA
The Steam Plant was renovated as a modern information center with library and archive sections that are in a strong relation with the museum. With a bolder intervention, a 3 storey bookshelf structure positioned neatly in the main hall of the Steam Plant, combining plausibly with what is already there, both in form and spatially. Similar to the ash chambers in the power station, existing concrete silo bases have been preserved, now in relaxed reading rooms accentuating the volume of the space.
▼书架和阅读空间,Bookshelf and reading area © Cemal Emden
▼原有的混凝土筒仓基座被保留在阅读区域 © Cemal Emden
Existing concrete silo bases have been preserved in the reading rooms
展陈设计以半离散的空间为导向,创造了一个具有主题感的参观旅程。展览从土耳其的观念、传统以及文化元素中汲取灵感,同时保持了对建筑固有特征(包括体量、质地和自然光线)的尊重态度。
The exhibition design was led by using semi-discrete spaces to create a thematic visitor journey, the exhibition design took inspiration from elements of Turkish values, tradition, and culture with a respectable stance for the building’s inherent features, such as its volumes, texture and natural light.
▼展厅,Exhibition hall © Cemal Emden
▼黄昏中的建筑,Exterior view at dusk © Cemal Emden
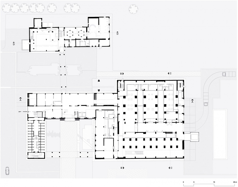
▼场地平面图,Site plan © EAA
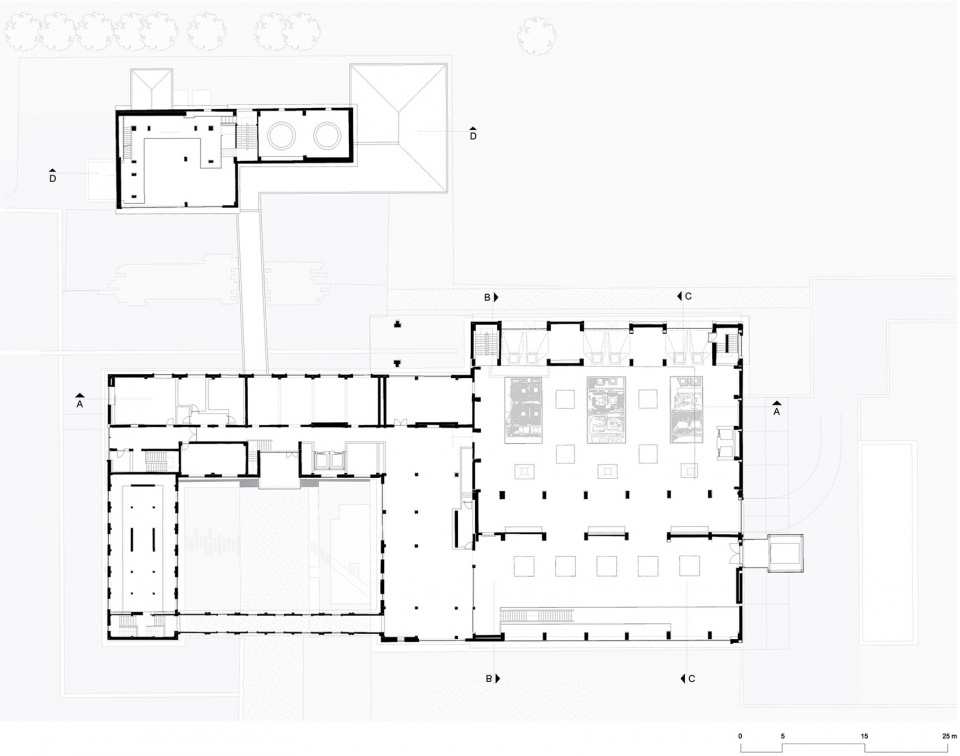
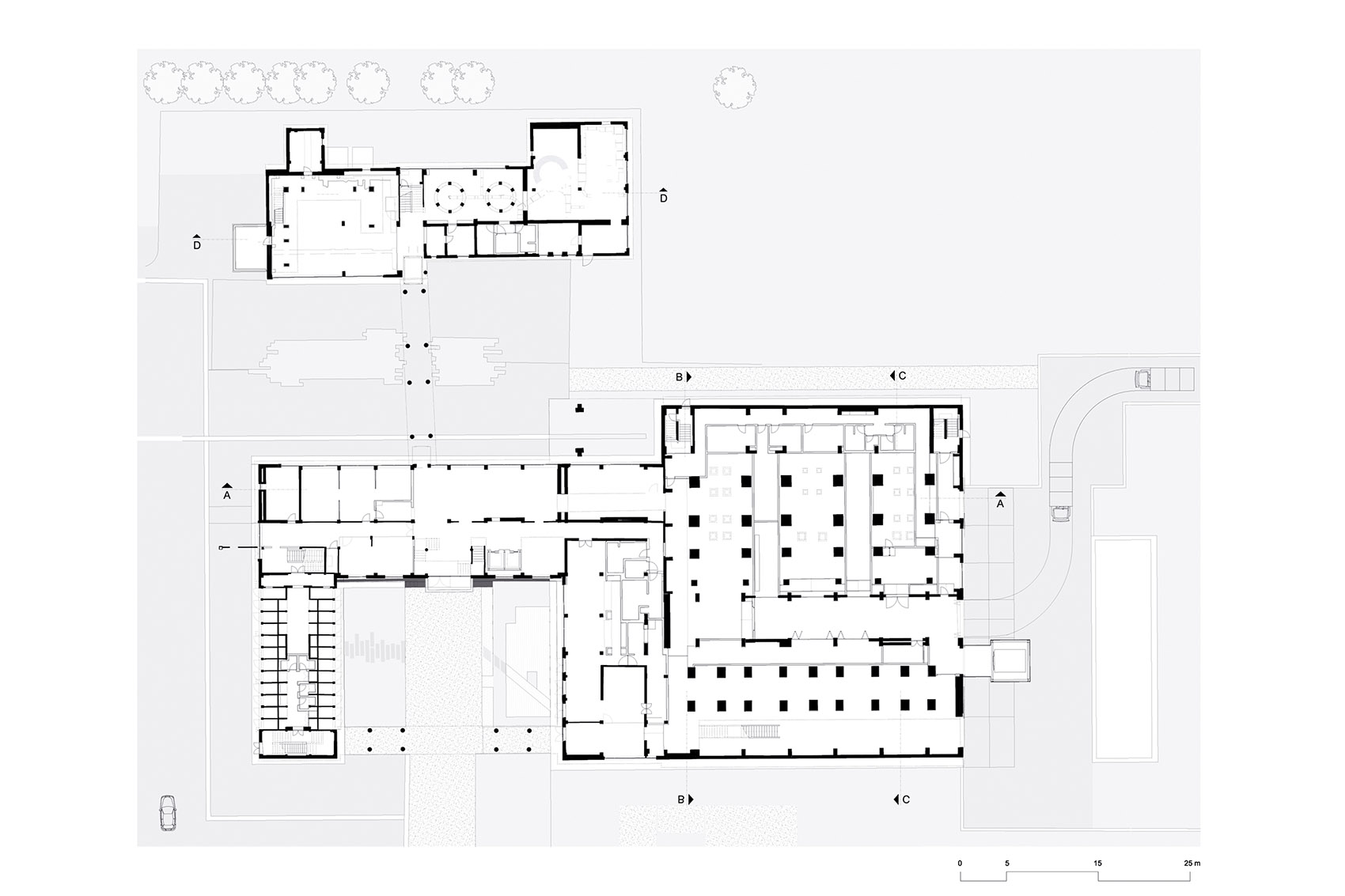
▼首层平面图,Ground floor plan © EAA
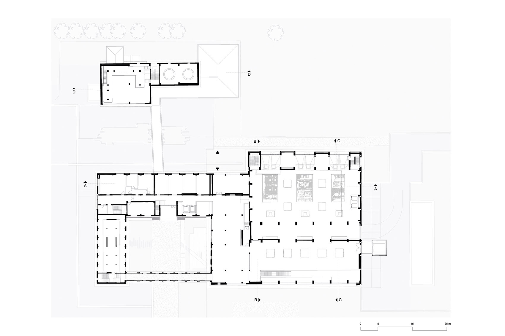
▼二层平面图,First floor plan © EAA
▼剖面图,Sections © EAA
AG Presidential Museum and Library, Kayseri
Concept Design: EAA-Emre Arolat Architecture
Architectural Project: EAA-Emre Arolat Architecture
Responsible Architects:
Concept Project: Emre Arolat, Natali Tombak
Restoration Project: Emre Arolat, Natali Tombak
Team: Cenk Aykut, Hilay Erkin, Ceyhan Gönen, Cem Şahin,
Didem Sağlam, Taner Arıkan
Advisors:
Restoration: Assist. Prof. Dr. Gülsün Tanyeli
Conservation: Dr. Erkan Kambek
Fire Safety: Prof. Dr. Abdurrahman Kılıç
Acoustics: Sey Consulting
Structural Engineering: Prof. Dr. Feridun Çılı
Material Specialist: Assoc. Prof. Dr. Bekir Pekmezci
Facade: Axis
Location: Kayseri-Turkey
Project Date: 2013
Construction Date: 2014-2016
Function:
Cultural: Presidential Museum & Library
Area Information:
Parcel Area: 28.000 m²
Gross Area: 5423 m²
Footprint: 2732 m²
Functional Area:
Secondary Areas:
Atelier Building: 177m2
Technical Building: 877 M²
客服
消息
收藏
下载
最近





































































