查看完整案例

收藏

下载
好的空间是情感的延伸,是理性与感性的容器。一隅自在的天地,拥抱简而不凡的生活。
设计基于人性化角度展开,拆除原沙发背景非承重墙,打造了客厅+餐厅+书房的共享公共区域;就近置物的收纳展示空间;干湿分离的卫浴空间。在软装选择上造型从简,让空间最大化的留白,运用木作自然的质感来进行点缀,整体空间在宁静的氛围里温暖弥漫,平和中不乏坚毅质感。
中建阅江府
[ 项目简介
地址|Address:中建阅江府
面积|Square Meters:105m²
风格|Style:现代简约
户型|Apartment:三室两厅
设计|Designer:诗享家设计
施工| Construction:诗享家施工
软装|Soft Decor:诗享家宅配
咨询|诗享家咨询预约入口
[ 客户需求
本案业主钟爱现代简约的风格,对纯粹生活充满渴求与向往,希望有一个开放式厨房、通透的书房、空间尽量显大。所以在平面的设计上,设计师想给业主一个公共区域打开的空间,让居者自由游走。暂时远离钢筋水泥的丛林,逃离过度超载的物质与欲望,回归生活,自在安宁。
[ 功能设计
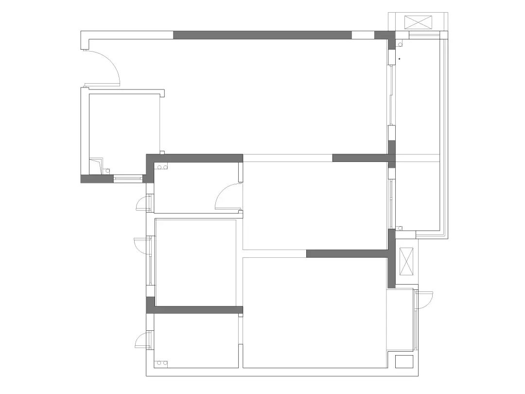
➜向右滑动,查看原始结构图
打通客厅、餐厅、阳台,全开放式客餐一体的设计使空间更开阔明亮,丰富公共区域功能性;开放式厨房、餐岛一体化,最大提高厨房台面的利用率;靠客厅的卧室改为开放式书房,公共区域更宽敞的同时满足居家办公的需求;客厅摒弃传统的沙发,选用双面沙发,在满足舒适度的同时,增强客厅与书房的空间互动性。[ 视觉设计 ]
·玄关处依墙定制整面收纳柜,充分利用空间,满足置物需求。柜体上下分区,中部留空,实现日常归家后随身物品的即拿即放。
·定制餐桌与岛台做嵌入式结合,增加空间的整体感和完整性。亚克力材质通透轻盈,作为餐桌桌腿营造似有似无的视觉效果,让享食休闲空间更加灵动精致。
·厨房改为开放式,并与餐厅形成联动,优化餐厨动线,烹饪享食一气呵成。同时也不会背离拿菜、洗菜、切菜、烹饪的核心使用功能,操作台旁的冰箱嵌入墙体,节省空间的同时方便随拿随放所需食材。
·奶油色和原木色的组合奠定了安静从容的空间基调,初入家中,迎面拥来的温柔将所有的情绪弱化,“享受此刻”的意义变得弥足珍重。
·客厅将简约贯彻到底,考虑到层高,客厅做平顶设计,无主灯设计显得空间大而不空,不同方位的筒灯满足日常照明需求的同时,提升整个空间氛围。
·拆除隔门,阳台拥入客厅,LDK 一体化,显得空间通透干净。纱帘作为软装的一部分,也为整体空间增添氛围,不同光线下呈现的氛围感柔和又浪漫。一个平常的休息日,形如渔瓮帽似的吊灯下,一本书,一杯茶,颇有些“怡然自得”的气韵。
·设计师告别传统的门墙封闭式隔断,恰到好处的半墙,搭配米灰色双面沙发,区分客厅与书房的同时,保证光在室内顺利潜行,与背景色和谐晕染。同时,区域间形成多维互动,酝酿出关乎于温馨家庭生活的自由之所。
·考虑到户主二人均为教师,经常需要伏写教案,设计师将靠客厅的卧室改为开放式书房,满足其居家办公的需求。
·开放式书柜不仅能容纳书籍,也能变成空间装饰的一部分:手办、陶艺,字画……将爱好展示,使空间标记专属于你的独特印记。
诗享家咨询预约入口
[ 往期作品回顾]
你也喜欢这样的家?诗享家咨询预约入口
客服
消息
收藏
下载
最近












































