查看完整案例


收藏

下载
Casas, Guadalajara, México
设计师:Estudio Radillo Alba
面积:298 m²
年份:2020
摄影:César Belio
提供协助:Interceramic, AutoDesk, Cemex, Adobe Systems Incorporated, Helvex, Trimble Navigation
负责建筑师:Edgar Radillo
工程师:Marco Antonio González Ávila / MGA
Paisajismo:Estudio Radillo Alba
Ciudad:Guadalajara
Pais:México
设计师描述 | Designer description:
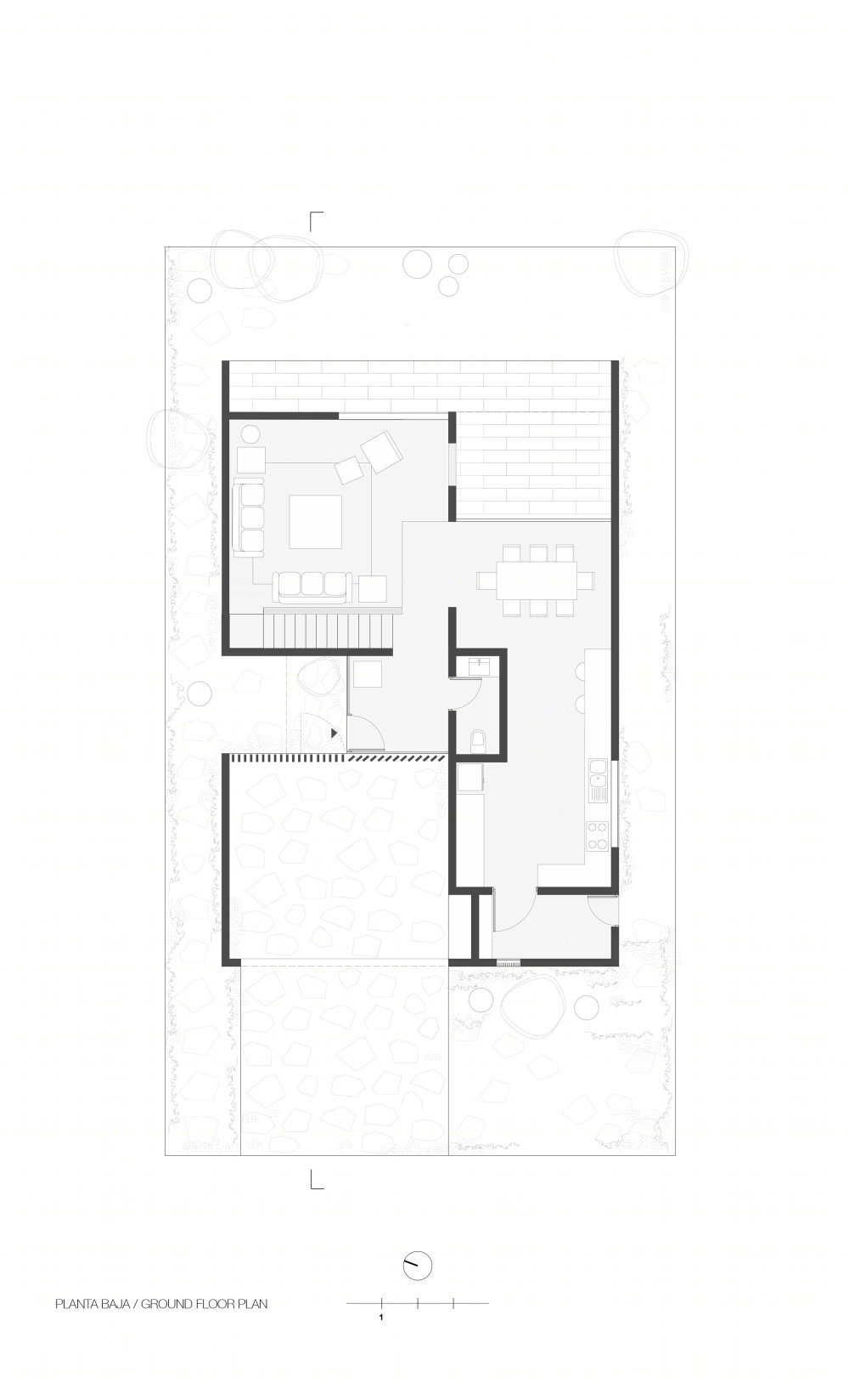
El proyecto se encuentra en el estado de Jalisco, al sur de la ciudad de Guadalajara, en un fraccionamiento campestre. El encargo consistió en una vivienda para 5 personas en el que se aprovechara al máximo la superficie del solar.
El terreno contaba ya con cinco árboles de escala considerable, la ubicación de éstos y la clara decisión de conservarlos, marcaron la mayoría de las estrategias formales del proyecto. Dos de los árboles, ubicados al frente, definieron las cocheras; otro más, en un lateral, obligó a seccionar el volumen y dar lugar al acceso principal. El resto, ubicados en la parte posterior, aportican y dan sombra a la terraza de la casa.
Abrimos diversos patios que, entre muros, dieran pie a una espacialidad distinta que creara relaciones nuevas entre el interior y el exterior. Los patios, dotados de abundante vegetación, aparecen en espacios privados como habitaciones, baños y regaderas.
La casa siempre fue pensada en un solo bloque y en un solo material. Cercano al sitio existe una región conocida por su abundante producción de ladrillo de barro, práctica aún recurrente en algunas partes del país. Su valor cultural y la herencia constructiva del mismo, nos alentó a utilizar el ladrillo como único envolvente del proyecto. El material quedó a la vista, con la intención de revelar el sistema constructivo y hacer un homenaje al material. La flexibilidad de esta práctica —aún artesanal— nos permitió modificar las medidas estándar del ladrillo y fabricar uno que se adaptara a las exigencias estructurales del proyecto. El material se trabajó de tal manera que encofrara todo elemento estructural, entrepisos e instalaciones.
El resultado fue un volumen con sustracciones que dieron lugar a patios, accesos y terrazas que, entre árboles, busca relacionarse con su exterior y por tanto con su contexto.
项目完工照片 | Finished Photos
设计师:Estudio Radillo Alba
分类:Casas
语言:西班牙语
阅读原文
客服
消息
收藏
下载
最近


























